Zunächst einmal, vielen Dank für Ihre Kontaktaufnahme.
Wir haben Ihre Anfrage bezüglich des Eigentumsverweises erhalten:GE2-52565. Einer unserer Mitarbeiter wird sich so schnell wie möglich mit Ihnen in Verbindung setzen.
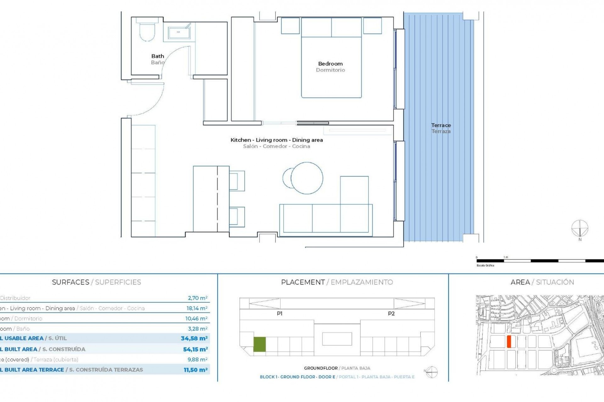
Moderne Einzimmerwohnungen in Mijas Costa – Komfort, Stil und hervorragendes Preis-Leistungs-Verhältnis Zeitgemäßes Wohnen in Las Lagunas, Mijas Costa Entdecken Sie eine aufregende neue Wohnanlage mit 116 stilvollen Ein-Zimmer-Apartments in Las Lagunas, Mijas Costa – einer der dynamischsten und aufstrebendsten Gegenden an der Costa del Sol. Dieser Standort bietet die perfekte Balance zwischen ruhiger Wohnlage und urbaner Annehmlichkeiten, wobei alle wichtigen Dienstleistungen nur wenige Minuten entfernt sind. Die Bewohner profitieren von der Nähe zu Einkaufszentren, Schulen, Gesundheitskliniken, Sportanlagen und einer großen Auswahl an Restaurants. Intelligentes Design und funktionale Räume Diese Apartments wurden mit Blick auf modernes Wohnen entworfen und bieten offene Grundrisse, die sowohl Platz als auch Komfort maximieren. Die hellen Innenräume sind mit natürlichen Materialien und warmen Farbtönen gestaltet und schaffen eine gemütliche und einladende Atmosphäre. Das Wohnzimmer, die Küche und das Schlafzimmer gehen nahtlos ineinander über und bilden ein harmonisches Ganzes, wobei die Terrasse als natürliche Erweiterung des Innenraums dient – ideal, um das ganze Jahr über das mediterrane Licht und das Leben im Freien zu genießen. Wählen Sie zwischen Wohnungen im Erdgeschoss oder in den mittleren Etagen mit Terrassen oder Penthäusern mit großzügigen privaten Terrassen, die sich perfekt zum Sonnenbaden oder für gesellige Runden eignen. Jede Wohnung verfügt über: Voll ausgestattete Küche mit Geräten Klimaanlage über Luftkanäle Ein privater Parkplatz inklusive Premium-Ausstattung für einen ausgewogenen Lebensstil Die Anlage ist um einen zentralen Gemeinschaftspool mit einer Chill-out-Bar im tropischen Stil herum gebaut und bietet den perfekten Rahmen für Entspannung und Geselligkeit. Es gibt auch einen eigenen Grillplatz für Zusammenkünfte mit Familie und Freunden. Die Bewohner haben außerdem Zugang zu einem voll ausgestatteten Fitnessstudio, das einen gesunden und aktiven Lebensstil fördert, ohne das Haus verlassen zu müssen. Für Berufstätige oder Studenten bietet ein Coworking Space eine moderne und praktische Umgebung für Remote-Arbeit oder Studium und unterstreicht damit das Bekenntnis zu einem Lebensstil, in dem Komfort, Freizeit und Produktivität Hand in Hand gehen. Wichtige Entfernungen: Strände von Mijas Costa: 2 km Einkaufszentrum Miramar: 1 km Stadtzentrum von Fuengirola: 4 km Chaparral Golf Club: 5 km Flughafen Málaga-Costa del Sol: 25 km Marbella: 25 km Investieren Sie im Herzen der Costa del Sol Dieses Wohnprojekt ist eine einzigartige Gelegenheit für Erstkäufer, Investoren oder Rentner, die eine gut angebundene, lebendige Gemeinde mit hervorragender Infrastruktur und hohem Wert suchen. Ob als Eigenheim oder als Mietinvestition, diese modernen Apartments in Mijas Costa sind so konzipiert, dass sie sich an den heutigen Lebensstil anpassen. Kontaktieren Sie uns noch heute und sichern Sie sich Ihren Platz in einer der vielversprechendsten Gegenden der Costa del Sol.