Zunächst einmal, vielen Dank für Ihre Kontaktaufnahme.
Wir haben Ihre Anfrage bezüglich des Eigentumsverweises erhalten:GE2-94377. Einer unserer Mitarbeiter wird sich so schnell wie möglich mit Ihnen in Verbindung setzen.
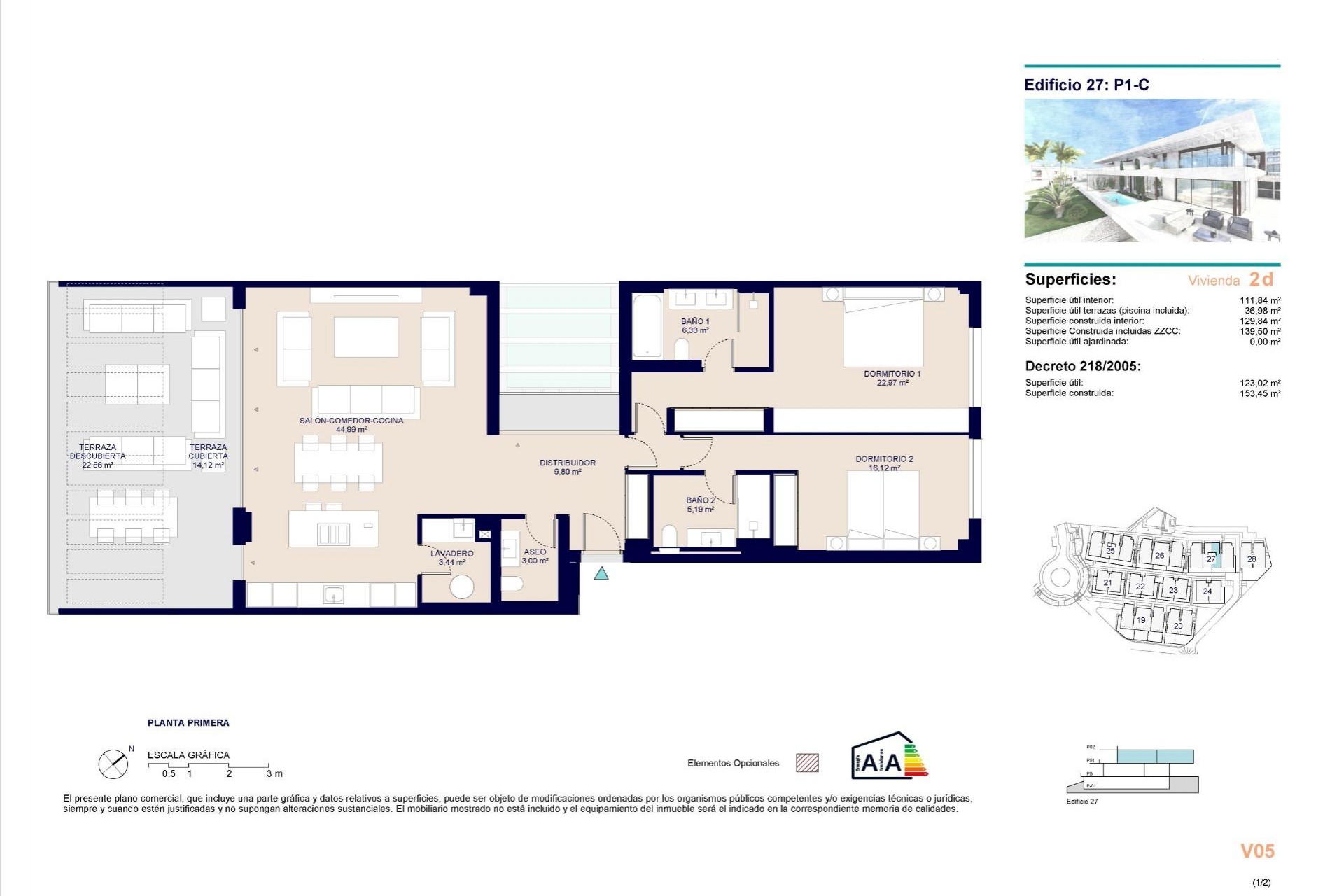
Neubauwohnungen in Marbella Ost mit Meerblick und Blick auf den Golfplatz Exklusive Wohnanlage neben Santa Clara Golf mit Apartments und Doppelhaushälften Entdecken Sie einen luxuriösen Lebensstil in dieser neuen Wohnanlage in Marbella Ost, einer der begehrtesten Gegenden der Costa del Sol. Diese exklusive Privatresidenz umfasst 68 Wohnungen, darunter Apartments mit 2, 3 und 4 Schlafzimmern, Erdgeschosswohnungen mit Garten, Obergeschosswohnungen mit großen Terrassen und privaten Solariums sowie elegante Doppelhaushälften. Einige Einheiten verfügen sogar über einen privaten Pool und bieten höchsten Komfort in einer privilegierten Umgebung. Einzigartige Naturlandschaft nur wenige Minuten vom Zentrum Marbellas entfernt Diese Wohnanlage liegt neben dem renommierten Golfplatz Santa Clara Golf Club und verbindet Ruhe, Natur und die Nähe zu allen Dienstleistungen. Die erhöhte Lage bietet einen atemberaubenden Blick auf den Golfplatz und das Mittelmeer in einer exklusiven Wohngegend, umgeben von mediterraner Vegetation. Sehenswürdigkeiten in der Nähe: Nächstgelegener Strand: 1,5 km Marbella Zentrum: 5 km Puerto Banús: 12 km Flughafen Málaga: 47 km Golfplätze wie Río Real, Marbella Golf und Santa Clara: weniger als 5 km Einkaufszentren und internationale Schulen: weniger als 10 Minuten Erstklassige Gemeinschaftsbereiche für einen gesunden und anspruchsvollen Lebensstil Die Anlage bietet eine Vielzahl von Premium-Dienstleistungen für die Bewohner: 4 Außenpools und 1 beheizter Innenpool Spa und Sauna Voll ausgestatteter Fitnessraum Coworking und Gastrobar Club und Cafeteria Fahrradabstellplatz Concierge-Service und kontrollierter Zugang Modernes Design mit mediterranem Flair und luxuriöser Ausstattung Jede Wohnung wurde mit einer zeitgenössischen Architektur entworfen, die von den Werten des mediterranen Lebensstils inspiriert ist. Die Innenräume sind auf natürliche Weise mit großzügigen Terrassen, Gärten oder Sonnenterrassen verbunden und schaffen so eine offene und helle Atmosphäre. Besondere Merkmale: Einbauküchen mit Elektrogeräten Fußbodenheizung und Klimaanlage Domotik-System in den Wohnbereichen Installierte Duschwände Mindestens ein Parkplatz und Abstellraum inklusive Aufzug in den Apartmentgebäuden Erleben Sie die Essenz des Mittelmeers mit unvergleichlicher Aussicht und Komfort Wenn Sie eine moderne Immobilie in strategisch günstiger Lage in Marbella Ost suchen, umgeben von Natur und in der Nähe von allem, dann ist diese Wohnanlage genau das Richtige für Sie. Kontaktieren Sie uns noch heute für weitere Informationen oder um einen persönlichen Besichtigungstermin zu vereinbaren.