Zunächst einmal, vielen Dank für Ihre Kontaktaufnahme.
Wir haben Ihre Anfrage bezüglich des Eigentumsverweises erhalten:GE2-66498. Einer unserer Mitarbeiter wird sich so schnell wie möglich mit Ihnen in Verbindung setzen.
Email info@gold-estates.be
Büro in Belgien: Moeistraat 20G, 9830 St-Martens-Latem
Büro in Spanien: Av. Marina Baixa 11, 03570 La Villa Joyosa, Alicante
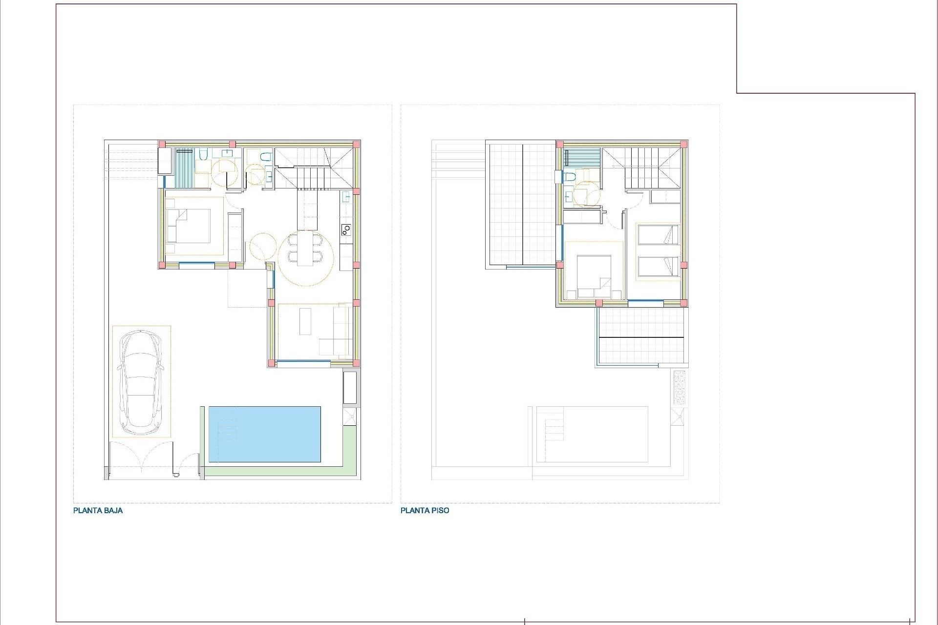
Neubauvillen in San Fulgencio mit privatem Pool und modernem Design Exklusive Wohnanlage mit 7 freistehenden Villen in Südlage an der Costa Blanca Entdecken Sie diese attraktive Wohnanlage mit 7 modernen, freistehenden Villen in San Fulgencio, einer charmanten Gemeinde in der Provinz Alicante. Die in zeitgenössischem Stil entworfenen und nach Süden ausgerichteten Häuser bieten viel Tageslicht und verbinden Komfort, Qualität und eine ideale Lage an der südlichen Costa Blanca. Funktionale Aufteilung und Außenbereiche Die Villen sind auf zwei Etagen verteilt und bieten eine hervorragende Innenaufteilung: 3 geräumige Schlafzimmer, eines davon im Erdgeschoss 2 Badezimmer und 1 zusätzliches WC Komplett eingerichtete offene Küche mit Elektrogeräten Helles Wohnzimmer mit Zugang nach draußen Im Außenbereich verfügt jedes Haus über: Privater Pool (3 x 5 Meter) Parkplatz auf dem Grundstück Zwei offene Terrassen im Obergeschoss, ideal, um den ganzen Tag die Sonne zu genießen Hochwertige Ausstattung und Energieeffizienz Die Villen sind mit hochwertigen Materialien gebaut und auf Nachhaltigkeit ausgerichtet: Elektrische Rollläden Außenfenster mit Doppelverglasung Luftwärmepumpen-System für Warmwasser Vorinstallation für eine Klimaanlage mit Kanälen Badezimmer mit Möbeln, Duschwänden und Spiegeln Strategische Lage in San Fulgencio San Fulgencio bietet die Ruhe einer Wohngegend mit allen Dienstleistungen in der Nähe, wie Restaurants, Supermärkte, Apotheken und mehr. Darüber hinaus sind dank der ausgezeichneten Lage die wichtigsten Sehenswürdigkeiten der Umgebung leicht zu erreichen: Strand La Marina – 7 km Guardamar del Segura – 10 km Golfplatz La Marquesa (Ciudad Quesada) – 6 km Zentrum von Torrevieja – 18 km Internationaler Flughafen Alicante-Elche – 30 km Ideal zum Wohnen, Investieren oder für den Urlaub Diese Villen sind eine einmalige Gelegenheit sowohl für einen dauerhaften Wohnsitz als auch als Immobilieninvestition in einer der gefragtesten Gegenden der südlichen Costa Blanca. Ob Sie die mediterrane Sonne genießen möchten oder einen Zweitwohnsitz suchen, dieses Projekt bietet Qualität, Design und eine ausgezeichnete Lage. Kontaktieren Sie uns noch heute für weitere Informationen oder um einen Besichtigungstermin zu vereinbaren und entdecken Sie Ihr neues Zuhause in San Fulgencio.
Diese hier angegebenen Informationen unterliegen Fehlern und sind nicht Bestandteil eines Vertrages. Das Angebot kann ohne vorherige Ankündigung geändert oder zurückgezogen werden. Die Preise beinhalten keine Einkaufskosten.
Ihr Traumleben in Spanien beginnt mit unserem praktischen Reiseführer! In 4 Schritten ermöglichen wir Ihnen den Start unter der spanischen Sonne.
E-Mail info@gold-estates.be
Büro in Belgien: Moeistraat 20G, 9830 St-Martens-Latem
Büro in Spanien: Av. Marina Baixa 11, 03570 La Villa Joyosa, Alicante
© 2026 Gold Estates · Rechtlicher Hinweis · Privatsphäre · Cookies · BIV Legale Informatie · Web-Karte
Entwurf & CRM: Mediaelx
Finden Sie Ihr Traumhaus, indem Sie Ihre Immobilien speichern und Benachrichtigungen zu neuen verfügbaren Immobilien erhalten
Neuen Benutzer registrierenZunächst einmal, vielen Dank für Ihre Kontaktaufnahme.
Wir haben Ihre Anfrage bezüglich des Eigentumsverweises erhalten:GE2-66498. Einer unserer Mitarbeiter wird sich so schnell wie möglich mit Ihnen in Verbindung setzen.
Zunächst einmal, vielen Dank für Ihre Kontaktaufnahme.
Wir haben eine Anfrage für einen Bericht erhalten, wenn Sie den Preis der Immobilie mit der Referenz senken: GE2-66498
In der Zwischenzeit sehen Sie sich bitte diese Auswahl ähnlicher Objekte an, die für Sie von Interesse sein könnten: