Zunächst einmal, vielen Dank für Ihre Kontaktaufnahme.
Wir haben Ihre Anfrage bezüglich des Eigentumsverweises erhalten:MI-45709. Einer unserer Mitarbeiter wird sich so schnell wie möglich mit Ihnen in Verbindung setzen.
Email info@gold-estates.be
Büro in Belgien: Moeistraat 22A, 983 St-Martens-Latem
Büro in Spanien: Calle Valentia, 7, 03570 La Vila Joiosa, Alicante
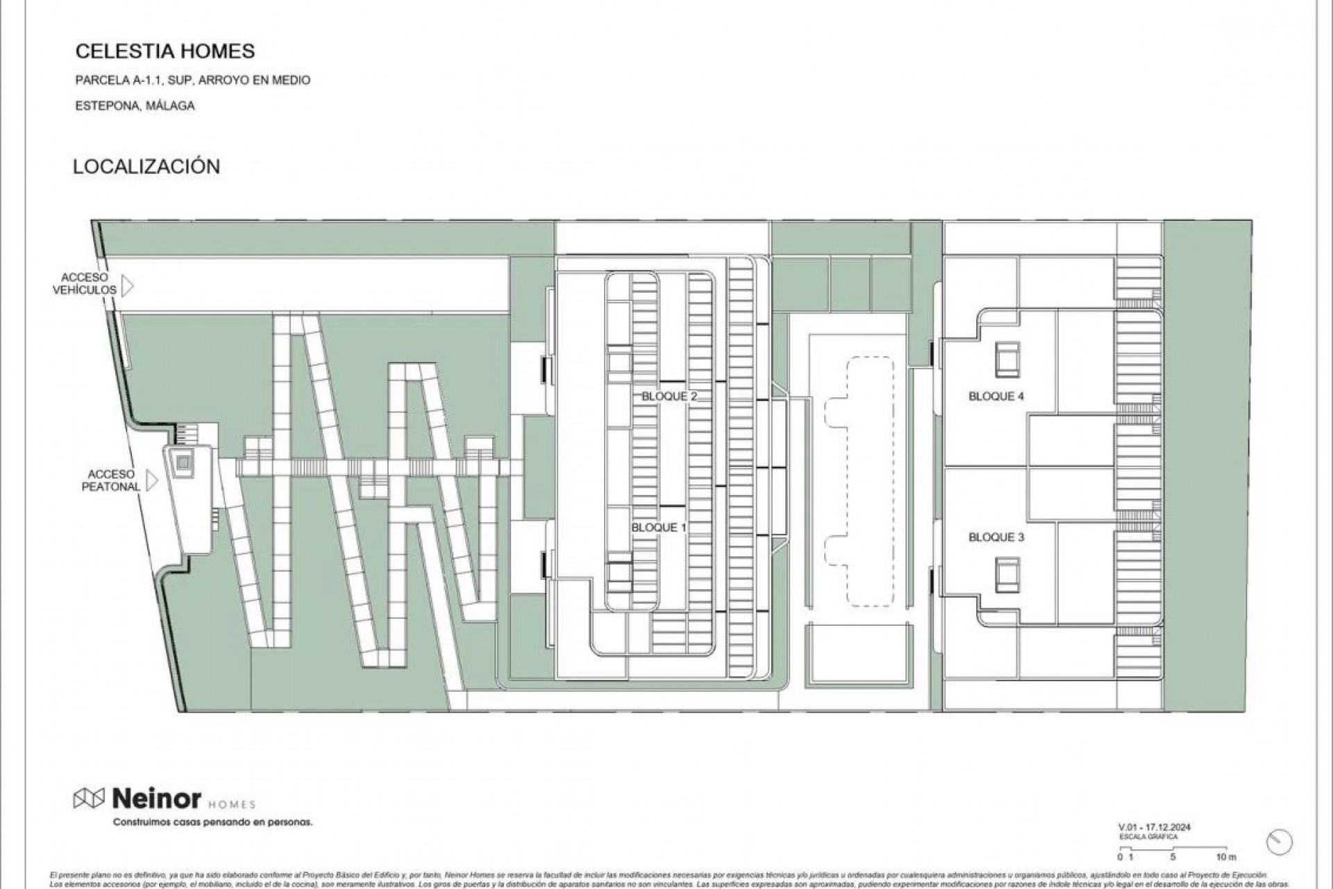
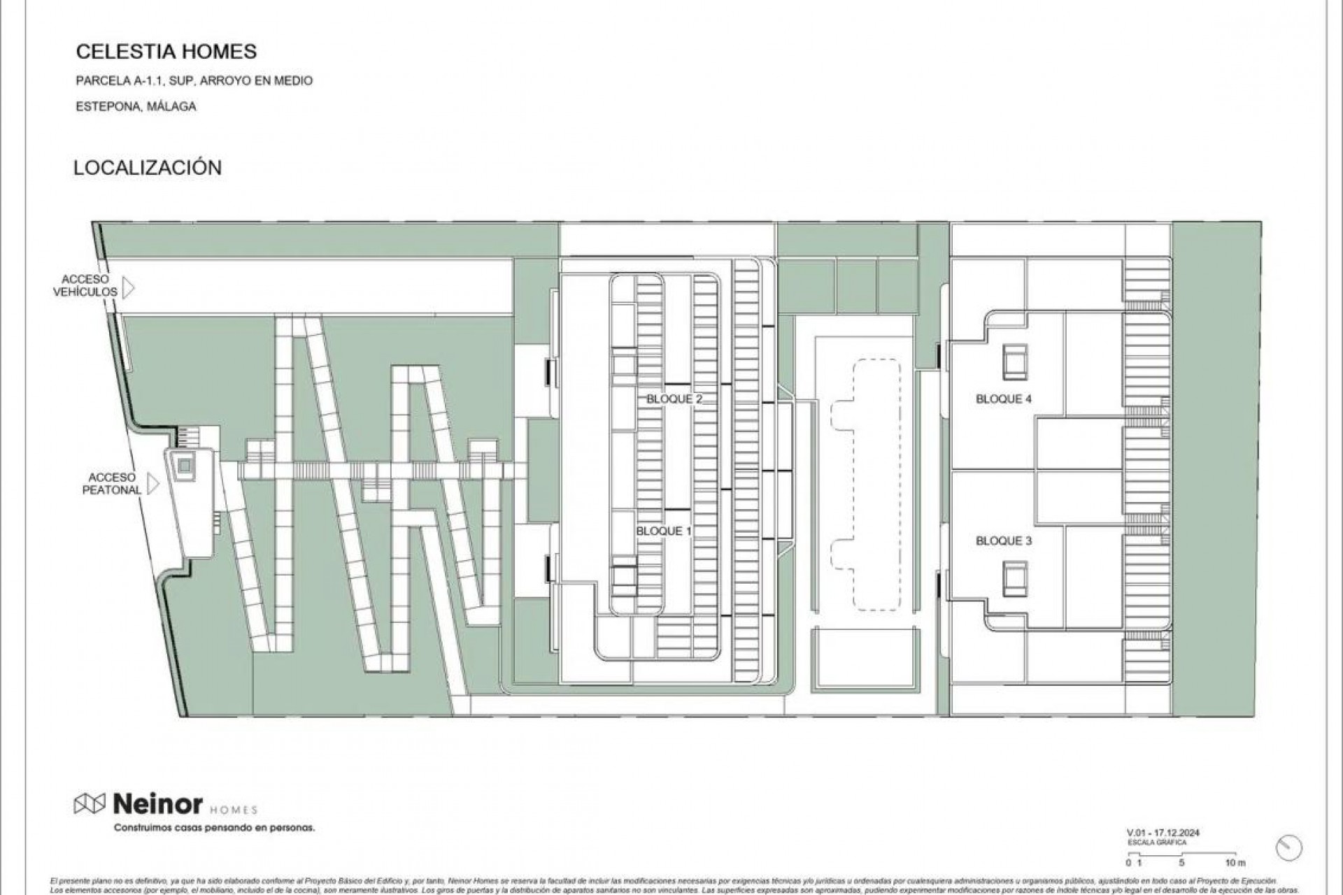
Wohnanlage bietet Eleganz und Komfort an der Costa del Sol. Vorteile eines Neubaus Wohnanlage Das Projekt befindet sich in Estepona, in der westlichen Region der Costa del Sol, unweit vom Zentrum und dem ruhigen Viertel unweit von erholsamen und weitläufigen Stränden. Dieser Bereich hat ein bemerkenswertes urbanes Wachstum erfahren und zählt zu den entwicklungsstärksten Zonen der Region. Estepona, gelegen an der westlichen Küste von Málaga, ist ein wahres Schmuckstück, das Tradition, Natur und Moderne in sich vereint. Der malerische Altstadtkern, geschmückt mit farbenfrohen Blumen, sowie der belebte Yachthafen und die über 20 Kilometer an Stränden machen es zum idealen Ort, um den authentischen mediterranen Lebensstil zu erleben. Mit einem breiten Angebot an Kultur-, Gastronomie- und Freizeitmöglichkeiten und einem ganzjährigen, außergewöhnlichen Klima, ist Estepona der perfekte Ort sowohl zum Wohnen als auch für einen unvergesslichen Urlaub. Umgeben von Bergen und mit beeindruckendem Meerblick bietet es einen perfekten Ausgleich zwischen Luxus und Ruhe. Eine exklusive Umgebung für Wohlbefinden und Genuss erwartet Sie in Wohnanlage. 🌿 Die landschaftlich gestalteten Gärten bieten ein Refugium an Frieden und Schönheit, ideal zum Spazierengehen oder Entspannen. 🏊 Der Außenpool im Zentrum der Anlage bietet angenehme Erfrischung an sonnigen Tagen. 💪 Das modern ausgestattete Fitnessstudio ermöglicht es Ihnen, aktiv zu bleiben, ohne Ihr Zuhause verlassen zu müssen. Jeder Teil des Komplexes wurde konzipiert, um Lebensqualität, Privatsphäre und Wohlbefinden zu bieten, und garantiert den Bewohnern eine einzigartige Erfahrung. Die vanguardistischen Designs von Wohnanlage sind für jene gedacht, die Luxus und Funktionalität in Einklang bringen. 🏡 Geräumige und helle Räume wurden strategisch platziert, um Komfort zu maximieren und Vielseitigkeit zu bieten, wobei natürliches Licht jede Ecke erreicht. 🪟 Große Fenster bieten spektakuläre Ausblicke auf das Meer und schaffen eine warme und einladende Atmosphäre. ✨ Hochwertige Materialien, wie widerstandsfähige und pflegeleichte großformatige Feinsteinzeugböden, verleihen ein elegantes und modernes Flair. 🌅 Private Terrassen und Solariums wurden kreiert, um das Herz des Hauses zu sein, ideal für Abendessen im Freien oder einfach, um beim Sonnenuntergang zu entspannen. Erleben Sie in Wohnanlage den Lebensstil, den Sie sich immer gewünscht haben. Jedes Detail wurde sorgfältig geplant, um ein einzigartiges Erlebnis aus Komfort und Exklusivität an der lebhaften Costa del Sol zu bieten. 📞 Kontaktieren Sie uns noch heute für weitere Informationen oder um eine Besichtigung zu planen und Ihr zukünftiges Zuhause in Estepona zu entdecken.
Diese hier angegebenen Informationen unterliegen Fehlern und sind nicht Bestandteil eines Vertrages. Das Angebot kann ohne vorherige Ankündigung geändert oder zurückgezogen werden. Die Preise beinhalten keine Einkaufskosten.
Ihr Traumleben in Spanien beginnt mit unserem praktischen Reiseführer! In 4 Schritten ermöglichen wir Ihnen den Start unter der spanischen Sonne.
E-Mail info@gold-estates.be
Büro in Belgien: Moeistraat 22A, 983 St-Martens-Latem
Büro in Spanien: Calle Valentia, 7, 03570 La Vila Joiosa, Alicante
© 2026 Gold Estates · Rechtlicher Hinweis · Privatsphäre · Cookies · BIV Legale Informatie · Web-Karte
Entwurf & CRM: Mediaelx
Finden Sie Ihr Traumhaus, indem Sie Ihre Immobilien speichern und Benachrichtigungen zu neuen verfügbaren Immobilien erhalten
Neuen Benutzer registrierenZunächst einmal, vielen Dank für Ihre Kontaktaufnahme.
Wir haben Ihre Anfrage bezüglich des Eigentumsverweises erhalten:MI-45709. Einer unserer Mitarbeiter wird sich so schnell wie möglich mit Ihnen in Verbindung setzen.
Zunächst einmal, vielen Dank für Ihre Kontaktaufnahme.
Wir haben eine Anfrage für einen Bericht erhalten, wenn Sie den Preis der Immobilie mit der Referenz senken: MI-45709
In der Zwischenzeit sehen Sie sich bitte diese Auswahl ähnlicher Objekte an, die für Sie von Interesse sein könnten: