Zunächst einmal, vielen Dank für Ihre Kontaktaufnahme.
Wir haben Ihre Anfrage bezüglich des Eigentumsverweises erhalten:GE-23245. Einer unserer Mitarbeiter wird sich so schnell wie möglich mit Ihnen in Verbindung setzen.
Email info@gold-estates.be
Büro in Belgien: Moeistraat 20G, 9830 St-Martens-Latem
Büro in Spanien: Av. Marina Baixa 11, 03570 La Villa Joyosa, Alicante
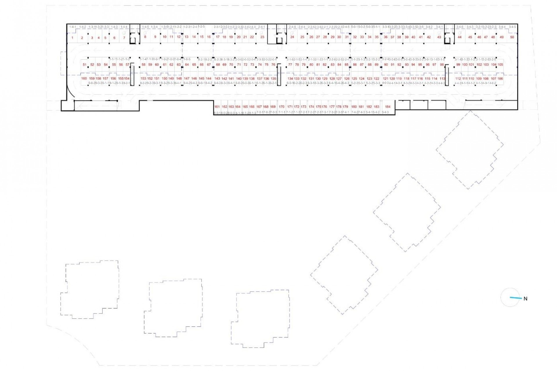
NEUBAU WOHNANLAGE IN EL RASO, GUARDAMAR DEL SEGURA Neubau einer Wohnanlage mit modernen Apartments in El Raso, Guardamar del Segura! Diese Wohnungen haben 3 Schlafzimmer, 2 Bäder, offenen Salon mit Küche, Erdgeschoss mit privatem Garten, mittlere Etage mit Terrasse und Dachgeschoss mit privatem Solarium. Komplex mit Schwimmbad, Grünflächen, Golfplätze, Spa, Spielplatz, Bio-Gesundheit Maschinen und Sportbereiche. Der Komplex befindet sich in einer grünen Gegend in der Nähe des Salzsees, alle Annehmlichkeiten, zu Fuß erreichbar zum Einkaufszentrum, Bars und Restaurants. El Raso ist ein Teil von Guardamar del Segura. Guardamar del Segura ist eine Stadt an der Costa Blanca Süd. Mit seinen 11 Kilometern Naturstrand und seinem großen Pinienwald. Guardamar del Segura hat einen großen Hafen, in dem das ganze Jahr über Aktivitäten stattfinden, ein großes Sportzentrum mit Paddle-Tennis, Tennis, Fußball und ein großes beheiztes Schwimmbad, das das ganze Jahr über in Betrieb ist. Es gibt auch eine Bibliothek mit kostenlosem WLAN und Computern. Guardamar del Segura ist nur 20 km vom Flughafen Alicante - Elche (El Altet) entfernt, der aufgrund der großen Nachfrage nach Touristen an der Costa Blanca täglich zahlreiche Flüge mit Verbindungen zu den wichtigsten europäischen Städten anbietet.
Diese hier angegebenen Informationen unterliegen Fehlern und sind nicht Bestandteil eines Vertrages. Das Angebot kann ohne vorherige Ankündigung geändert oder zurückgezogen werden. Die Preise beinhalten keine Einkaufskosten.
Ihr Traumleben in Spanien beginnt mit unserem praktischen Reiseführer! In 4 Schritten ermöglichen wir Ihnen den Start unter der spanischen Sonne.
E-Mail info@gold-estates.be
Büro in Belgien: Moeistraat 20G, 9830 St-Martens-Latem
Büro in Spanien: Av. Marina Baixa 11, 03570 La Villa Joyosa, Alicante
© 2026 Gold Estates · Rechtlicher Hinweis · Privatsphäre · Cookies · BIV Legale Informatie · Web-Karte
Entwurf & CRM: Mediaelx
Finden Sie Ihr Traumhaus, indem Sie Ihre Immobilien speichern und Benachrichtigungen zu neuen verfügbaren Immobilien erhalten
Neuen Benutzer registrierenZunächst einmal, vielen Dank für Ihre Kontaktaufnahme.
Wir haben Ihre Anfrage bezüglich des Eigentumsverweises erhalten:GE-23245. Einer unserer Mitarbeiter wird sich so schnell wie möglich mit Ihnen in Verbindung setzen.
Zunächst einmal, vielen Dank für Ihre Kontaktaufnahme.
Wir haben eine Anfrage für einen Bericht erhalten, wenn Sie den Preis der Immobilie mit der Referenz senken: GE-23245
In der Zwischenzeit sehen Sie sich bitte diese Auswahl ähnlicher Objekte an, die für Sie von Interesse sein könnten: