Zunächst einmal, vielen Dank für Ihre Kontaktaufnahme.
Wir haben Ihre Anfrage bezüglich des Eigentumsverweises erhalten:GE-53471. Einer unserer Mitarbeiter wird sich so schnell wie möglich mit Ihnen in Verbindung setzen.
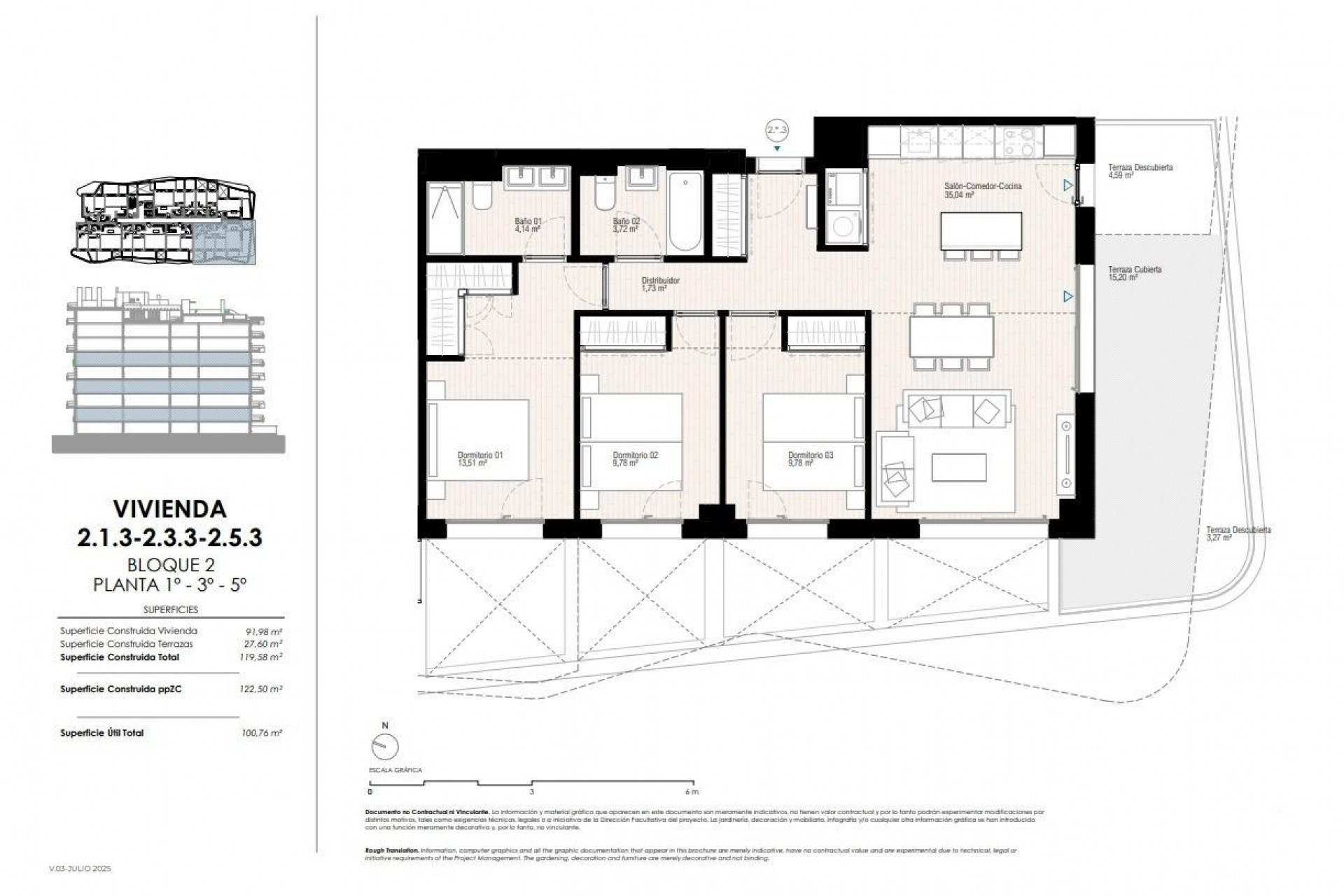
Luxus-Resort in Villajoyosa - Ein Paradies am Meer Entdecken Sie einen einzigartigen Wohnkomplex in Playa del Torres Weniger als 5 Gehminuten von der ruhigen Playa del Torres in Villajoyosa entfernt, bietet diese exklusive neue Anlage 164 moderne Apartments und Penthäuser mit 1 bis 3 Schlafzimmern. Die Wohnanlage wurde für den ultimativen Lebensstil entworfen und verbindet Luxus, Entspannung und unvergleichliche Annehmlichkeiten in einer ruhigen mediterranen Umgebung. Außergewöhnliche Annehmlichkeiten für alle Bewohner Das Herzstück dieser Wohnanlage ist das Roof Top, das sich auf dem Dach von Block 2 befindet. Dieser durchdacht gestaltete Bereich umfasst einen atemberaubenden Pool mit Panoramablick, Chill-out-Bereiche, eine Grillzone, einen Mehrzweckbereich und einen Pavillon, der sich perfekt zum geselligen Beisammensein oder Entspannen eignet. Eine Lounge im Innenbereich ist ideal für Gourmet-Dinner mit Freunden oder als Coworking-Space. Für Wasserliebhaber bietet der Komplex Folgendes: Pools im tropischen Stil mit Zugang wie am Strand. Ein beheiztes Schwimmbad, ein Kinderbecken und ein beheizter Jacuzzi. Fitnessbegeisterte können sich freuen: Fitnessräume im Innen- und Außenbereich mit Gymnastikparcours. Ein Putting Green und eine Minigolfanlage für Freizeitaktivitäten. Moderne Wohnungen mit erstklassiger Ausstattung Jede Wohnung ist ausgestattet mit: Eine voll ausgestattete Küche mit hochwertigen Geräten, einschließlich Kühlschrank, Mikrowelle, Backofen, Geschirrspüler und integrierter Waschmaschine/Trockner. Energieeffiziente aerothermische Systeme für Warmwasser und Klimaanlagen. Fußbodenheizung in den Bädern. Hochwertige PVC-Fenster mit Wärmedämmung und Doppelverglasung. Privater Parkplatz und Abstellraum für zusätzlichen Komfort. Das Gebäude verfügt über ein Energie-Rating der Klasse A, das maximale Effizienz und Nachhaltigkeit gewährleistet. Perfekte Lage in Villajoyosa Eingebettet in Playa del Torres, bietet dieser Komplex einen friedlichen Rückzugsort inmitten der Naturschönheiten. Das kristallklare Wasser und die türkisfarbenen Farbtöne des Strandes bieten eine idyllische Kulisse zum Entspannen. Die Anlage ist sehr günstig gelegen: 2 km vom charmanten Stadtzentrum von Villajoyosa entfernt. 10 km von Benidorm, mit seinem pulsierenden Nachtleben und seinen Einkaufsmöglichkeiten. 30 Minuten mit dem Auto zum Flughafen Alicante. Villajoyosa, bekannt für seine farbenfrohen Häuser und seine reiche Geschichte, bleibt ein authentisches mediterranes Juwel. Dieser Ort, der kürzlich von European Best Destinations als „Bestes geheimes Reiseziel in Europa 2024“ ausgezeichnet wurde, vereint Tradition, natürliche Schönheit und Ruhe. Ihr Traumhaus erwartet Sie in Playa del Torres Erleben Sie das Beste des modernen Lebens in einem Naturparadies. Mit seiner erstklassigen Lage, den luxuriösen Annehmlichkeiten und dem zeitgenössischen Design ist dieses Projekt perfekt für alle, die ein Haus am Meer suchen. Setzen Sie sich noch heute mit uns in Verbindung, um einen Besichtigungstermin zu vereinbaren und dieses atemberaubende Anwesen für sich zu gewinnen!