Zunächst einmal, vielen Dank für Ihre Kontaktaufnahme.
Wir haben Ihre Anfrage bezüglich des Eigentumsverweises erhalten:GE-35185. Einer unserer Mitarbeiter wird sich so schnell wie möglich mit Ihnen in Verbindung setzen.
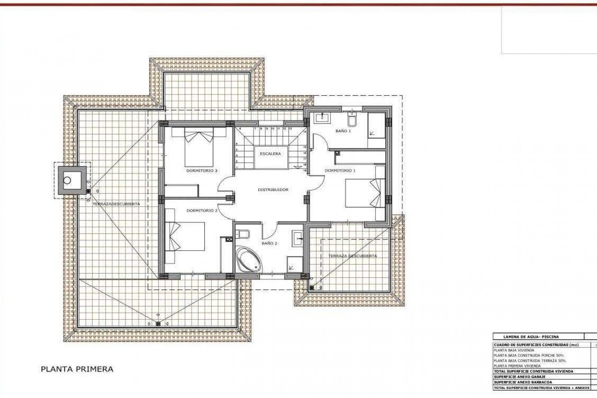
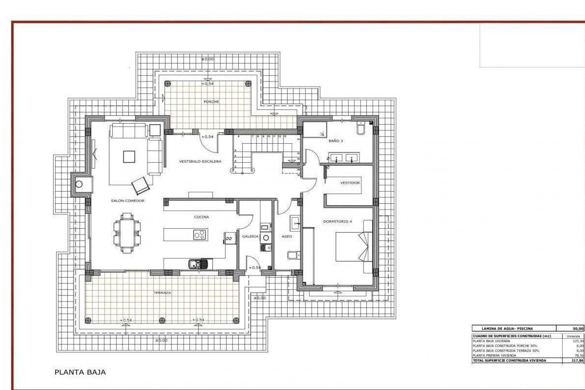
Neubauvillen in Pinoso auf ländlichen Grundstücken Sie können zwischen Villen mit traditionellen spanischen Elementen oder supermodernen, hellen und klaren Designs wählen. Es stehen verschiedene Größen mit 3 bis 6 Schlafzimmern und 1 oder 2 Etagen zur Auswahl. Es stehen verschiedene legale Grundstücke zur Auswahl (ländlich mit einer Mindestgröße von 10.000 m²), einige in unmittelbarer Nähe der Stadt, einige völlig privat und die beliebtesten sind 5-10 Autominuten von einer Stadt entfernt. Wir haben für jeden Geschmack ein Grundstück, alle mit atemberaubender Aussicht und alle mit Wasseranschluss + Strom im Preis inbegriffen und Highspeed-Internet verfügbar. Im angegebenen Preis sind 30.000 Euro für das Grundstück enthalten. Wenn das ausgewählte Grundstück teurer ist, wird die Differenz bezahlt. Vom größten und besten Bauunternehmer der Region und wir verwenden Materialien von höchster Qualität für ein perfektes Finish. Alle Häuser verfügen über eine 2 m breite Terrasse aus Stempelbeton rund um den Pool (Farbe und Muster nach Wahl), 1 m rund um das Haus, geschlossenem Eingang, 3.000 m² Umzäunung, Vorinstallation für eine Klimaanlage mit Luftkanälen, Standardküche, Sicherheitstür, deutschen Dreh-Kipp-Fenstern (oder Schiebefenstern, wenn gewünscht), eingebautem Kamin (in traditioneller Ausführung), Vorinstallation für Fernsehen und Internet, Kiesweg um das Haus herum und einer Klärgrube. Die Badezimmer sind mit Duschsäule, Duschwanne oder Badewanne, Waschbeckenmöbeln (verschiedene Farben zur Auswahl) mit Waschbecken, Wasserhähnen und Spiegeln sowie einer großen Auswahl an Wandfliesen ausgestattet. Große Auswahl an Keramikfliesen für den Boden, in verschiedenen Farben, mit Holzoptik usw. Die Küchen sind mit Schränken mit Standardtüren und -griffen, Spüle und Wasserhahn aus Edelstahl, Vorinstallation für Backofen, Geschirrspüler und Dunstabzugshaube ausgestattet. Verschiedene Granitarbeitsplatten zur Auswahl. Elektrogeräte nicht inbegriffen. Marmortreppe (cremefarben, weiß oder grau) und Geländer inklusive, sowie Geländer für die Veranda. Sie können das Haus nach Ihren Wünschen gestalten, die meisten Innenausbauten sind kostenlos, Sie können die Fliesen, Küchenarbeitsplatten, Marmor für die Treppen oder Regale usw. auswählen. Die Häuser können erweitert werden und wir können sogar Ihr eigenes Design bauen. Gegen Aufpreis können Sie verschiedene Extras wie einen größeren Pool, eine Einzel- oder Doppelgarage, ein Gästehaus usw. hinzubuchen. Die Stadt Pinoso liegt etwa 45 Minuten landeinwärts von Alicante und den weißen Sandstränden der Costa Blanca entfernt und in der Nähe der Grenze zwischen Murcia und Alicante. Sie hat knapp 8.000 Einwohner. Pinoso, auch bekannt als El Pinos, verdankt seinen Namen den Pinien, die die Berge der Region bedecken. Pinoso bietet einen ländlichen spanischen Lebensstil, ohne Ampeln, fast ohne Verkehr, die einzigen Staus werden praktisch nur durch Traktoren verursacht, die die Trauben zur Bodega transportieren. Die Felder sind mit Weinreben, Mandel- und Olivenbäumen bepflanzt. Im Februar sind die Felder voller rosa blühender Mandelbäume. Pinoso hat viele Bars, Restaurants und Geschäfte, ein neues 24-Stunden-Krankenhaus, Zahnärzte, zwei Grundschulen und eine weiterführende Schule sowie ein Theater. Es gibt ein ausgezeichnetes Sportzentrum mit Freibädern, Tennisplätzen, Fußballplätzen und einem Fitnessstudio, eine Bibliothek und viele andere Einrichtungen, darunter einen schönen Picknickplatz zwischen den Pinien mit Grillplätzen, Sitzbereichen und fließendem Wasser.