Zunächst einmal, vielen Dank für Ihre Kontaktaufnahme.
Wir haben Ihre Anfrage bezüglich des Eigentumsverweises erhalten:GE-36513. Einer unserer Mitarbeiter wird sich so schnell wie möglich mit Ihnen in Verbindung setzen.
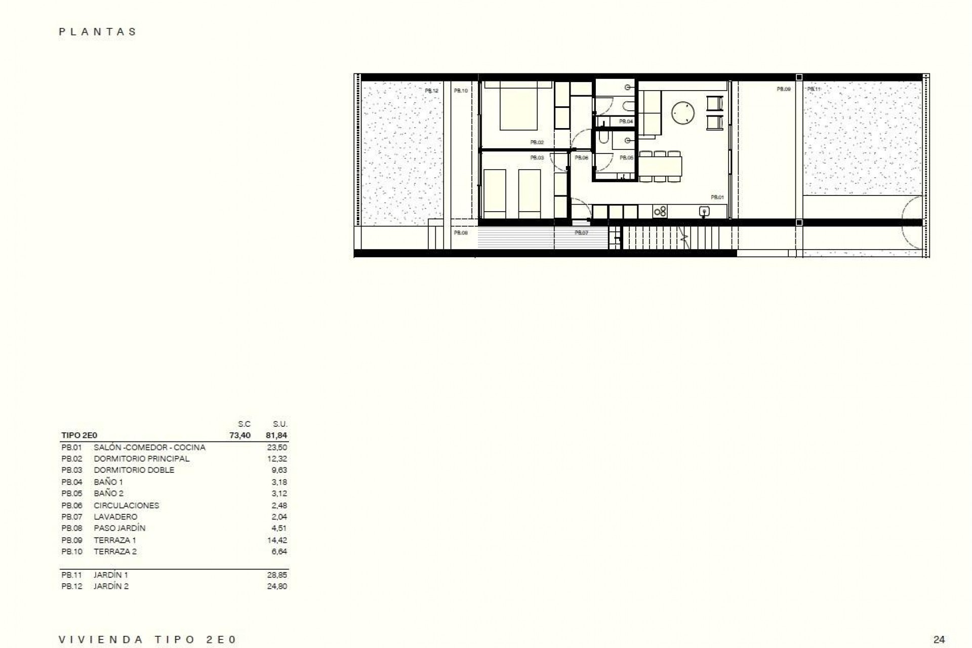
Neubau-Wohnungen in Los Balcones, Torrevieja Moderne Wohnungen in einer erstklassigen Wohngegend Entdecken Sie diesen attraktiven Neubau-Wohnkomplex in Los Balcones, einem der beliebtesten und etabliertesten Viertel am Stadtrand von Torrevieja. In einer ruhigen Umgebung mit ausgezeichneter Anbindung an alle wichtigen Dienstleistungen gelegen, befindet sich diese Wohnanlage nur 4 km von den Sandstränden der Costa Blanca entfernt. Los Balcones ist bekannt für seine entspannte Atmosphäre, breite Straßen, Grünflächen und die Nähe zu Krankenhäusern, Supermärkten, Restaurants und Einkaufszentren, was es ideal für das ganze Jahr oder als Ferienwohnsitz macht. Moderne Wohnungen mit privaten Außenbereichen Der Komplex besteht aus 52 modernen Wohnungen auf einer Gesamtfläche von 6700 m2. Jede Immobilie verfügt über einen privaten Parkplatz und einen Abstellraum in der Tiefgarage. Die Wohnungen verfügen über 2 oder 3 Schlafzimmer und 2 Badezimmer, eines davon en suite. Käufer können zwischen Wohnungen im Erdgeschoss mit privatem Garten oder Wohnungen in den oberen Etagen mit einer großzügigen Terrasse und einem privaten Solarium wählen. Diese Grundrisse sind so gestaltet, dass sie das natürliche Licht maximieren und komfortable Wohnräume im Innen- und Außenbereich bieten, um das mediterrane Klima das ganze Jahr über genießen zu können. Gemeinschaftsbereiche zum Entspannen Das Projekt ist in vier Blöcke unterteilt, die einen großen zentralen Gemeinschaftsbereich umgeben. Dieses grüne Herzstück der Anlage verfügt über einen Swimmingpool mit einem eigenen Kinderbereich und wunderschön angelegten Gärten. Diese Gemeinschaftsbereiche sind ideal zum Entspannen, für geselliges Beisammensein und für Familienzeit in einer sicheren und freundlichen Umgebung. Hochwertige Ausstattung und energieeffizientes Design Jede Wohnung wurde nach modernen Standards gebaut und verfügt über eine vorinstallierte Klimaanlage, ein aerothermisches Warmwassersystem für verbesserte Energieeffizienz, Außenbeleuchtung und doppelt verglaste Außenfenster. Die Küchen sind komplett ausgestattet und bieten einen funktionalen und stilvollen Raum für das tägliche Leben. Diese Merkmale sorgen für einen hohen Komfort, geringen Wartungsaufwand und reduzierten Energieverbrauch, wodurch die Wohnungen sowohl praktisch als auch nachhaltig sind. Ausgezeichnete Lage in der Nähe von Stränden und Golfplätzen Los Balcones bietet eine strategisch günstige Lage in der Nähe vieler Sehenswürdigkeiten. Die Strände von Torrevieja sind etwa 4 km entfernt. Mehrere renommierte Golfplätze wie Villamartin Golf, Las Ramblas Golf und Campoamor Golf sind innerhalb von 10 bis 15 km zu erreichen. Das Universitätskrankenhaus von Torrevieja ist weniger als 2 km entfernt, was für zusätzlichen Komfort und Sicherheit sorgt. Das Stadtzentrum von Torrevieja ist etwa 5 km entfernt und mit Los Balcones durch eine Busverbindung verbunden. Dort finden Sie eine große Auswahl an Geschäften, Restaurants, kulturellen Einrichtungen und einen lebhaften Yachthafen. Der internationale Flughafen Alicante ist etwa 42 km entfernt und bietet gute internationale Verbindungen. Der Hafen von Torrevieja ist etwa 6 km entfernt. Ideal zum Wohnen oder als Investition Mit seinem modernen Design, den ausgezeichneten Gemeinschaftsbereichen und der erstklassigen Lage in der Nähe von Stränden, Golfplätzen und Dienstleistungen eignet sich dieser neue Wohnkomplex in Los Balcones Torrevieja perfekt als Dauerwohnsitz, Ferienhaus oder Investitionsmöglichkeit. Kontaktieren Sie uns noch heute, um weitere Informationen zu erhalten oder eine Besichtigung dieser neu gebauten Apartments in Los Balcones, Torrevieja, zu vereinbaren.