Zunächst einmal, vielen Dank für Ihre Kontaktaufnahme.
Wir haben Ihre Anfrage bezüglich des Eigentumsverweises erhalten:MI-68282. Einer unserer Mitarbeiter wird sich so schnell wie möglich mit Ihnen in Verbindung setzen.
Email info@gold-estates.be
Büro in Belgien: Moeistraat 20G, 9830 St-Martens-Latem
Büro in Spanien: Av. Marina Baixa 11, 03570 La Villa Joyosa, Alicante
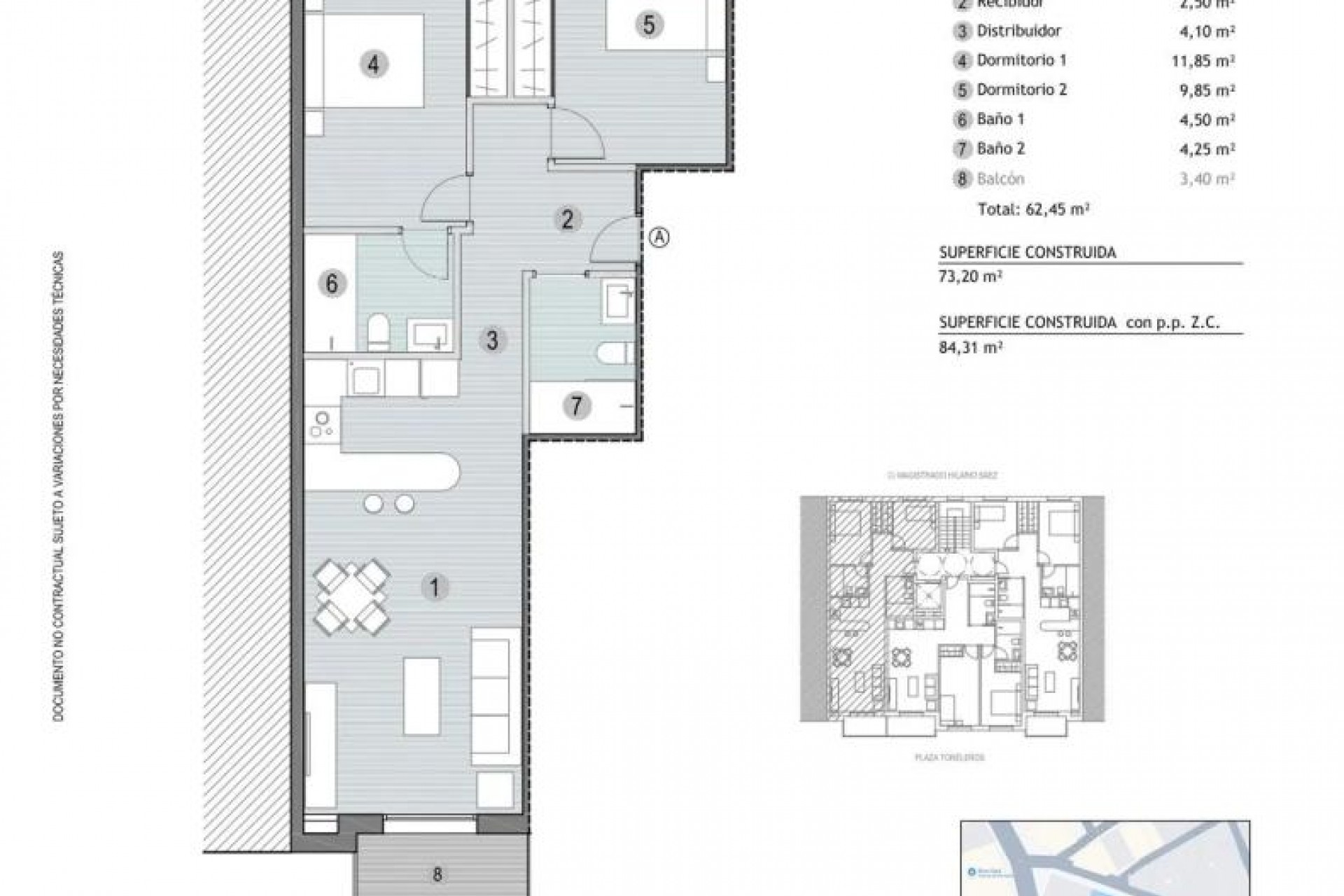
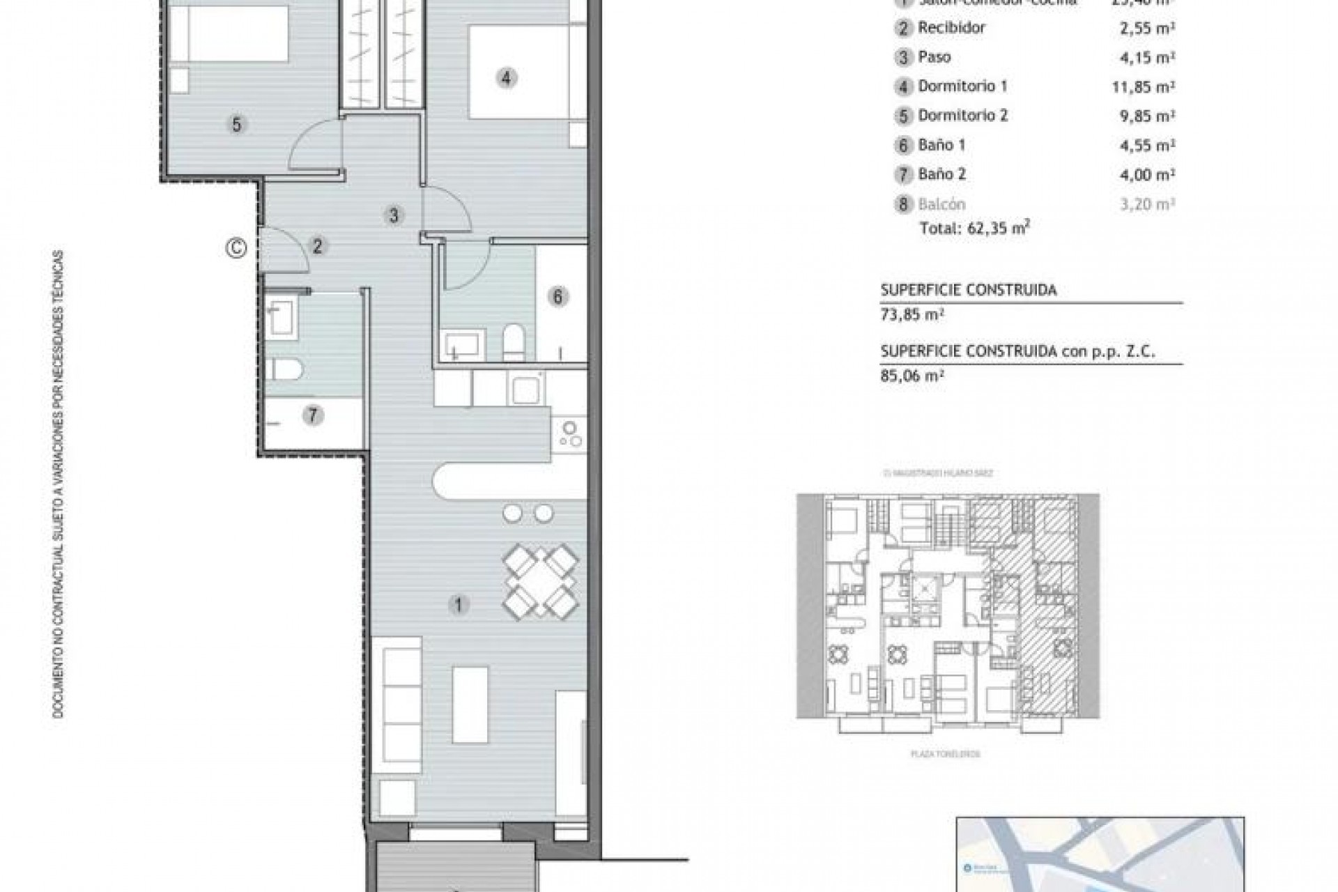
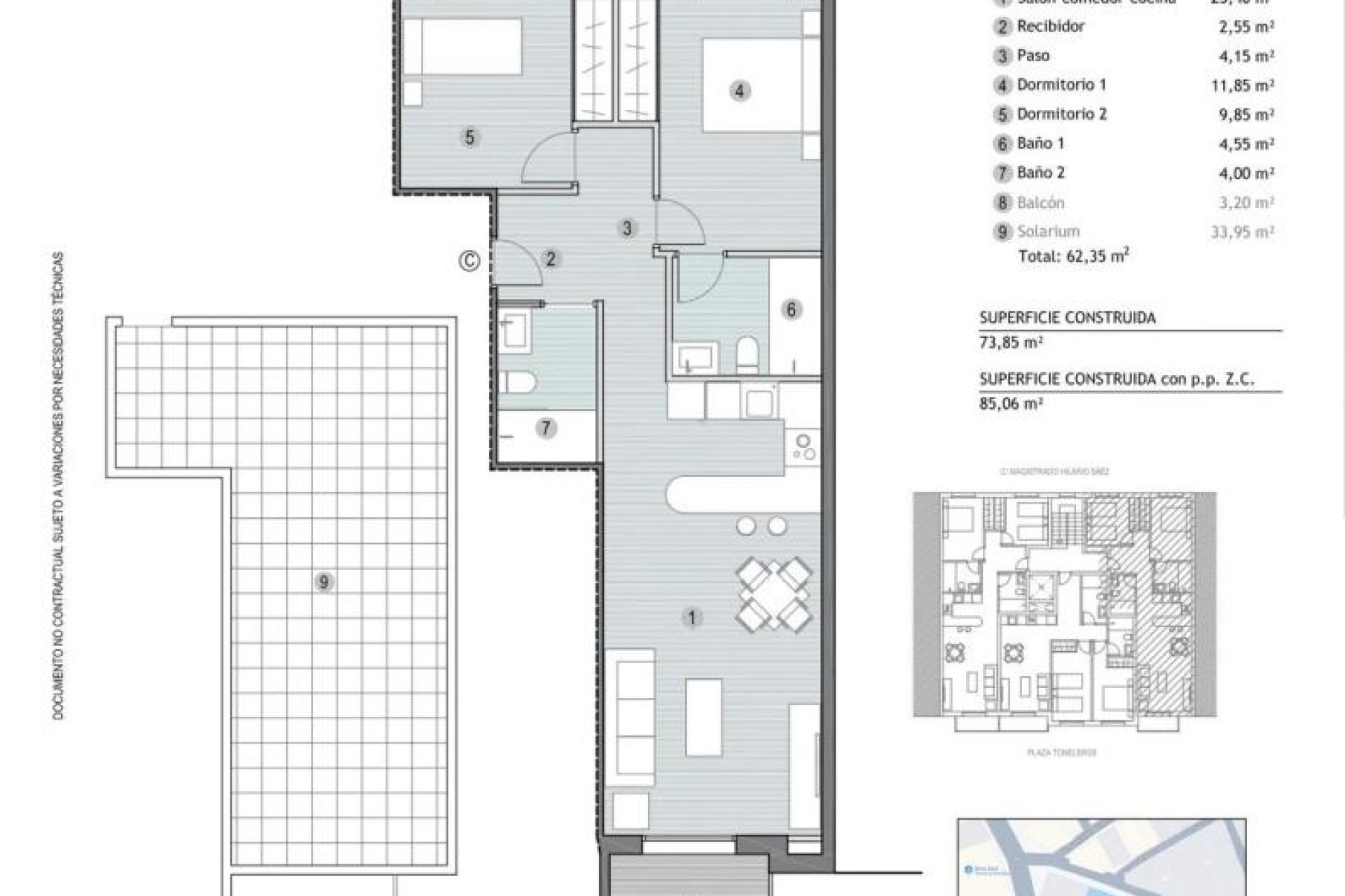
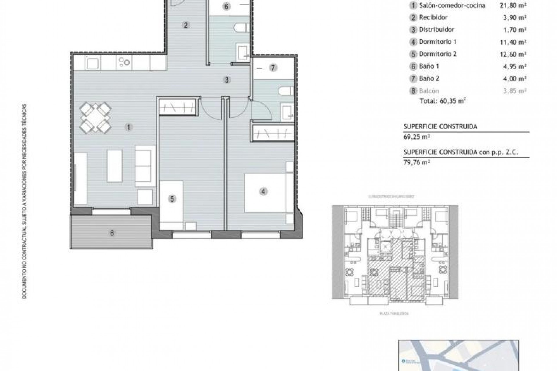
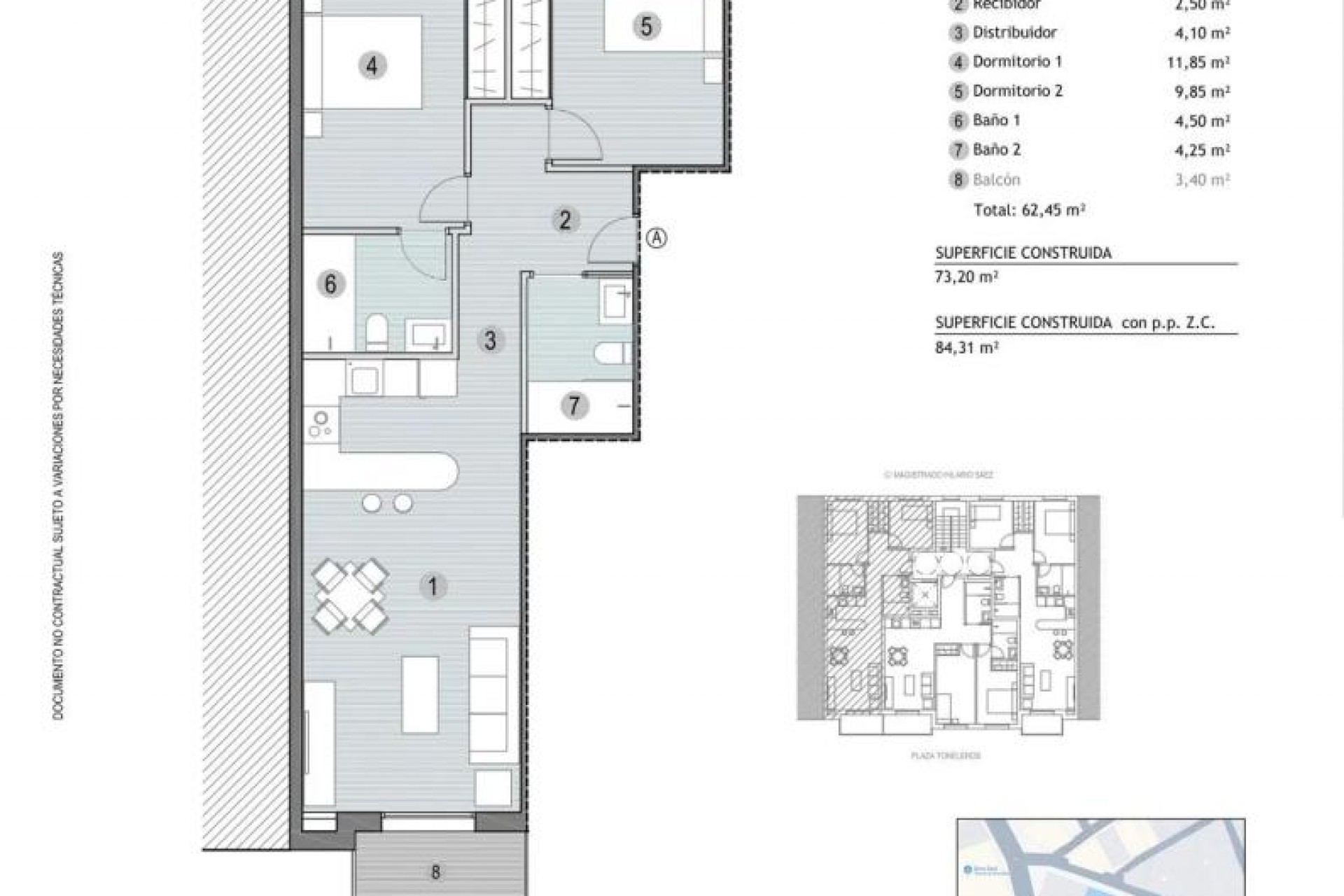
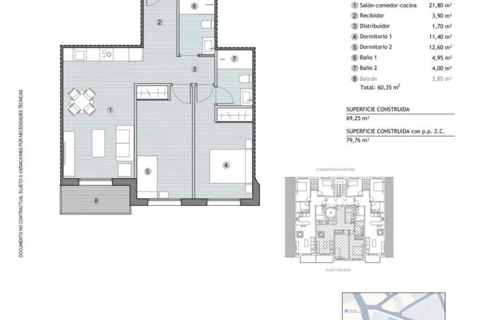
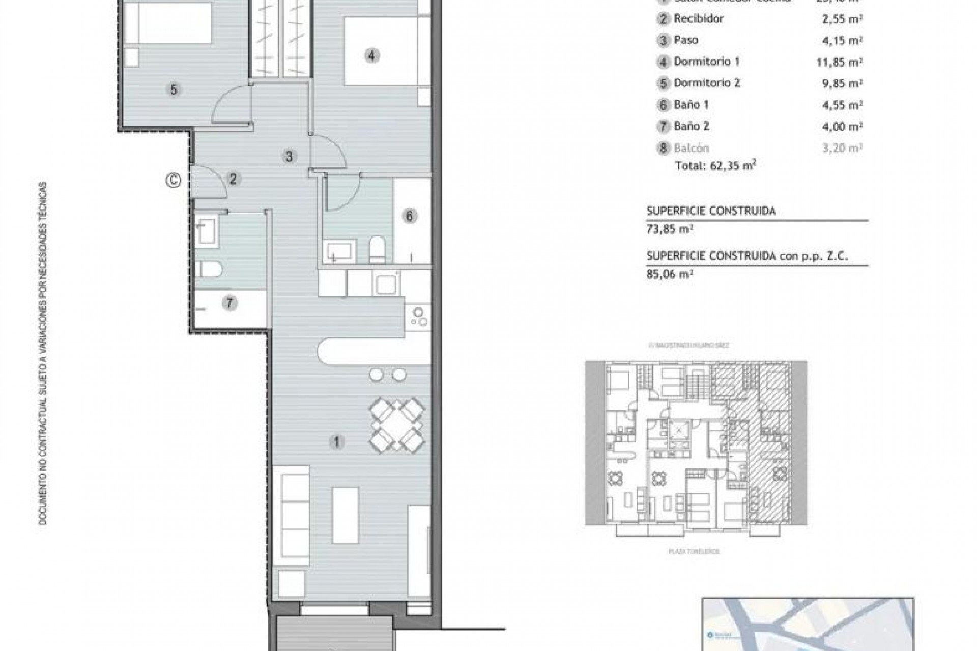
Im Herzen von El Puerto de Mazarrón, nur 3 Gehminuten vom Strand entfernt, wird diese attraktive Neubauentwicklung vorgestellt, die sowohl für ein Leben das ganze Jahr über als auch für die Nutzung als Zweitwohnsitz am Mittelmeer ideal ist. Ein privilegierter Standort, der die Ruhe der Küstenumgebung mit der Bequemlichkeit vereint, alle Dienstleistungen in unmittelbarer Nähe zu haben. Vorteile eines Neubaus Edificio Toneleros Das Projekt besteht aus einem Gebäude mit Erdgeschoss plus drei Stockwerken, insgesamt 10 Wohnungen, die mit einem funktionalen und zeitgemäßen Ansatz gestaltet wurden. Zudem umfasst das Gebäude: 1 Gewerbeeinheit im Erdgeschoss mit 50 m², die roh übergeben wird5 Garagenplätze zu je 16,05 m², was im zentralen Bereich zusätzlichen Komfort bietet Jedes der Regelgeschosse beherbergt drei sorgfältig verteilte Wohnungen, während das Erdgeschoss eine zusätzliche Wohnung neben der Gewerbeeinheit bietet. Leben in der Stadt Mazarrón Die Wohnungen werden in drei verschiedenen Typologien angeboten, die auf unterschiedliche Bedürfnisse abgestimmt sind: Typ A: 83,36 m² gebautTyp B: 78,86 m² gebautTyp C: 82,89 m² gebaut Alle Wohnungen verfügen über: 2 SchlafzimmerWohnzimmer mit ausgestatteter amerikanischer Küche, geräumig und hellTerrasse oder Balkon, ideal, um das mediterrane Klima zu genießen Die Wohnungen vom Typ A und C verfügen über 2 Badezimmer, während die vom Typ B über 1 Badezimmer verfügen. Das Projekt zeichnet sich durch eine sorgfältige Auswahl an Materialien aus, die Komfort, Langlebigkeit und Design garantieren: Bodenbelag aus hochbeständigem FeinsteinzeugAußenverkleidung aus anthrazitgrau lackiertem AluminiumInnenverkleidung aus weiß lackiertem DM, mit 7 cm strukturiertem TürrahmenClimalit-Verglasung, die hervorragende Wärme- und Schalldämmung bietet All das konzipiert, um moderne, effiziente und angenehme Wohnräume für den täglichen Gebrauch zu bieten. Diese Promotion stellt eine ausgezeichnete Gelegenheit sowohl für Wohnzwecke als auch für Investitionen dar, in einem Gebiet im Wachstum und wenige Meter vom Meer entfernt. Hier zu leben bedeutet, das Mittelmeer, das Küstenleben und alle Dienste ohne große Entfernungen zu genießen. 📩 Kontaktieren Sie uns für weitere Informationen und sichern Sie sich Ihr neues Zuhause in El Puerto de Mazarrón. 🔗 Präsentationen ansehen 🔍 Google-Tabelle einsehen
Diese hier angegebenen Informationen unterliegen Fehlern und sind nicht Bestandteil eines Vertrages. Das Angebot kann ohne vorherige Ankündigung geändert oder zurückgezogen werden. Die Preise beinhalten keine Einkaufskosten.
Ihr Traumleben in Spanien beginnt mit unserem praktischen Reiseführer! In 4 Schritten ermöglichen wir Ihnen den Start unter der spanischen Sonne.
E-Mail info@gold-estates.be
Büro in Belgien: Moeistraat 20G, 9830 St-Martens-Latem
Büro in Spanien: Av. Marina Baixa 11, 03570 La Villa Joyosa, Alicante
© 2026 Gold Estates · Rechtlicher Hinweis · Privatsphäre · Cookies · BIV Legale Informatie · Web-Karte
Entwurf & CRM: Mediaelx
Finden Sie Ihr Traumhaus, indem Sie Ihre Immobilien speichern und Benachrichtigungen zu neuen verfügbaren Immobilien erhalten
Neuen Benutzer registrierenZunächst einmal, vielen Dank für Ihre Kontaktaufnahme.
Wir haben Ihre Anfrage bezüglich des Eigentumsverweises erhalten:MI-68282. Einer unserer Mitarbeiter wird sich so schnell wie möglich mit Ihnen in Verbindung setzen.
Zunächst einmal, vielen Dank für Ihre Kontaktaufnahme.
Wir haben eine Anfrage für einen Bericht erhalten, wenn Sie den Preis der Immobilie mit der Referenz senken: MI-68282
In der Zwischenzeit sehen Sie sich bitte diese Auswahl ähnlicher Objekte an, die für Sie von Interesse sein könnten: