Zunächst einmal, vielen Dank für Ihre Kontaktaufnahme.
Wir haben Ihre Anfrage bezüglich des Eigentumsverweises erhalten:GE-77958. Einer unserer Mitarbeiter wird sich so schnell wie möglich mit Ihnen in Verbindung setzen.
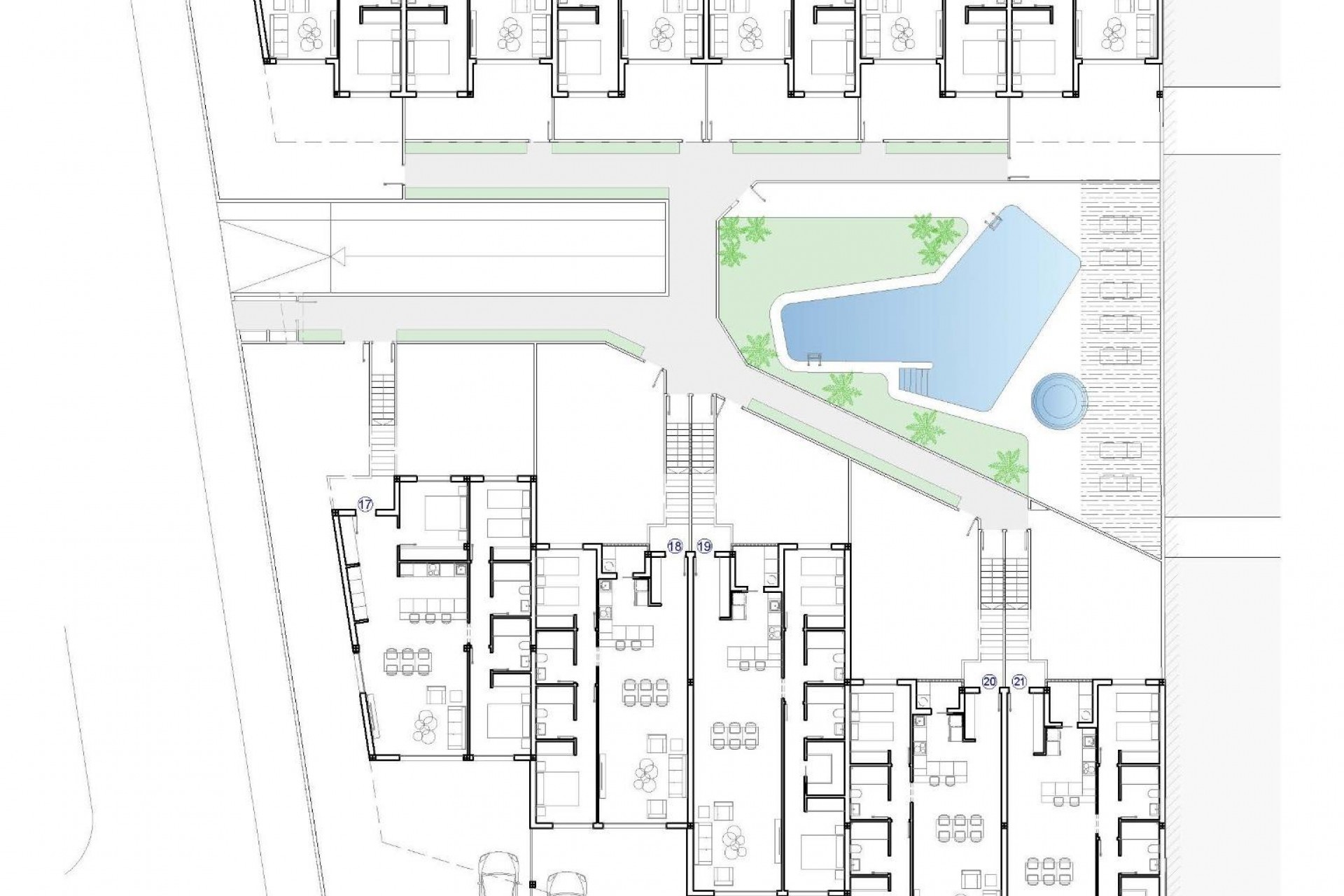
Neubauwohnungen und Bungalows zum Verkauf in Pilar de la Horadada in Strandnähe Exklusive Wohnanlage an der südlichen Costa Blanca Entdecken Sie diesen modernen Neubauwohnkomplex in Pilar de la Horadada, der südlichsten Stadt an der Costa Blanca. Diese Boutique-Anlage bietet eine Auswahl an zeitgenössischen Wohnungen und Bungalows, die Komfort, Funktionalität und mediterranen Lebensstil vereinen. Das Projekt umfasst nur 26 sorgfältig gestaltete Wohnungen mit 2 oder 3 Schlafzimmern und 2 Bädern und ist somit eine ideale Option sowohl für den dauerhaften Wohnsitz als auch für den Urlaub. Die Anlage befindet sich in einer ruhigen Wohngegend in Gehweite zum Stadtzentrum, wo die Bewohner Restaurants, Cafés, Supermärkte, lokale Geschäfte und alle wichtigen Dienstleistungen finden. Pilar de la Horadada ist eine charmante spanische Stadt, die für ihre einladende Atmosphäre, ihre lebhafte Hauptstraße und ihre schönen Plätze bekannt ist. Dank der hervorragenden Anbindung an die nahe gelegenen Küstengebiete und Golfresorts ist sie ein beliebtes Ziel für internationale Käufer, die Sonnenschein und Lebensqualität suchen. Apartments und Bungalows mit privaten Außenbereichen Die Anlage bietet zwei verschiedene Immobilientypen für unterschiedliche Lebensstile. Der Komplex umfasst 16 moderne Apartments. Käufer können zwischen Wohnungen im Erdgeschoss mit privaten Gärten, Wohnungen im mittleren Stockwerk mit großzügigen Terrassen oder Penthäusern mit privaten Terrassen und Dachterrassen wählen. Jedes Apartment verfügt über einen Parkplatz und einen Abstellraum in der Tiefgarage. Außerdem stehen 10 Bungalows zur Verfügung. Die Bungalows im Erdgeschoss verfügen über private Gärten und Parkplätze auf dem Grundstück, während die Bungalows im Obergeschoss Terrassen und private Sonnenterrassen bieten. Diese Wohnungen in den oberen Etagen verfügen über Parkplätze und Abstellräume im Untergeschoss. Alle Wohnungen wurden mit hellen Innenräumen, offenen Grundrissen und komfortablen Wohnbereichen gestaltet, die sich nahtlos zu den Außenbereichen hin öffnen. Hochwertige Bauweise und moderne Ausstattung Die Wohnungen wurden mit hochwertigen Materialien und modernen Systemen gebaut, um das ganze Jahr über Komfort und Energieeffizienz zu gewährleisten. Ausgestattete Küchen Voll ausgestattete Badezimmer mit Duschwänden und Fußbodenheizung Energieeffizientes aerothermisches Warmwassersystem Vorinstallation für eine Klimaanlage mit Luftkanälen Die Bewohner profitieren außerdem von einem Gemeinschaftspool, der von gepflegten Gärten und Liegeflächen umgeben ist und eine entspannte Umgebung schafft, um das mediterrane Klima zu genießen. Ausgezeichnete Lage in der Nähe von Stränden und Golfplätzen Die Wohnanlage genießt eine strategisch günstige Lage in der Nähe einiger der besten Strände und Golfplätze der Region. Strand Torre de la Horadada 3 km Strand Mil Palmeras 3 km Lo Romero Golf 6 km Internationaler Flughafen Murcia 45 km Flughafen Alicante Elche 75 km Die Gegend bietet außerdem eine hervorragende Verkehrsanbindung an die nahe gelegenen Küstenstädte, Yachthäfen und Freizeiteinrichtungen entlang der Costa Blanca und der Costa Calida. Finden Sie Ihr neues Zuhause in Pilar de la Horadada Dieser attraktive Neubau-Wohnkomplex bietet moderne Wohnungen, hochwertige Ausstattungen und eine fantastische Lage in Strandnähe. Kontaktieren Sie uns noch heute, um weitere Informationen zu erhalten oder einen Besichtigungstermin zu vereinbaren und sich Ihre neue Immobilie an der Costa Blanca zu sichern.