Zunächst einmal, vielen Dank für Ihre Kontaktaufnahme.
Wir haben Ihre Anfrage bezüglich des Eigentumsverweises erhalten:GE-94945. Einer unserer Mitarbeiter wird sich so schnell wie möglich mit Ihnen in Verbindung setzen.
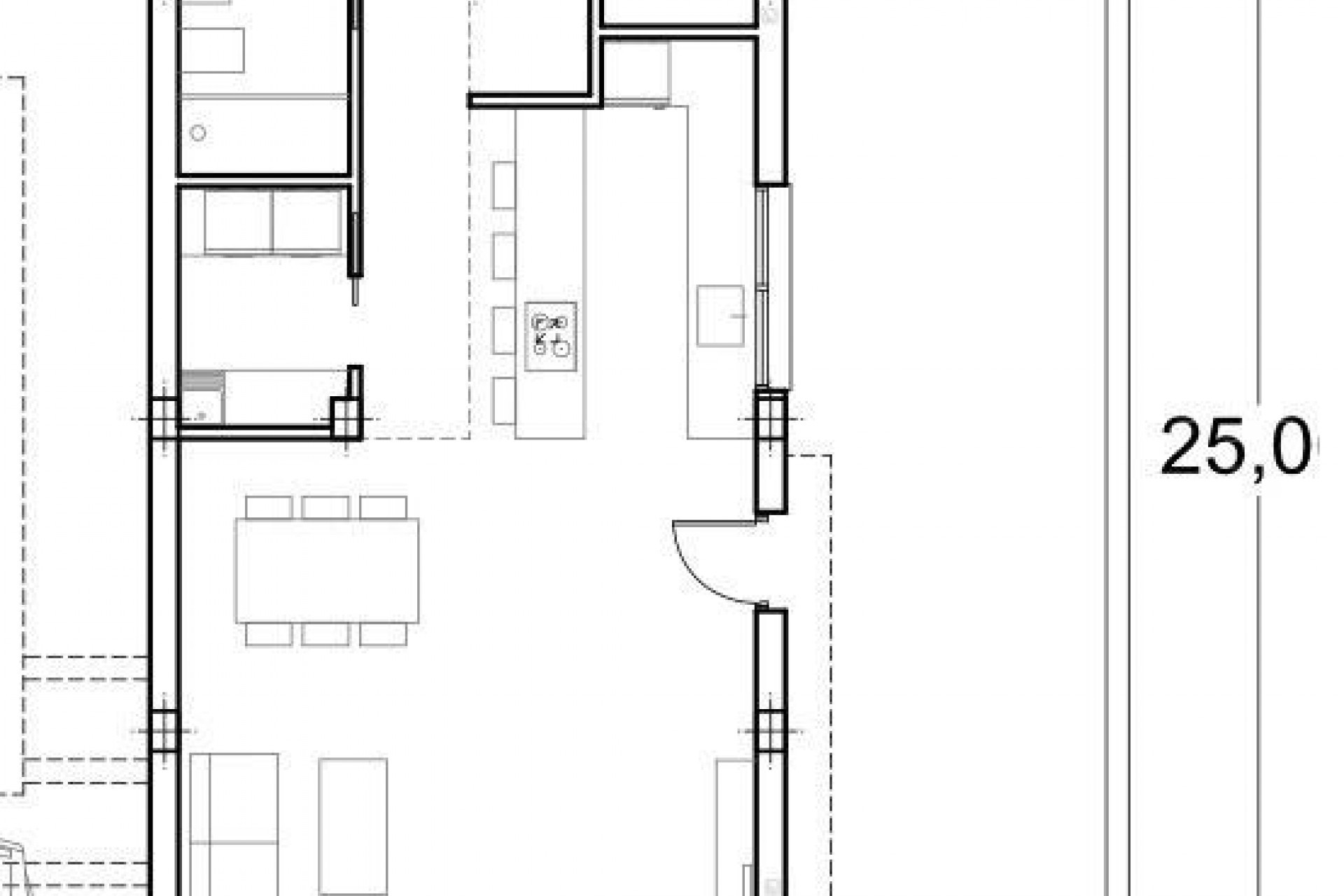
Neubauvillen mit privatem Pool in der Nähe des Golfplatzes La Serena in Los Alcázares Exklusive Boutique-Wohnanlage in der Nähe von Golfplatz und Strand Entdecken Sie diese exklusive Wohnanlage mit nur acht freistehenden Neubauvillen in idealer Lage zwischen dem Golfplatz La Serena und dem charmanten Küstenort Los Alcázares. Nur 1500 Meter von den Stränden des Mar Menor entfernt bieten diese Häuser die perfekte Kombination aus Golf, Meer und mediterranem Lebensstil. Dank der Lage können die Bewohner sowohl den Golfplatz als auch das Stadtzentrum bequem zu Fuß erreichen, wo eine große Auswahl an Restaurants, Geschäften, Cafés und wichtigen Dienstleistungen zu finden ist. Los Alcázares ist bekannt für seine entspannte Atmosphäre, die lange Promenade und das flache, warme Wasser, was es zu einem beliebten Ziel sowohl für Urlauber als auch für Dauerbewohner macht. Moderne Villen mit flexiblen Grundrissen Diese zeitgemäßen Villen sind in Ausführungen mit zwei oder drei Schlafzimmern erhältlich, wahlweise als einstöckige oder zweistöckige Modelle. Erbaut auf privaten Grundstücken ab 200 m², ist jedes Haus darauf ausgelegt, Raum, Komfort und Tageslicht optimal zu nutzen. Alle Villen verfügen über einen privaten Swimmingpool und einen Parkplatz auf dem Grundstück, wodurch eine private und funktionale Außenumgebung entsteht, die ideal ist, um das sonnige Klima das ganze Jahr über zu genießen. Einstöckige Villen verfügen über eine private Dachterrasse, die sich perfekt zum Sonnenbaden oder Entspannen mit freiem Blick eignet. Zweistöckige Villen bieten geräumige Terrassen im Obergeschoss, die zusätzliche Wohnbereiche im Freien schaffen. Offener Wohnbereich und Verbindung zum Außenbereich Die Innenraumgestaltung konzentriert sich auf einen offenen Wohnbereich, wobei helle Wohn- und Essbereiche nahtlos mit modernen Küchen verbunden sind. Große Fenster lassen Tageslicht in die Räume strömen und bieten gleichzeitig direkten Zugang zu Terrassen und Poolbereichen. Dieses Design unterstreicht den Lebensstil, der das Wohnen an der Costa Calida ausmacht, und macht diese Villen ideal sowohl für den Alltag als auch für die Bewirtung von Gästen. Hochwertige Ausstattung und moderne Annehmlichkeiten Die Villen werden nach hohen Standards unter Verwendung hochwertiger Materialien und bewährter Marken gebaut. Zur Ausstattung gehören eine verstärkte Sicherheitseingangstür von DIERRE, Einbauschränke und moderne Küchen mit BOSCH-Geräten. Zu den weiteren Ausstattungsmerkmalen gehören ein aerothermisches System für Warmwasser, motorisierte Rollläden und ein automatisches Einfahrtstor. Jedes Detail wurde sorgfältig durchdacht, um Komfort, Effizienz und Bequemlichkeit zu gewährleisten. Erstklassige Lage an der Costa Calida Los Alcazares bietet eine hervorragende Lage mit guter Anbindung an Strände, Golfplätze und Verkehrsverbindungen. Die Strände des Mar Menor sind nur 1,5 km entfernt, während der Golfplatz La Serena zu Fuß erreichbar ist. Weitere wichtige Entfernungen sind der Flughafen Murcia-Corvera (35 km), Cartagena (25 km), die Stadt Murcia (50 km) und der Flughafen Alicante (90 km). Ideale Gelegenheit als Investition oder Ferienhaus Diese neu gebauten Villen bieten eine seltene Gelegenheit, eine moderne Immobilie in bester Lage in der Nähe von Meer und Golfplatz zu erwerben. Kontaktieren Sie uns noch heute für weitere Informationen oder um einen Besichtigungstermin zu vereinbaren und sich Ihre neue Villa in Los Alcazares zu sichern.