Zunächst einmal, vielen Dank für Ihre Kontaktaufnahme.
Wir haben Ihre Anfrage bezüglich des Eigentumsverweises erhalten:GE-23094. Einer unserer Mitarbeiter wird sich so schnell wie möglich mit Ihnen in Verbindung setzen.
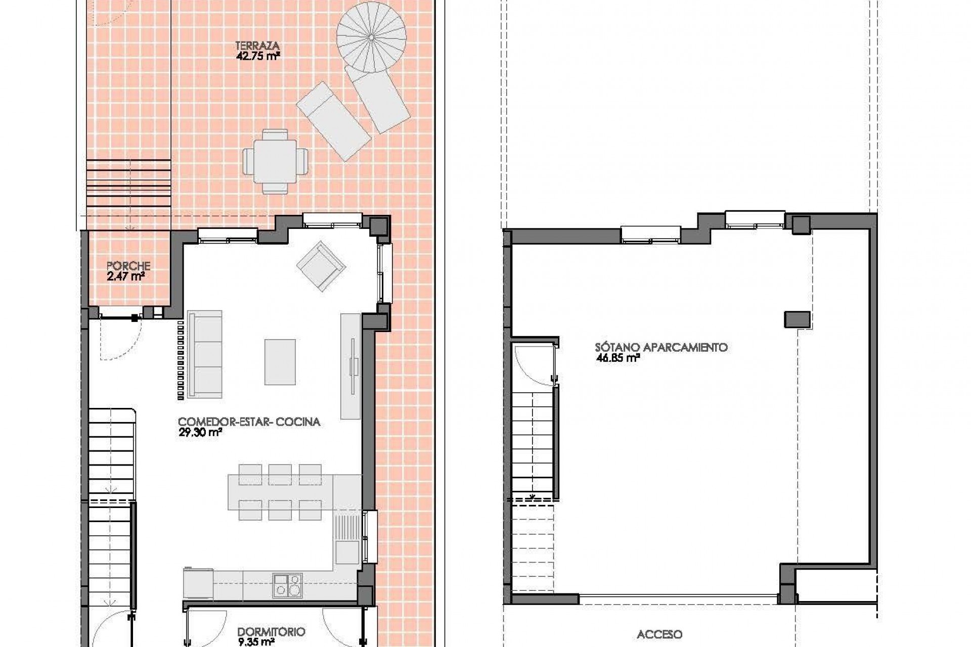
Exklusive Doppelhaushälften und Villen in Bigastro, Alicante Häuser im mediterranen Stil im Herzen der Vega Baja Diese neue Wohnanlage in Bigastro, einem charmanten Dorf in der Vega Baja, bietet 8 Vierfamilienhäuser und 2 Doppelhaushälften im eleganten mediterranen Stil. In einer ruhigen und gut erschlossenen Gegend gelegen, sind diese Immobilien ideal für diejenigen, die eine perfekte Kombination aus Komfort, Privatsphäre und Nähe zu allen Annehmlichkeiten suchen. Geräumiges und funktionales Design Jedes Haus wurde so konzipiert, dass es viel Platz und Komfort bietet, mit 4 Schlafzimmern und 3 Bädern, die sich auf 2 Etagen verteilen. Erdgeschoss: Ein Schlafzimmer, Bad, offene Küche mit Zugang zum Wohnzimmer, Waschküche und Zugang zum Garten. Obergeschoss: 3 Schlafzimmer, darunter das Hauptschlafzimmer mit eigenem Bad. Private Sonnenterrasse von 40 m², ideal, um das mediterrane Klima und den freien Blick zu genießen. Privater Garten mit der Möglichkeit eines Swimmingpools, der gegen Aufpreis erhältlich ist. Private Garage von mehr als 60 m² im Untergeschoss, mit direktem Zugang zum Grundstück. Bigastro: Ruhe und Konnektivität Bigastro ist eine gemütliche Gemeinde im Süden von Alicante, bekannt für ihre ruhige Umgebung und ihre hervorragende Anbindung an die wichtigsten Städte und Strände der Costa Blanca. Orihuela - 5 km (5 Minuten mit dem Auto). Guardamar Strände - 25 km (15 Minuten mit dem Auto). Torrevieja - 30 km (25 Minuten mit dem Auto). Flughafen Alicante - 55 km (30 Minuten mit dem Auto). Einkaufszentrum Zenia Boulevard - 30 km (25 Minuten mit dem Auto). Die Gemeinde verfügt über alle wichtigen Dienstleistungen wie Supermärkte, Schulen, Sportzentren und ein reichhaltiges gastronomisches Angebot, was sie zu einem idealen Ort sowohl für einen ständigen Wohnsitz als auch für einen Zweitwohnsitz macht. Entdecken Sie Ihr neues Zuhause an der Costa Blanca Wenn Sie auf der Suche nach einem modernen und geräumigen Haus in einer ruhigen, aber dennoch verkehrsgünstigen Lage sind, dann sind diese Villen und Vierfamilienhäuser in Bigastro die ideale Wahl. Kontaktieren Sie uns noch heute für weitere Informationen oder um einen Besichtigungstermin zu vereinbaren. Übersetzt mit DeepL.com (kostenlose Version)