Zunächst einmal, vielen Dank für Ihre Kontaktaufnahme.
Wir haben Ihre Anfrage bezüglich des Eigentumsverweises erhalten:GEE-47188. Einer unserer Mitarbeiter wird sich so schnell wie möglich mit Ihnen in Verbindung setzen.
Email info@gold-estates.be
Büro in Belgien: Moeistraat 20G, 9830 St-Martens-Latem
Büro in Spanien: Av. Marina Baixa 11, 03570 La Villa Joyosa, Alicante
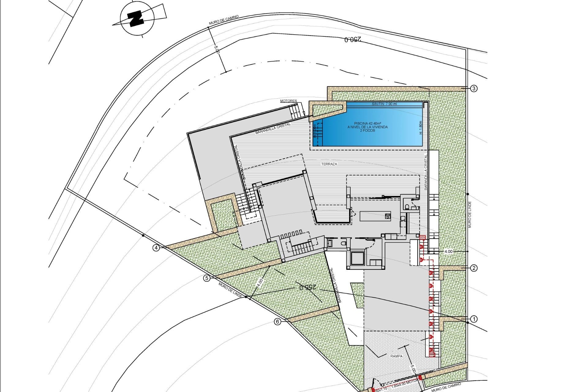
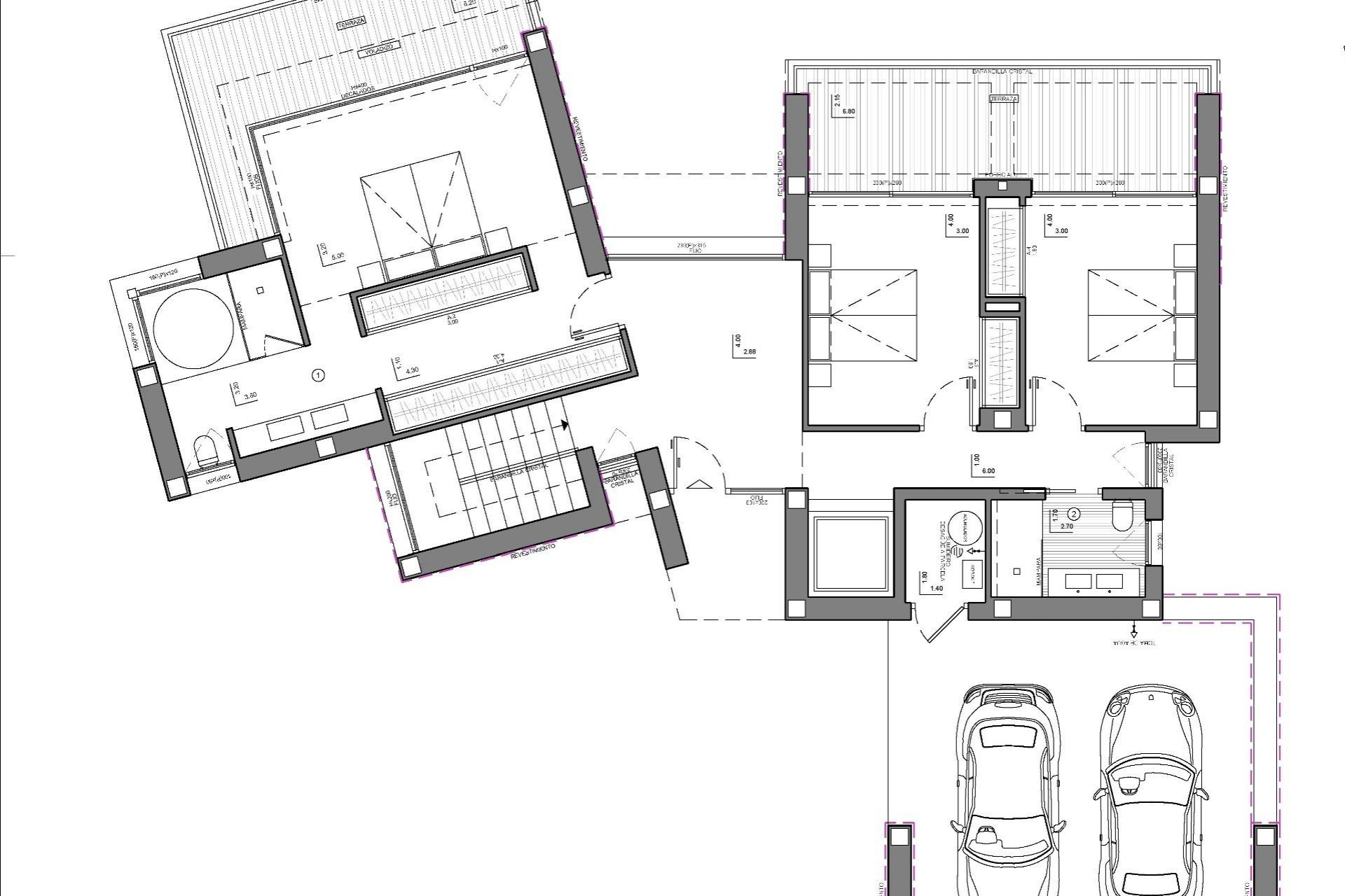
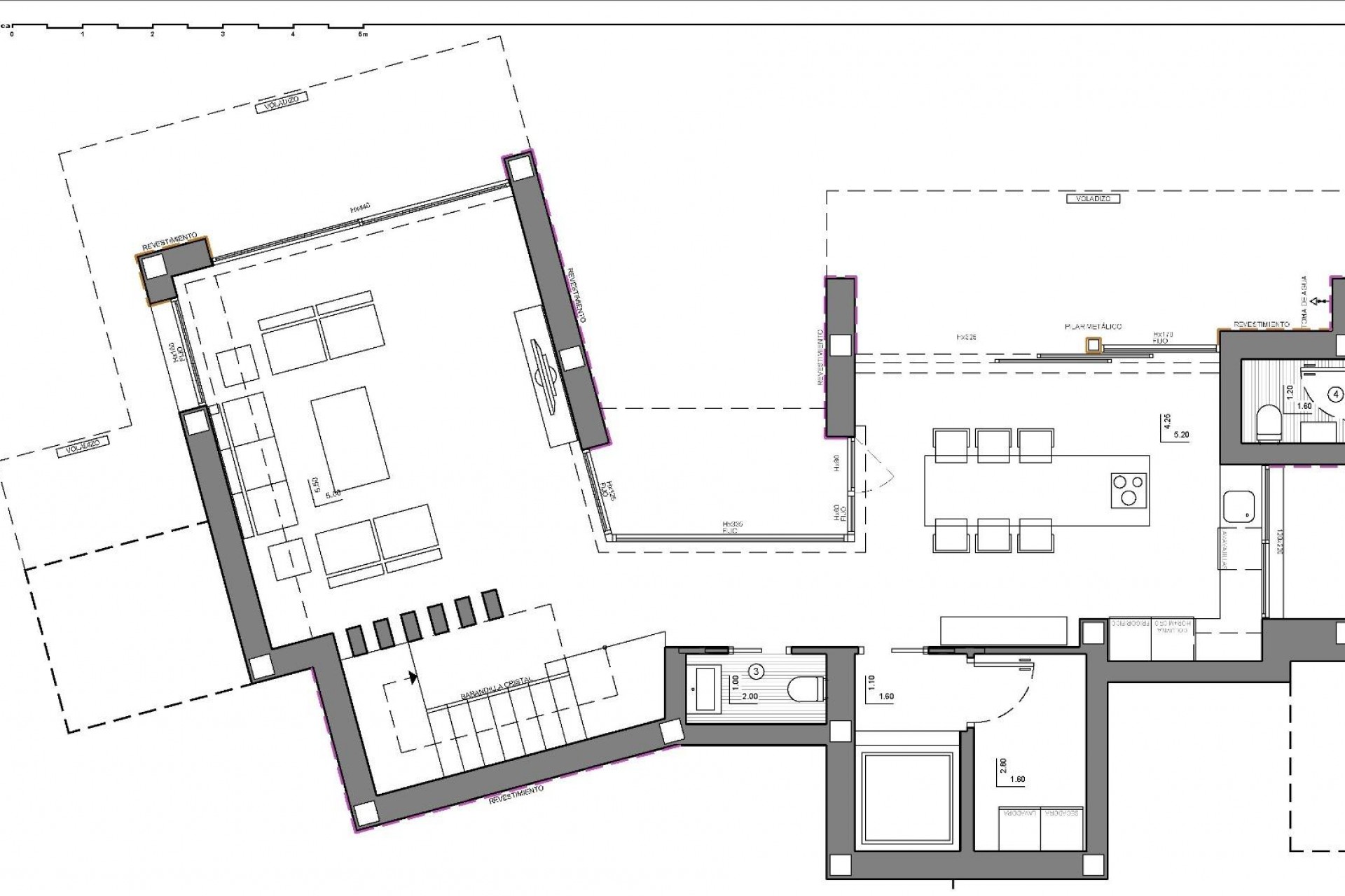
NEU GEBAUTE LUXUSVILLA IN CUMBRE DEL SOL Im Herzen der Wohnanlage Cumbre del Sol befindet sich diese Luxusvilla mit eigenem Pool. New Build moderne Villa Design kombiniert in einer eleganten und funktionalen Weise, moderne und mediterrane Architektur. An der Fassade, die sich durch große geometrische Formen auf der Grundlage diagonaler Linien auszeichnet, dominiert die Farbe Weiß, und die Verwendung von Naturstein lässt sie mit ihrer Umgebung verschmelzen. Der riesige Garten im mediterranen Stil, der von einem Infinity-Pool gekrönt wird, der mit dem Blau des Meeres verschmilzt, lädt zusammen mit dem milden Klima der nördlichen Costa Blanca dazu ein, fast das ganze Jahr über lange Tage an der frischen Luft zu verbringen. Die Lage erlaubt es Ihnen, eine ruhige und komfortable Umgebung zu genießen. Die Villa ist über 3 Etagen verteilt. Der Zugang zur Villa erfolgt über die oberste Etage mit einem überdachten Parkplatz für zwei Fahrzeuge und einem Aufzug, der das gesamte Haus verbindet. Auf dieser Etage befindet sich der "Nachtbereich", bestehend aus zwei Schlafzimmern, einer Suite mit Bad, begehbarem Kleiderschrank und eigener Terrasse sowie einem Gemeinschaftsbad. Alle Schlafzimmer haben Zugang zu einer Terrasse, von der aus Sie einen der besten Meerblicke der Costa Blanca genießen können. Aufzuwachen und den Sonnenaufgang am Horizont des Mittelmeers zu beobachten, ist einer der vielen Annehmlichkeiten, die diese Villa zu bieten hat. In der unteren Etage befindet sich der Wohnbereich, in dem die weiten, offenen Räume und das natürliche Licht die Hauptattraktionen sind, und in dem die Grenzen zwischen Innen und Außen dank der großen Glaswände, die den Zugang zum Garten und zum Poolbereich ermöglichen, verschmelzen. Die Küche ist mit modernen Marken-Elektrogeräten ausgestattet und verfügt über eine zentrale Kochinsel sowie eine geräumige Arbeitsfläche, die viel Stauraum bietet. Der Außenbereich verfügt über einen überdachten Bereich, in dem Sie die besten gesellschaftlichen Veranstaltungen abhalten können, während Sie vor der Sonne geschützt sind. Das Untergeschoss dieser Villa ermöglicht es uns, es in ein 4-Schlafzimmer umzuwandeln oder diesen Raum nach Ihren Wünschen zu gestalten (Fitnessraum, Büro, Spielzimmer...) Die Villa verfügt über Fußbodenheizung, Klimaanlage warm/kalt, Hausautomationssystem, ECODAN... Die Wohnanlage verfügt über einen eigenen Supermarkt, Bars und Restaurants, Sportanlagen und sogar einen Glasfaseranschluss, der Cumbre del Sol zu einem idealen Ort macht, um von zu Hause aus zu arbeiten. All diese Eigenschaften machen Villa perfekte Option, um mit Freunden und Familie während längerer Zeit oder sogar als Hauptwohnsitz zu genießen.
Diese hier angegebenen Informationen unterliegen Fehlern und sind nicht Bestandteil eines Vertrages. Das Angebot kann ohne vorherige Ankündigung geändert oder zurückgezogen werden. Die Preise beinhalten keine Einkaufskosten.
Ihr Traumleben in Spanien beginnt mit unserem praktischen Reiseführer! In 4 Schritten ermöglichen wir Ihnen den Start unter der spanischen Sonne.
E-Mail info@gold-estates.be
Büro in Belgien: Moeistraat 20G, 9830 St-Martens-Latem
Büro in Spanien: Av. Marina Baixa 11, 03570 La Villa Joyosa, Alicante
© 2026 Gold Estates · Rechtlicher Hinweis · Privatsphäre · Cookies · BIV Legale Informatie · Web-Karte
Entwurf & CRM: Mediaelx
Finden Sie Ihr Traumhaus, indem Sie Ihre Immobilien speichern und Benachrichtigungen zu neuen verfügbaren Immobilien erhalten
Neuen Benutzer registrierenZunächst einmal, vielen Dank für Ihre Kontaktaufnahme.
Wir haben Ihre Anfrage bezüglich des Eigentumsverweises erhalten:GEE-47188. Einer unserer Mitarbeiter wird sich so schnell wie möglich mit Ihnen in Verbindung setzen.
Zunächst einmal, vielen Dank für Ihre Kontaktaufnahme.
Wir haben eine Anfrage für einen Bericht erhalten, wenn Sie den Preis der Immobilie mit der Referenz senken: GEE-47188
In der Zwischenzeit sehen Sie sich bitte diese Auswahl ähnlicher Objekte an, die für Sie von Interesse sein könnten: