Zunächst einmal, vielen Dank für Ihre Kontaktaufnahme.
Wir haben Ihre Anfrage bezüglich des Eigentumsverweises erhalten:GE2-28457. Einer unserer Mitarbeiter wird sich so schnell wie möglich mit Ihnen in Verbindung setzen.
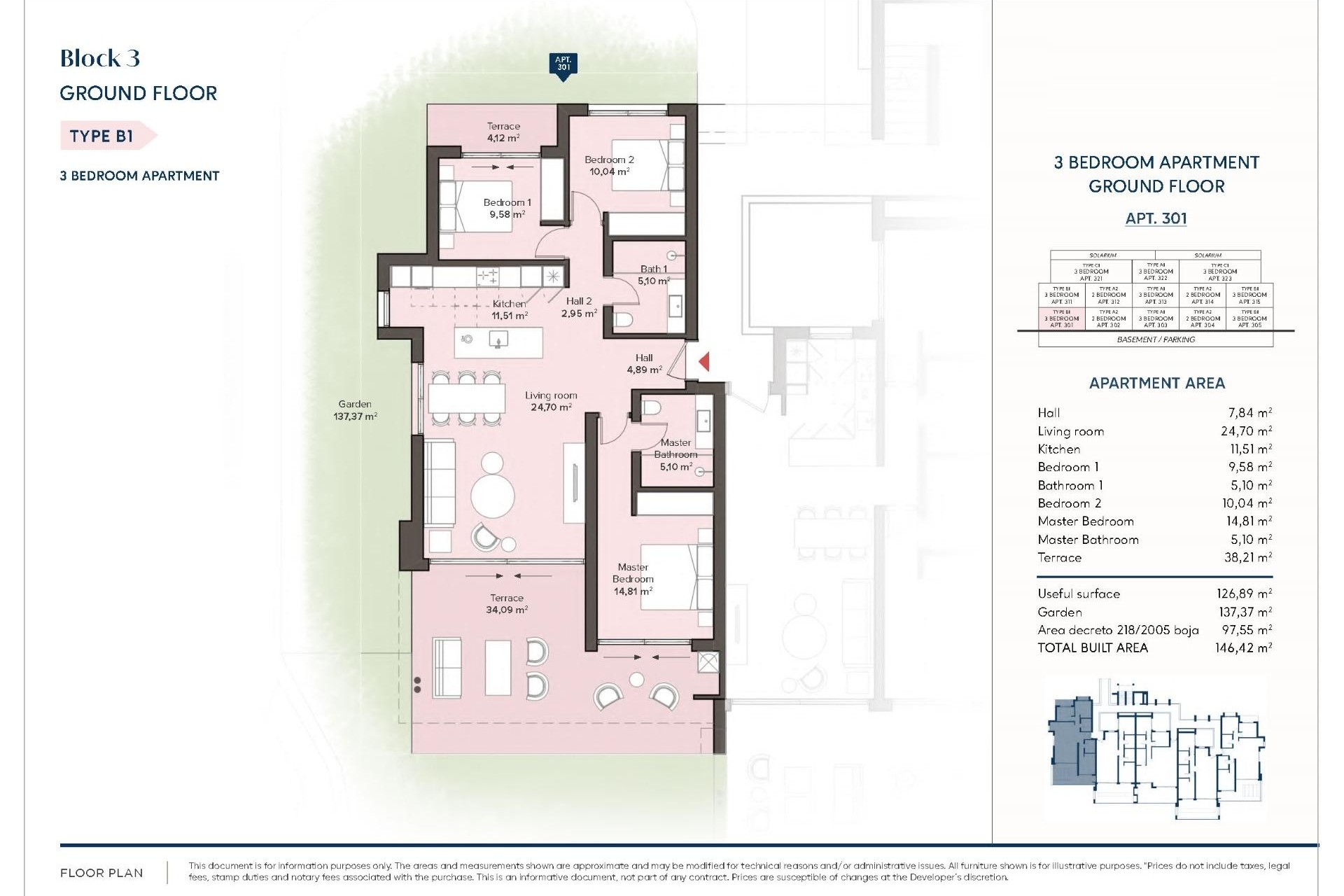
Modernes Wohnen in Estepona: Geräumige Wohnungen mit sonnigen Terrassen Ihr ideales Zuhause erwartet Sie Willkommen in Ihrem Traumhaus in Estepona, einer charmanten Küstenstadt, die für ihre entspannte Atmosphäre und ihre atemberaubende natürliche Schönheit bekannt ist. Diese moderne Wohnanlage, die von dem renommierten Architekturbüro Villarroel entworfen wurde, bietet geräumige 2- und 3-Schlafzimmer-Wohnungen und luxuriöse Penthäuser. Mit dem Schwerpunkt auf Komfort und Eleganz bietet diese geschlossene Wohnanlage eine ideale Umgebung für alle, die einen ruhigen Lebensstil suchen. Unübertroffene Annehmlichkeiten und Merkmale Jedes Apartment ist nach hohen Qualitätsstandards und mit modernster Technologie ausgestattet, die Energieeffizienz und Umweltverträglichkeit gewährleisten. Genießen Sie die großzügigen, sonnendurchfluteten Terrassen, die zum Entspannen im Freien einladen. Jede Wohnung verfügt über eine voll ausgestattete Küche, ein komplettes Badezimmer, eine private Tiefgarage und Abstellräume, die im Preis inbegriffen sind. Außen-Oase Die Anlage verfügt über einen Swimmingpool im Freien, der von üppigen Gärten umgeben ist und eine ruhige Atmosphäre schafft. Genießen Sie gemütliche Spaziergänge entlang der malerischen Wege, die mit Blick auf Haltbarkeit und Ästhetik angelegt wurden. Die Gärten sind mit einem intelligenten Bewässerungssystem und energiesparender LED-Beleuchtung ausgestattet, was die Schönheit der Anlage erhöht und gleichzeitig die Nachhaltigkeit fördert. Beste Lage Die Anlage befindet sich in Estepona und bietet einen bequemen Zugang zu verschiedenen interessanten Orten. Sie sind nur 1 km vom nächsten Strand, 10 km vom Estepona Golf Club und eine kurze 20-minütige Fahrt nach Marbella entfernt. Der nächstgelegene Flughafen, Málaga-Costa del Sol, ist nur 70 km entfernt, so dass Sie mühelos reisen können. Lokale Einkaufszentren und Restaurants befinden sich in unmittelbarer Nähe und bieten alle notwendigen Annehmlichkeiten. Sicherheit und Schutz Sicherheit wird in dieser luxuriösen Wohnanlage großgeschrieben. Automatische Tore für Fahrzeuge und Fußgänger sorgen dafür, dass sich die Bewohner in dieser vollständig ummauerten Anlage sicher fühlen können. Ein einzigartiger Lebensstil erwartet Sie Erleben Sie einen einzigartigen Lebensstil voller Komfort und Raffinesse in Estepona. Ob Sie nun ein gemütliches Familienhaus oder einen eleganten Rückzugsort suchen, diese moderne Wohnanlage ist der perfekte Ort, um bleibende Erinnerungen zu schaffen. Verpassen Sie nicht die Gelegenheit, diese exquisite Immobilie zu Ihrem neuen Zuhause zu machen.