Zunächst einmal, vielen Dank für Ihre Kontaktaufnahme.
Wir haben Ihre Anfrage bezüglich des Eigentumsverweises erhalten:GE2-68466. Einer unserer Mitarbeiter wird sich so schnell wie möglich mit Ihnen in Verbindung setzen.
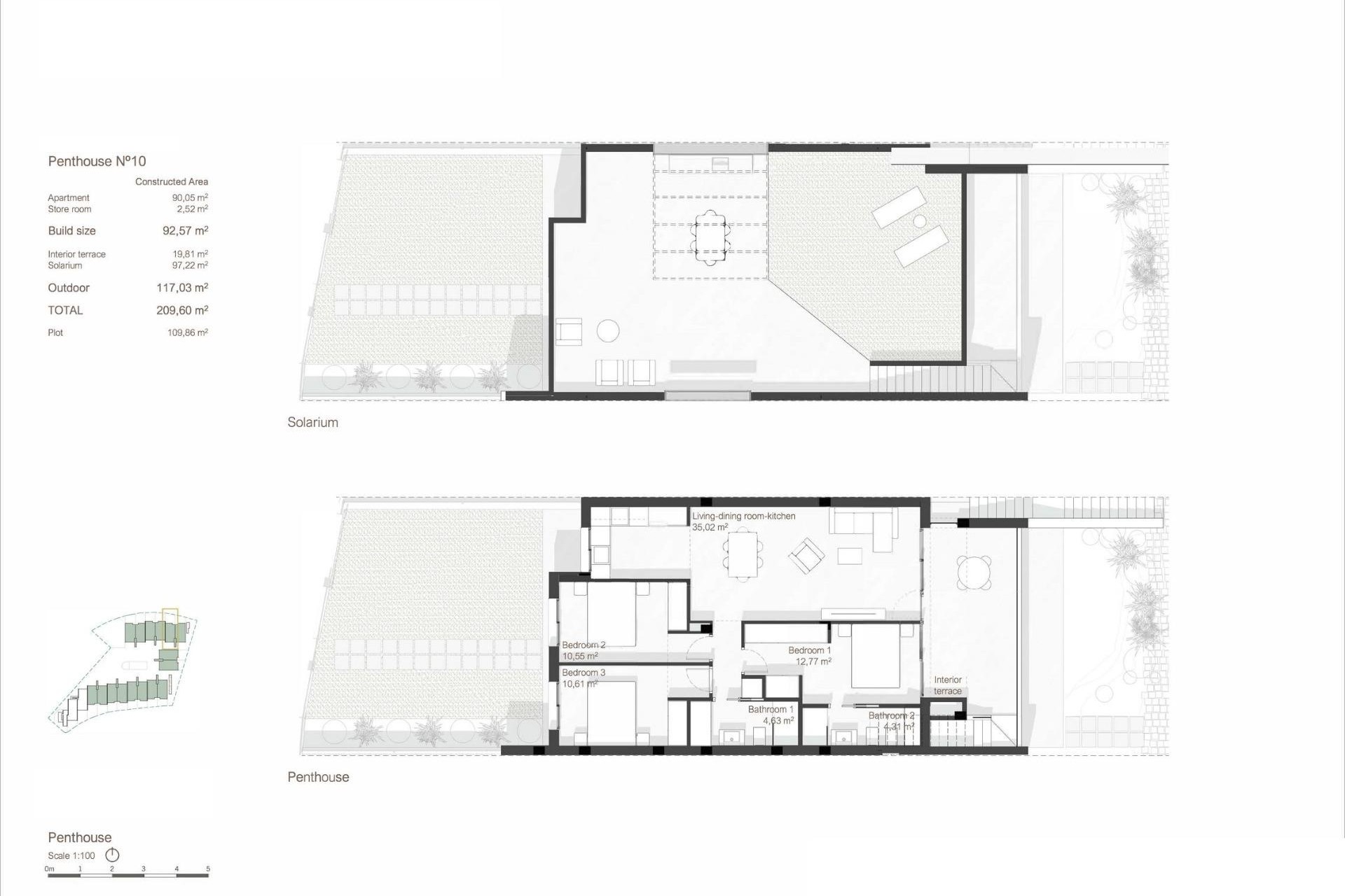
NEU GEBAUTE BUNGALOWS IN RODA GOLF Die neue Wohnanlage befindet sich auf einem nach Süden ausgerichteten Grundstück im renommierten Roda Golf & Beach Resort, das an den Golfplatz mit seinen gepflegten Fairways und Seen grenzt. Dieser wunderschöne Komplex besteht aus 37 geräumigen Häusern, die einen herrlichen Pool und Gemeinschaftsgärten umgeben. Diese moderne Wohnanlage bietet eine Reihe von Immobilientypen, Aussichten und Ausrichtungen, je nach Ihren Bedürfnissen. Alle Bungalow-Wohnungen verfügen über 3 Doppelschlafzimmer, 2 Bäder, ein helles und geräumiges offenes Wohn-Esszimmer mit amerikanischer Küche und einen fantastischen Außenbereich. Alle Bungalows verfügen über einen Parkplatz abseits der Straße und einen privaten Abstellraum. Die 18 Bungalows im Erdgeschoss verfügen über eine Innenterrasse und einen Garten, die zu den Gemeinschaftsgärten und dem Poolbereich führen, sowie über eine große, eingezäunte Terrasse und einen Garten auf der Rückseite. Die 18 Penthäuser verfügen über einen vorderen Balkon vor dem Wohnzimmer sowie über eine fantastische, 90 m2 große private Dachterrasse mit Sommerküche. Die Wohnanlage wurde so konzipiert, dass Raum und Licht optimal genutzt werden. Dieses exklusive Angebot ist eine echte Oase an der spanischen Costa Calida, hervorragend gebaut und mit einer Vielzahl von Extras ausgestattet. Das Herzstück der Anlage ist ein herrlicher Gemeinschaftspool, der von mediterraner Vegetation umgeben ist. Dank seiner Südausrichtung genießt er den ganzen Tag über die Sonne und ist der perfekte Ort, um zu schwimmen, zu entspannen und die Sonne Murcias aufzusaugen. Die Wohnungen im Erdgeschoss verfügen nicht nur über einen fantastischen Innenraum, sondern auch über eine schöne vordere Terrasse und einen zusätzlichen privaten Garten, der in das Innere der Wohnanlage mit ihren herrlichen Gemeinschaftsgärten und dem Poolbereich führt. Darüber hinaus bieten sie eine hintere Terrasse und einen eingezäunten Garten für maximale Privatsphäre, mit einem Tor, das zum Außenbereich der Urbanisation führt. Die doppelte Ausrichtung sorgt dafür, dass die Häuser den ganzen Tag über Sonne und Schatten genießen. Ein wunderschön gepflegter, von Dave Thomas entworfener 18-Loch-Platz mit Seen, strategisch platzierten Bunkern, hügeligen Grüns und üppiger mediterraner Vegetation. Ein privates Resort mit 24-Stunden-Sicherheitsdienst, eigenem Taxistand, einem beeindruckenden Clubhaus mit A-la-carte-Restaurant, Fitnessraum mit Seeblick und Sportbereich. Und das alles nur einen Spaziergang oder eine Radtour entfernt von den Stränden und dem ruhigen Wasser der Binnenlagune Mar Menor. Diese Wohnanlage hat eine fantastische Auswahl an goldenen Sandstränden vor der Haustür und bietet eine breite Palette an Wassersportmöglichkeiten. Genießen Sie sowohl das Mar Menor als auch das Mittelmeer von diesem Paradies an der Küste Murcias aus.