Zunächst einmal, vielen Dank für Ihre Kontaktaufnahme.
Wir haben Ihre Anfrage bezüglich des Eigentumsverweises erhalten:GE2-63109. Einer unserer Mitarbeiter wird sich so schnell wie möglich mit Ihnen in Verbindung setzen.
Email info@gold-estates.be
Büro in Belgien: Moeistraat 20G, 9830 St-Martens-Latem
Büro in Spanien: Av. Marina Baixa 11, 03570 La Villa Joyosa, Alicante
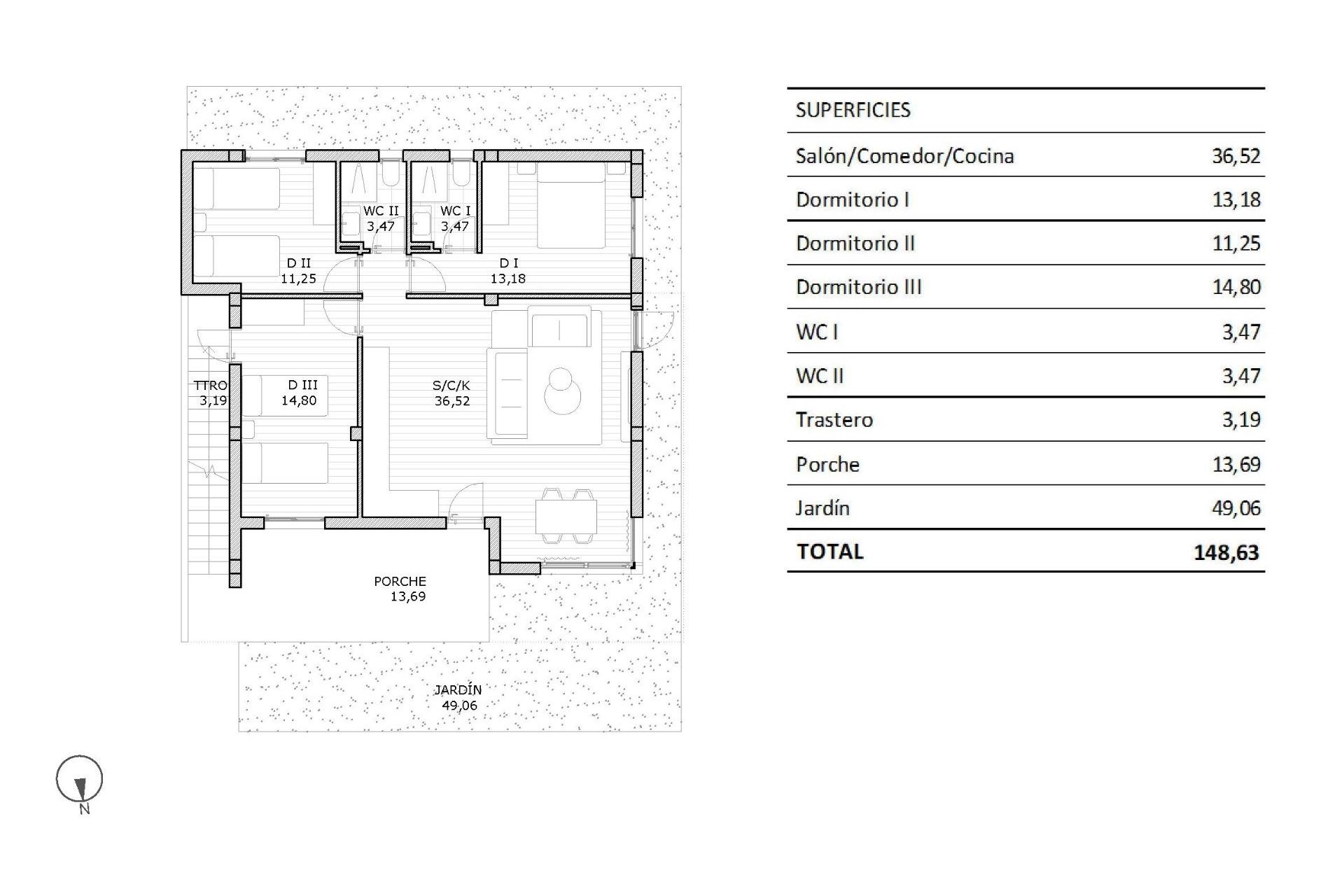
NEU GEBAUTE BUNGALOWWOHNUNGEN IN SAN MIGUEL DE SALINAS Neubau Wohnanlage von Bungalows in San Miguel del Salinas. Die Wohnanlage besteht aus Bungalow-Wohnungen mit 2 und 3 Schlafzimmern, im Erdgeschoss mit privatem Garten oder im Obergeschoss mit einer privaten Sonnenterrasse. Ein exklusiver Wohnkomplex, der qualitativ hochwertige Wohnungen mit hervorragender Wärme- und Schalldämmung, erstklassigen Oberflächen und kompletten Einrichtungen bietet. Zu den Einrichtungen gehören zwei Swimmingpools, große Gartenanlagen und gut gestaltete Gemeinschaftsbereiche, die eine komfortable und sichere Umgebung garantieren. Jede Wohnung verfügt über moderne Einbauküchen, Porzellanböden und effiziente Sanitär- und Klimaanlagen. Die Wohnanlage befindet sich in San Miguel de Salinas in der Nähe der Golfplätze Las Colinas und Campoamor, der Einkaufszentren, der Lagunen von Torrevieja und La Mata sowie der Sandstrände von Orihuela Costa. San Miguel de Salinas ist eine Gemeinde in der Valencianischen Gemeinschaft, Spanien. Sie liegt im Süden der Provinz Alicante, in der Region Vega Baja del Segura in der Nähe der Region Murcia. Der Flughafen von Alicante ist 35 Autominuten entfernt und der Flughafen von Murcia Corvera ist etwa 1 Stunde entfernt.
Diese hier angegebenen Informationen unterliegen Fehlern und sind nicht Bestandteil eines Vertrages. Das Angebot kann ohne vorherige Ankündigung geändert oder zurückgezogen werden. Die Preise beinhalten keine Einkaufskosten.
Ihr Traumleben in Spanien beginnt mit unserem praktischen Reiseführer! In 4 Schritten ermöglichen wir Ihnen den Start unter der spanischen Sonne.
E-Mail info@gold-estates.be
Büro in Belgien: Moeistraat 20G, 9830 St-Martens-Latem
Büro in Spanien: Av. Marina Baixa 11, 03570 La Villa Joyosa, Alicante
© 2026 Gold Estates · Rechtlicher Hinweis · Privatsphäre · Cookies · BIV Legale Informatie · Web-Karte
Entwurf & CRM: Mediaelx
Finden Sie Ihr Traumhaus, indem Sie Ihre Immobilien speichern und Benachrichtigungen zu neuen verfügbaren Immobilien erhalten
Neuen Benutzer registrierenZunächst einmal, vielen Dank für Ihre Kontaktaufnahme.
Wir haben Ihre Anfrage bezüglich des Eigentumsverweises erhalten:GE2-63109. Einer unserer Mitarbeiter wird sich so schnell wie möglich mit Ihnen in Verbindung setzen.
Zunächst einmal, vielen Dank für Ihre Kontaktaufnahme.
Wir haben eine Anfrage für einen Bericht erhalten, wenn Sie den Preis der Immobilie mit der Referenz senken: GE2-63109
In der Zwischenzeit sehen Sie sich bitte diese Auswahl ähnlicher Objekte an, die für Sie von Interesse sein könnten: