Zunächst einmal, vielen Dank für Ihre Kontaktaufnahme.
Wir haben Ihre Anfrage bezüglich des Eigentumsverweises erhalten:GE2-99644. Einer unserer Mitarbeiter wird sich so schnell wie möglich mit Ihnen in Verbindung setzen.
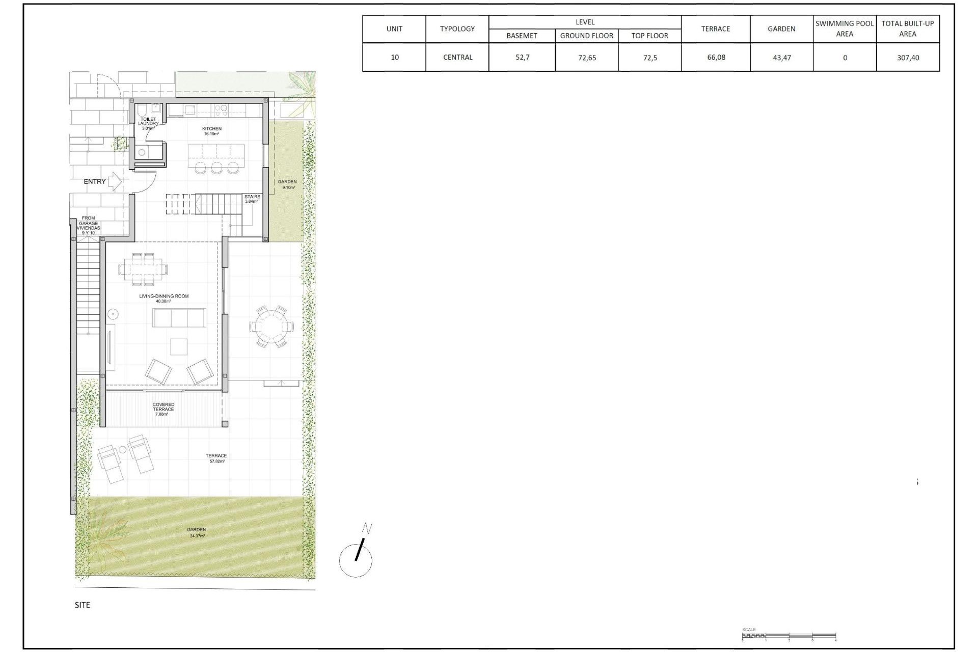
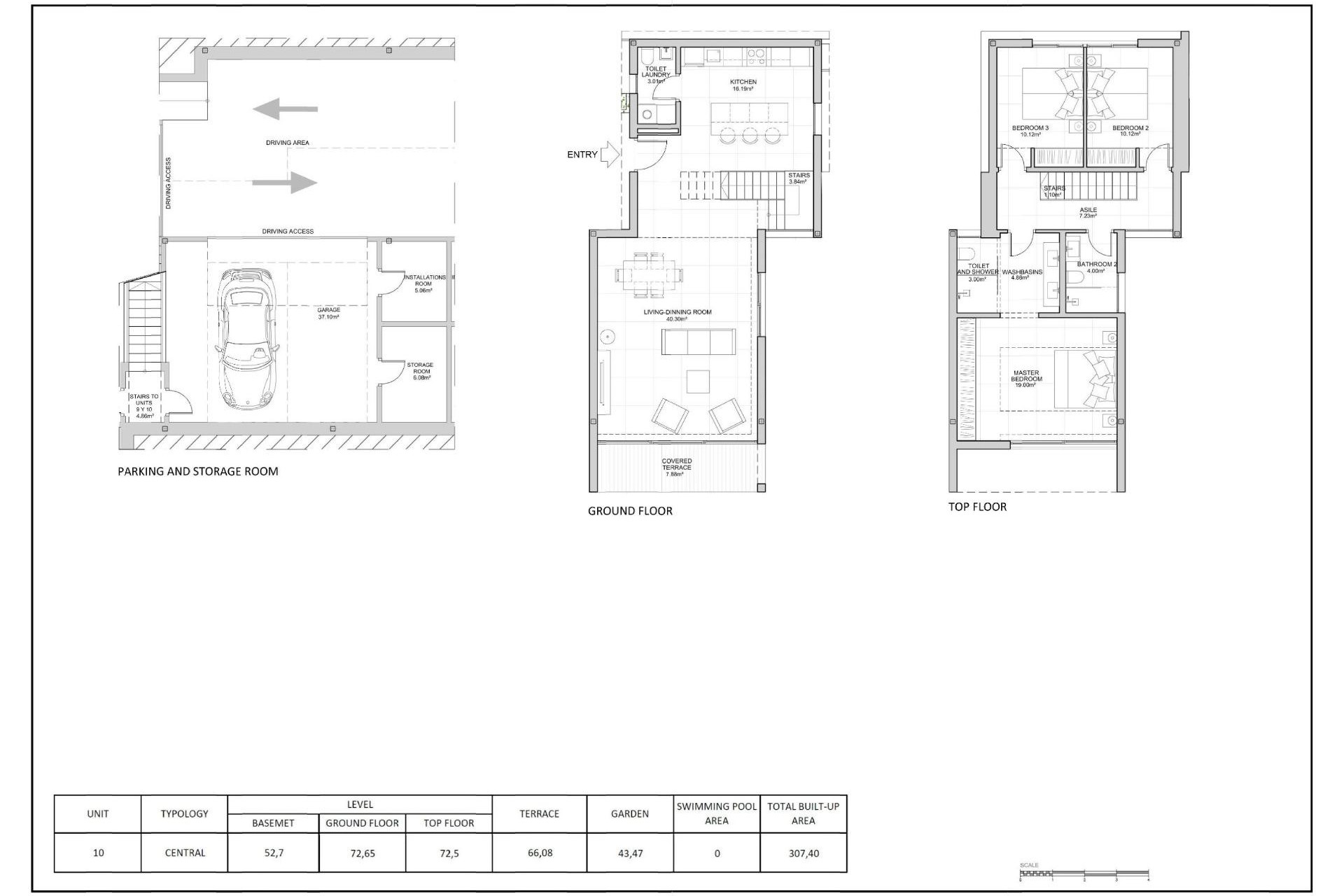
NEU GEBAUTE VILLEN MIT MEERBLICK IN LA CALA DE MIJAS Ausgehend von der traditionellen Silhouette eines Hauses, dem ursprünglichen Fünfeck, hat das Designteam diese geometrischen Linien weiterentwickelt, um eine Symbiose mit der vorhandenen Vegetation zu schaffen und einen ständigen Dialog mit der Natur, ihrer Energie und ihrer Bewegung herzustellen. So bricht die zentrale Achse, die das traditionelle Schrägdach des Hauses gestaltet, und bewegt eine ihrer Kanten, die im Rhythmus der Windbrise tanzt. Auf diese Weise unterscheidet sich jede Villa und schafft eine einzigartige Skyline an der Costa del Sol. Unter der Philosophie "Weniger ist mehr" vermittelt das Design die Suche nach reinen, eleganten und sanften Linien. Materialien wie Naturholz wurden in ausgewählten Bereichen der Villenverkleidung verwendet, was einen ständigen Dialog mit der umgebenden Naturlandschaft ermöglicht und dem Projekt zweifellos die Einzigartigkeit, Eleganz und Reinheit verleiht, die die New Build Villen auszeichnet. Die Treppe, die wie eine Skulptur entworfen und gebaut wurde, erhebt den Wohnbereich zu einer exklusiven Kunstgalerie. Die 3- und 4-Schlafzimmer-Villen wurden so konzipiert, dass die Räume und die Beziehungen zwischen den verschiedenen Bereichen optimiert werden. Nur wenige Autominuten entfernt liegt das charmante Städtchen Mijas mit seiner sorgfältig erhaltenen Altstadt und den malerischen Gassen. Sie können in Marbella oder Fuengirola einkaufen oder das Nachtleben in La Cala de Mijas oder Puerto Banús genießen. Die Villa befindet sich in einer ruhigen Gegend, nur wenige Autominuten von den fabelhaften Stränden der Costa del Sol, Chaparral Golf und nur 20 Minuten von Marbella und 30 Minuten vom Flughafen Málaga entfernt. Der Chaparral Golf Club ist ein 18-Loch "Parkland Forest" Platz, umgeben von einem mediterranen Wald. Das geschützte Gebiet unterstreicht die typische Schönheit der Region, in der die Berge auf das Meer treffen. Der Chaparral Golf Club befindet sich in einer privilegierten Lage im Herzen von Andalusien, im Mijas Golf Valley.