Zunächst einmal, vielen Dank für Ihre Kontaktaufnahme.
Wir haben Ihre Anfrage bezüglich des Eigentumsverweises erhalten:GE2-24636. Einer unserer Mitarbeiter wird sich so schnell wie möglich mit Ihnen in Verbindung setzen.
Email info@gold-estates.be
Büro in Belgien: Moeistraat 22A, 983 St-Martens-Latem
Büro in Spanien: Calle Valentia, 7, 03570 La Vila Joiosa, Alicante
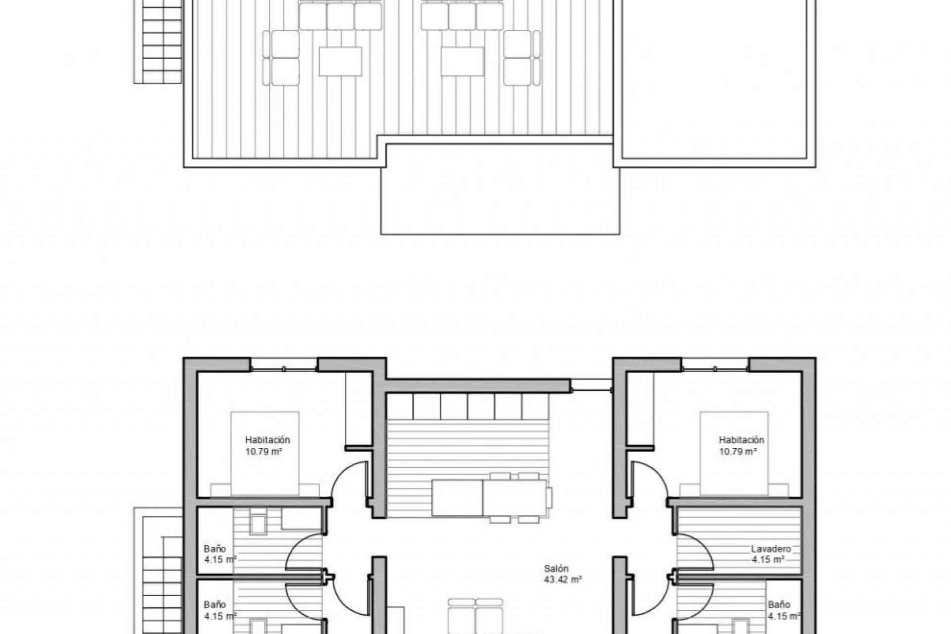
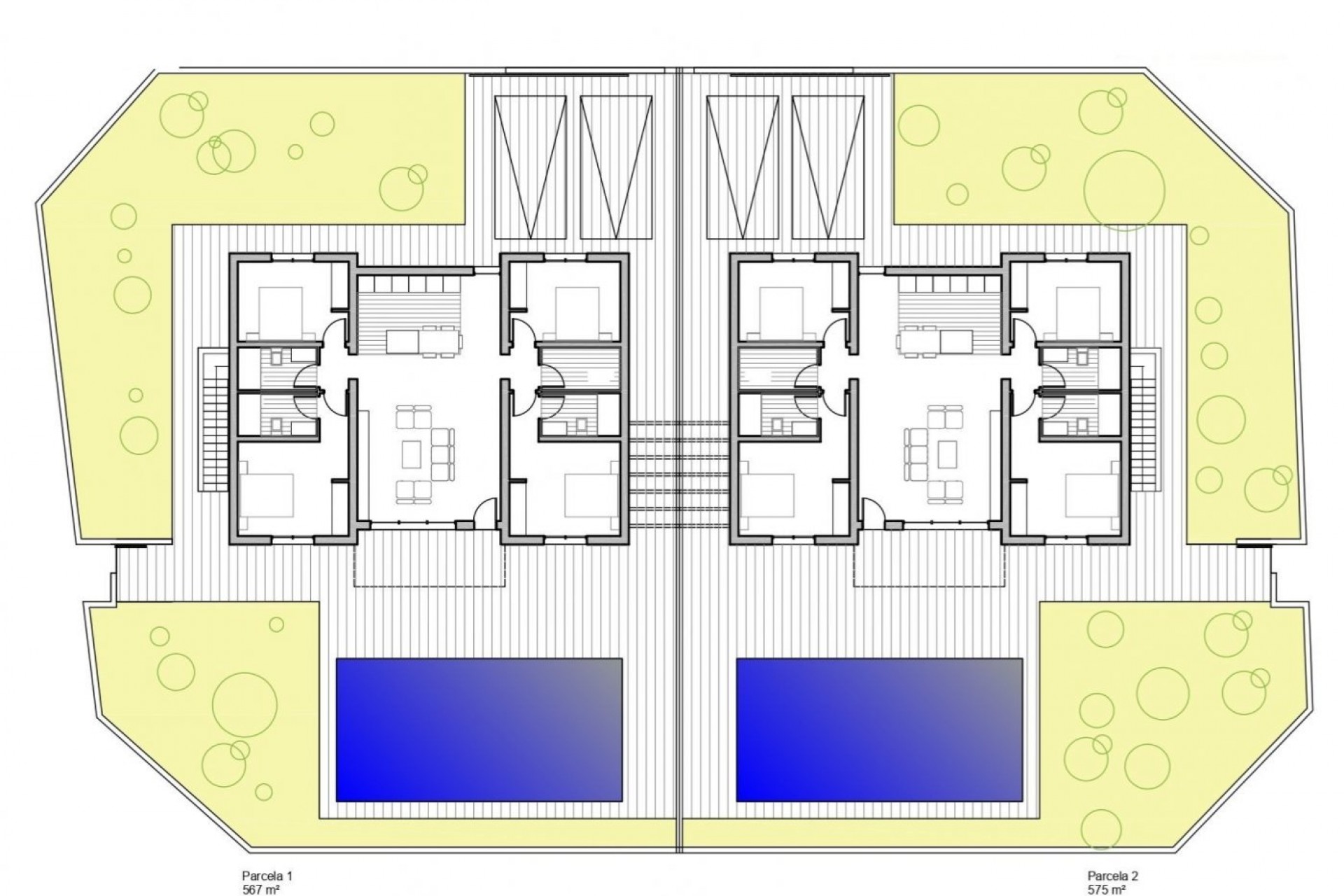
NEU GEBAUTE VILLEN IN ROLDAN Luxuriöse 2 einstöckige Neubauvillen in Roldan, Murcia. Villen bauen auf den Grundstücken von fast 600 M2 jedes, mit privatem Pool von 30 M2, Gartenbereich und große Sonnenterrasse auf dem Dach. Jedes Haus verfügt über 4 Schlafzimmer und 3 Bäder und wurde in einem zeitgenössischen Stil und einem offenen Konzept, bestehend aus einer voll ausgestatteten Küche und einem Wohn-Esszimmer, entworfen. Die Wohnanlage befindet sich in Roldán (Murcia), in einer bewachten und gesicherten Anlage, die in einem Teilplan von 300.000 m2 enthalten ist, umgeben von allen Dienstleistungen, Sportanlagen und in der Nähe mehrerer Golfplätze. Das Anwesen wird den höchsten Standards entsprechen und wird mit ausgestattet werden: Privates Schwimmbad von 30 M2 mit Solardusche. Vorinstallation für beheizte Pumpe. Küche komplett möbliert und ausgestattet mit erhöhtem Backofen, eingebauter Mikrowelle, integriertem Geschirrspüler, Kühlschrank und Dunstabzugshaube. Inselbereich in der Küche. LED-Beleuchtung: im Inneren des Hauses (Esszimmer, Küche, Flure und Bäder), sowie im Außenbereich. Gefütterte Kleiderschränke mit Schubladen. Voll ausgestattete Bäder mit Hängewaschtisch und Hängetoilette, Spiegel mit Beleuchtung, Dusche mit "Regeneffekt" und Duschabtrennung. Vorinstallation für eine Kanal-Klimaanlage. Sommerküche mit Schiebetüren im Solarium. Vorinstallation für Waschmaschine und Kühlschrankanschluss. Sonnenkollektor. Parkplatz auf dem Grundstück. Roldan selbst ist eine traditionelle Stadt mit allen lokalen Annehmlichkeiten, die Sie benötigen, einschließlich Supermärkte, Restaurants, Bars, Gesundheitsklinik, Apotheke, Polizeistation, Tankstelle, Mechaniker, Zahnärzte, Ärzte und mehr. Die nahegelegenen Golfplätze von La Torre und Terrazas sind leicht erreichbar, der Flughafen Corvera ist 15 Minuten entfernt und die Strände des Mar Menor sind nur 20 Minuten entfernt.
Diese hier angegebenen Informationen unterliegen Fehlern und sind nicht Bestandteil eines Vertrages. Das Angebot kann ohne vorherige Ankündigung geändert oder zurückgezogen werden. Die Preise beinhalten keine Einkaufskosten.
Ihr Traumleben in Spanien beginnt mit unserem praktischen Reiseführer! In 4 Schritten ermöglichen wir Ihnen den Start unter der spanischen Sonne.
E-Mail info@gold-estates.be
Büro in Belgien: Moeistraat 22A, 983 St-Martens-Latem
Büro in Spanien: Calle Valentia, 7, 03570 La Vila Joiosa, Alicante
© 2026 Gold Estates · Rechtlicher Hinweis · Privatsphäre · Cookies · BIV Legale Informatie · Web-Karte
Entwurf & CRM: Mediaelx
Finden Sie Ihr Traumhaus, indem Sie Ihre Immobilien speichern und Benachrichtigungen zu neuen verfügbaren Immobilien erhalten
Neuen Benutzer registrierenZunächst einmal, vielen Dank für Ihre Kontaktaufnahme.
Wir haben Ihre Anfrage bezüglich des Eigentumsverweises erhalten:GE2-24636. Einer unserer Mitarbeiter wird sich so schnell wie möglich mit Ihnen in Verbindung setzen.
Zunächst einmal, vielen Dank für Ihre Kontaktaufnahme.
Wir haben eine Anfrage für einen Bericht erhalten, wenn Sie den Preis der Immobilie mit der Referenz senken: GE2-24636
In der Zwischenzeit sehen Sie sich bitte diese Auswahl ähnlicher Objekte an, die für Sie von Interesse sein könnten: