Zunächst einmal, vielen Dank für Ihre Kontaktaufnahme.
Wir haben Ihre Anfrage bezüglich des Eigentumsverweises erhalten:GE2-79857. Einer unserer Mitarbeiter wird sich so schnell wie möglich mit Ihnen in Verbindung setzen.
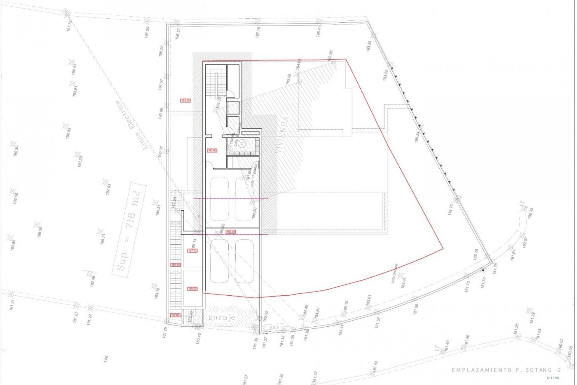
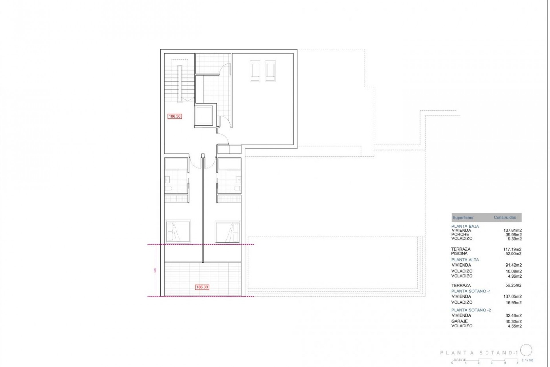
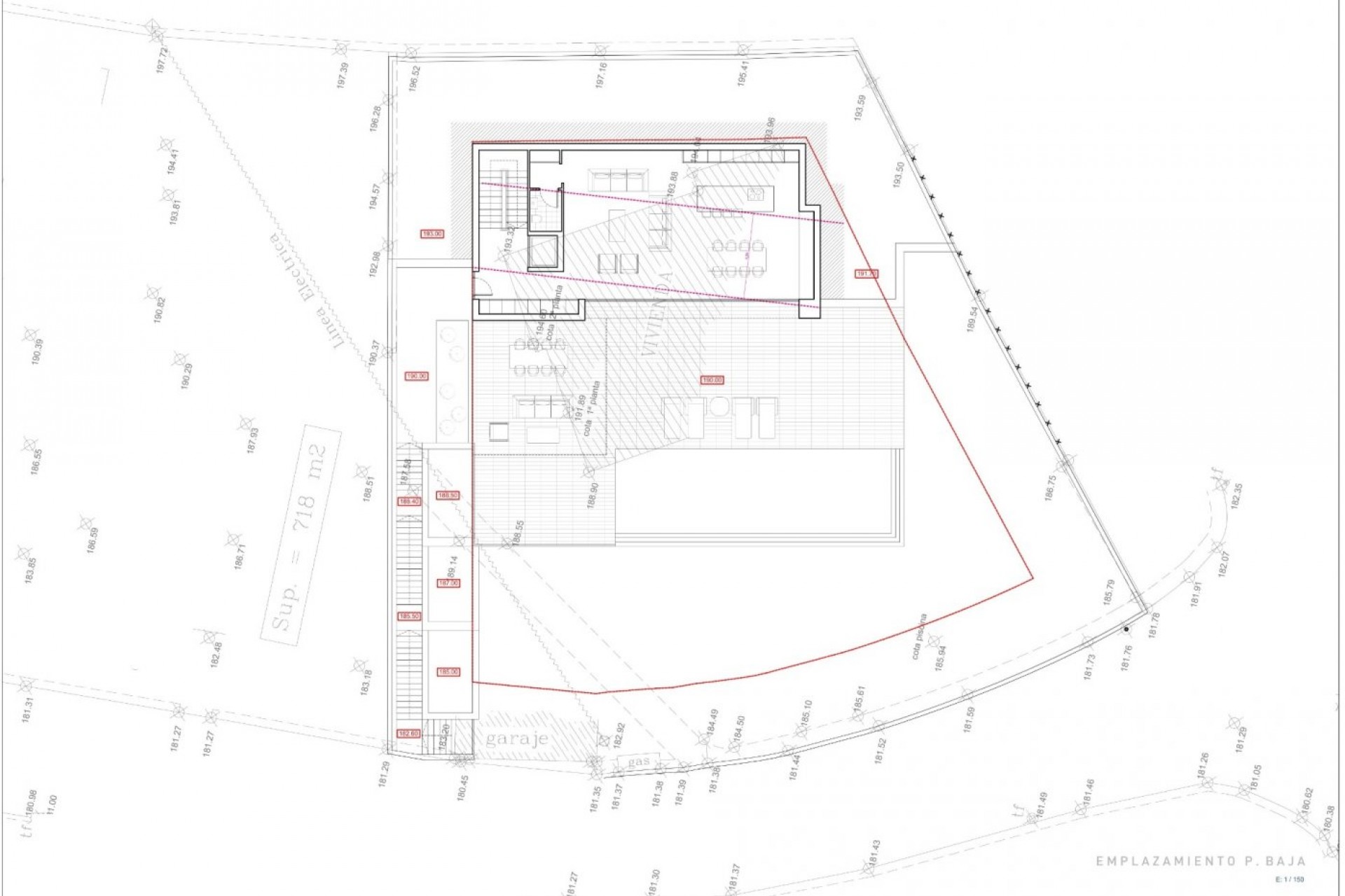
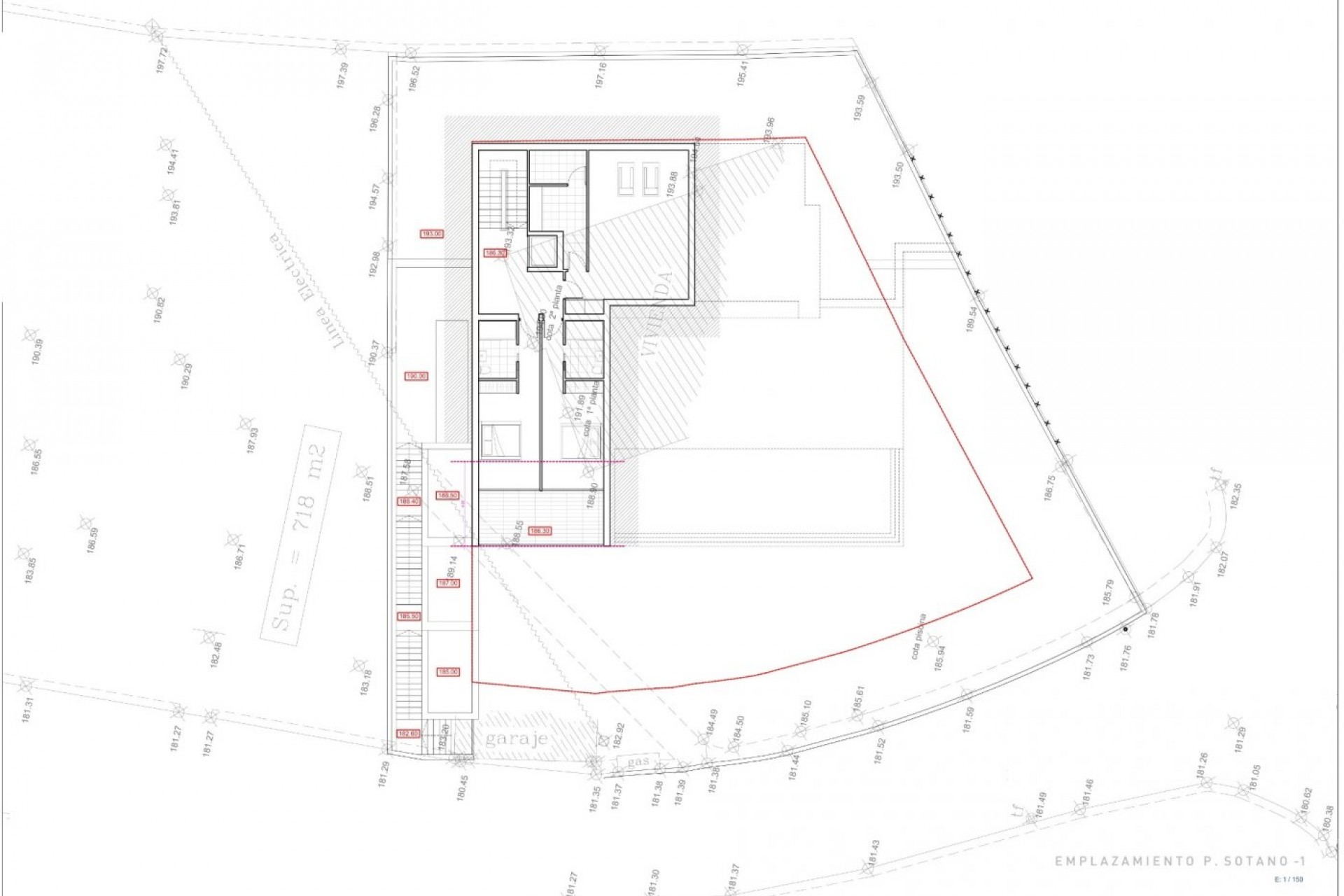
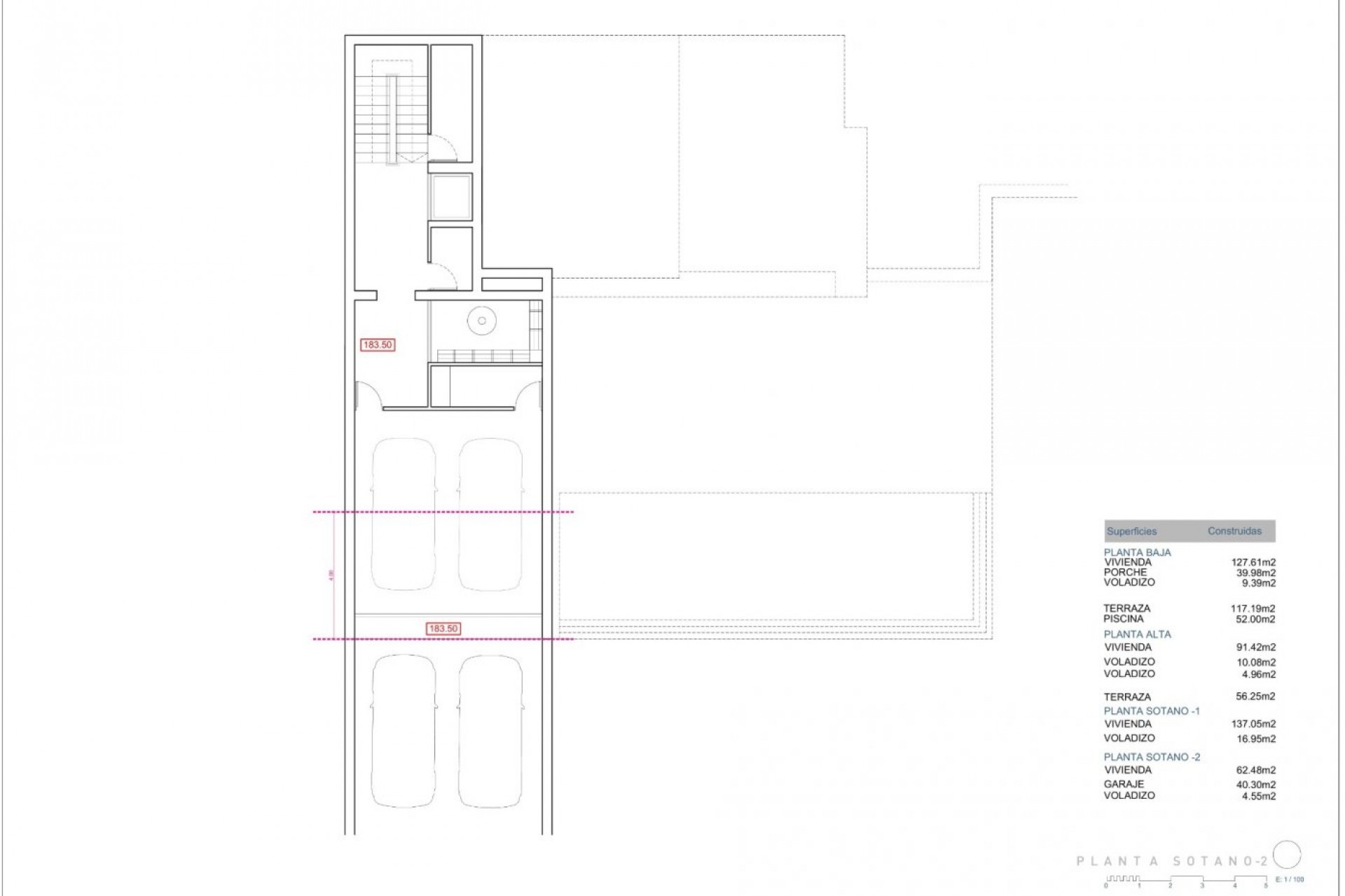
NEU GEBAUTE LUXUSVILLA IN BENISSA Neubau-Luxusvilla in Benissa mit BLICK AUF DAS MEER und den Peñón de Ifach. Diese Villa mit Sichtbetonverkleidung hat 4 Etagen, die mit einem Aufzug und einer Innentreppe verbunden sind. Im Erdgeschoss befindet sich ein großer offener Wohn-Ess-Küchenbereich und ein Gäste-WC. Die Küche ist voll ausgestattet und verfügt über eine Kochinsel. Schiebetüren in Deckenhöhe geben direkten Zugang zu einer großzügigen Terrasse und dem Pool. Im Obergeschoss befinden sich zwei Schlafzimmer mit en-suite Badezimmern und eine Terrasse. Das Anwesen verfügt über 2 Untergeschosse. Im Untergeschoss Nummer 1 befinden sich zwei weitere Schlafzimmer mit jeweils eigenem Bad und eine Waschküche. Im Untergeschoss Nummer 2 befinden sich der Fitnessraum, der Keller und eine Garage mit Platz für 4 Autos. Das Haus hat eine Klimaanlage (mit Kanälen) und eine Zentralheizung mit Wärmepumpe. Es verfügt über eine automatische Eingangstür mit einem separaten Fußgängereingang und einer Gegensprechanlage. Auf der gleichen Ebene wie das Haupthaus befindet sich das Schwimmbad. Das Haus verfügt über Außenschreinerarbeiten, automatische Rollläden und Moskitonetze in den Schlafzimmern, Einbauschränke mit Modulen und eine Basisalarmanlage. Benissa liegt am nördlichen Ende der Costa Blanca, direkt an der Autobahn A-7; die Fahrt zum und vom Flughafen Alicante dauert etwas mehr als eine Stunde. Die Stadt ist klein, aber bezaubernd mit ihrer mittelalterlichen Architektur und den charmanten Plätzen. Obwohl nur 5 km Luftlinie vom Meer entfernt, sind die nächstgelegenen Strände auf der Straße etwa 11 km und die Küstenstädte Calpe (im Süden) und Moraira (im Nordosten) etwa 12 km entfernt. Der Blick auf das Mittelmeer, das Wetter, die wilde Natur, die Qualität des Lichts, die Architektur der Stadt, Benissa wird Sie verführen. Der Flughafen von Alicante liegt 1 Stunde entfernt.