Zunächst einmal, vielen Dank für Ihre Kontaktaufnahme.
Wir haben Ihre Anfrage bezüglich des Eigentumsverweises erhalten:GE2-81849. Einer unserer Mitarbeiter wird sich so schnell wie möglich mit Ihnen in Verbindung setzen.
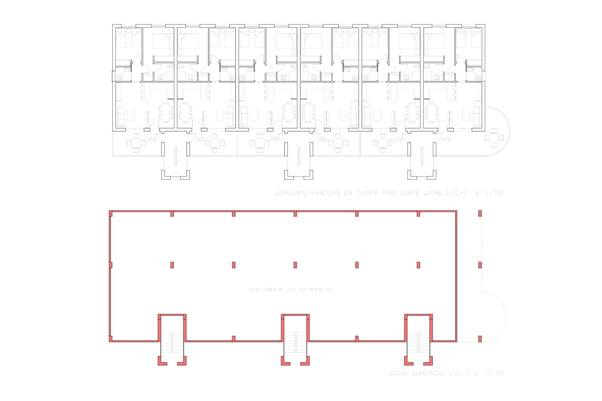
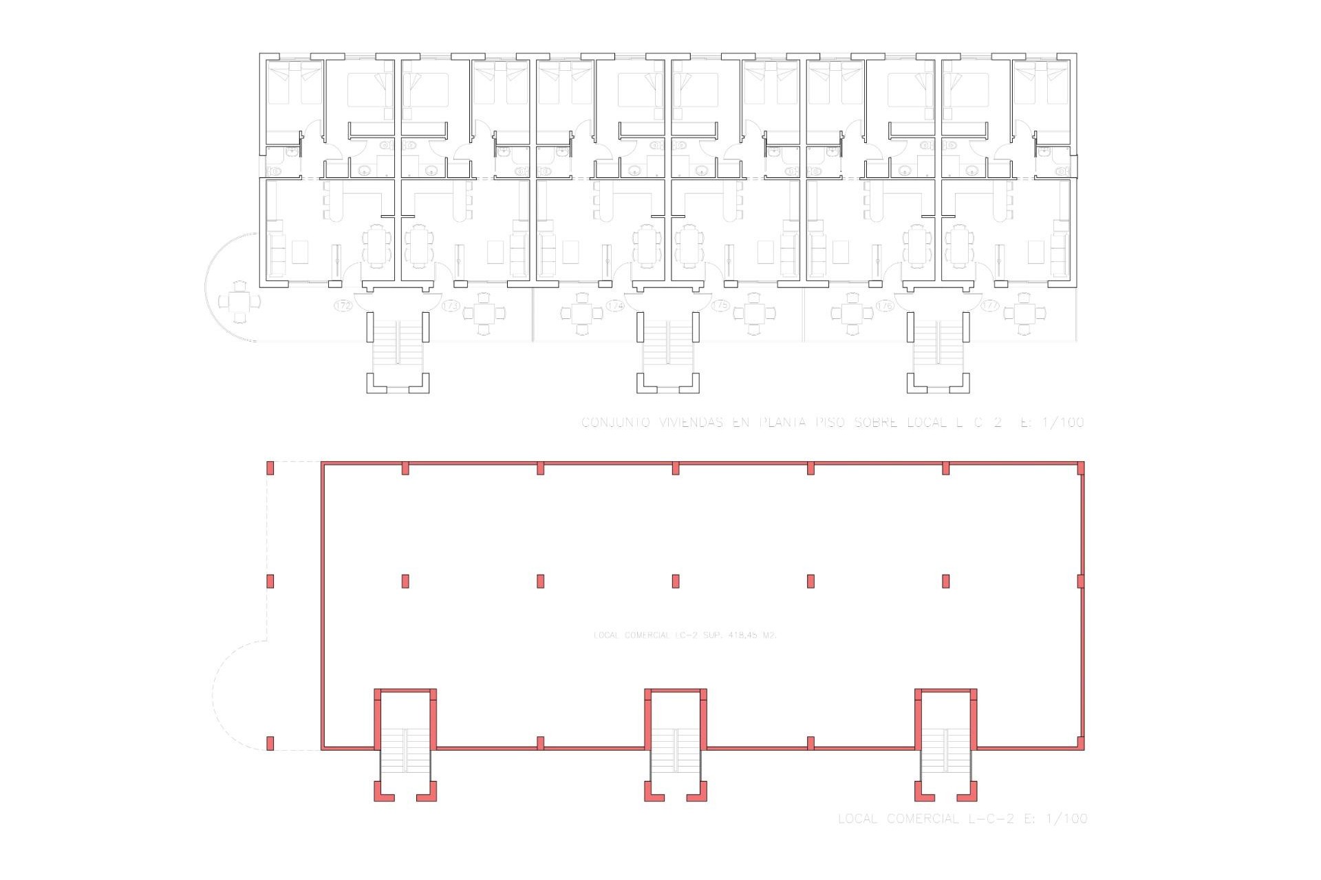
NEUBAU BUNGALOWS IN FUENTE ALAMO, MURCIA Neubau von Bungalowwohnungen in Fuente Álamo, Murcia. Bungalows im Erdgeschoss mit privatem Garten und Bungalows im Dachgeschoss mit privater Sonnenterrasse. Dieser Standort bietet eine außergewöhnliche natürliche Umgebung, weit weg von der Hektik der Großstädte und dem touristischen Druck der Küste. Darüber hinaus sind wir bestrebt, unter dem Gesichtspunkt der nachhaltigen Entwicklung zu arbeiten, die Auswirkungen auf die Umwelt zu minimieren und die Integration in die lokale Gemeinschaft zu maximieren. Hier werden Ihre Träume von einem friedlichen und nachhaltigen Lebensstil wahr. Stellen Sie sich vor, Sie wachen jeden Morgen in einer atemberaubenden natürlichen Umgebung auf, umgeben von ruhigen Landschaften und der einzigartigen Schönheit der Landschaft Murcias. Bei Neubauprojekten stehen Energieeffizienz, die Verwendung umweltfreundlicher Materialien und die harmonische Integration in die ländliche Umgebung im Vordergrund. Vom Grundstücksdesign bis zur Erschließungsplanung, um unseren CO2-Fußabdruck zu reduzieren und verantwortungsvolle Praktiken in allen Bereichen zu fördern. Bei der Entwicklung wird der Energieeffizienz und der Integration in die Gemeinschaft Vorrang eingeräumt, um qualitativ hochwertige Wohnungen in Harmonie mit der natürlichen Umgebung zu schaffen. Pre-Installation von Kanal-Klimaanlage, warm / kalt, die Installation von Maschinen in den Optionen. Video-Gegensprechanlage. Farbig lackierte Sicherheitszugangstür mit Schloss und Vandalismusschutzbeschlägen. Schränke mit Kofferraum, innen gefüttert, weiß lackiert. Küchenmöbel nicht inbegriffen (optional): - Jede Art von Änderung durch den Kunden ist möglich. - Arbeitsplatte aus Stein. - Spüle aus Edelstahl, mit Mischbatterien von Roca oder ähnlichem. - Vitrokeramik-Kochfeld, Dunstabzugshaube und Elektrobackofen, Edelstahl. Balay oder ähnlich. Photovoltaische Solaranlage, mit Akkumulatortank. Vorinstallation einer kanalisierten Klimaanlage, warm/kalt, Installation von Maschinen in Optionen. Möglichkeit, Änderungen an der Immobilie vorzunehmen, vorbehaltlich einer von beiden Parteien genehmigten Bewertung. Fuente Álamo de Murcia ist eine Stadt und Gemeinde in der Region Murcia, Südspanien. Sie befindet sich 22 km nordwestlich von Cartagena und 35 km südwestlich von Murcia. Die Stadt liegt im Becken des Mar Menor, umgeben von den Bergen Algarrobo, Los Gómez, Los Victorias und dem Carrascoy. Das Wasser aus diesen Bergen fließt in die Rambla de Fuente Álamo und von dort in das Mar Menor. Fuente Álamo liegt 30 Minuten vom Flughafen Murcia - Corvera entfernt.