Zunächst einmal, vielen Dank für Ihre Kontaktaufnahme.
Wir haben Ihre Anfrage bezüglich des Eigentumsverweises erhalten:GE2-95370. Einer unserer Mitarbeiter wird sich so schnell wie möglich mit Ihnen in Verbindung setzen.
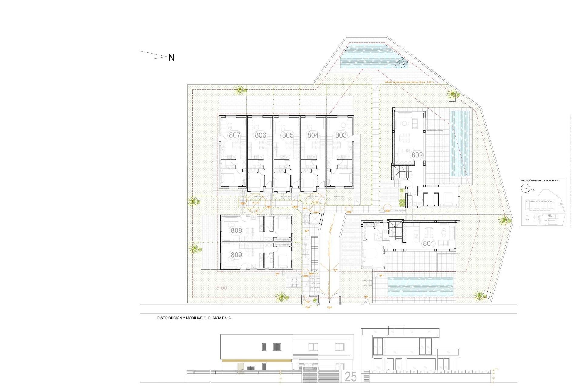
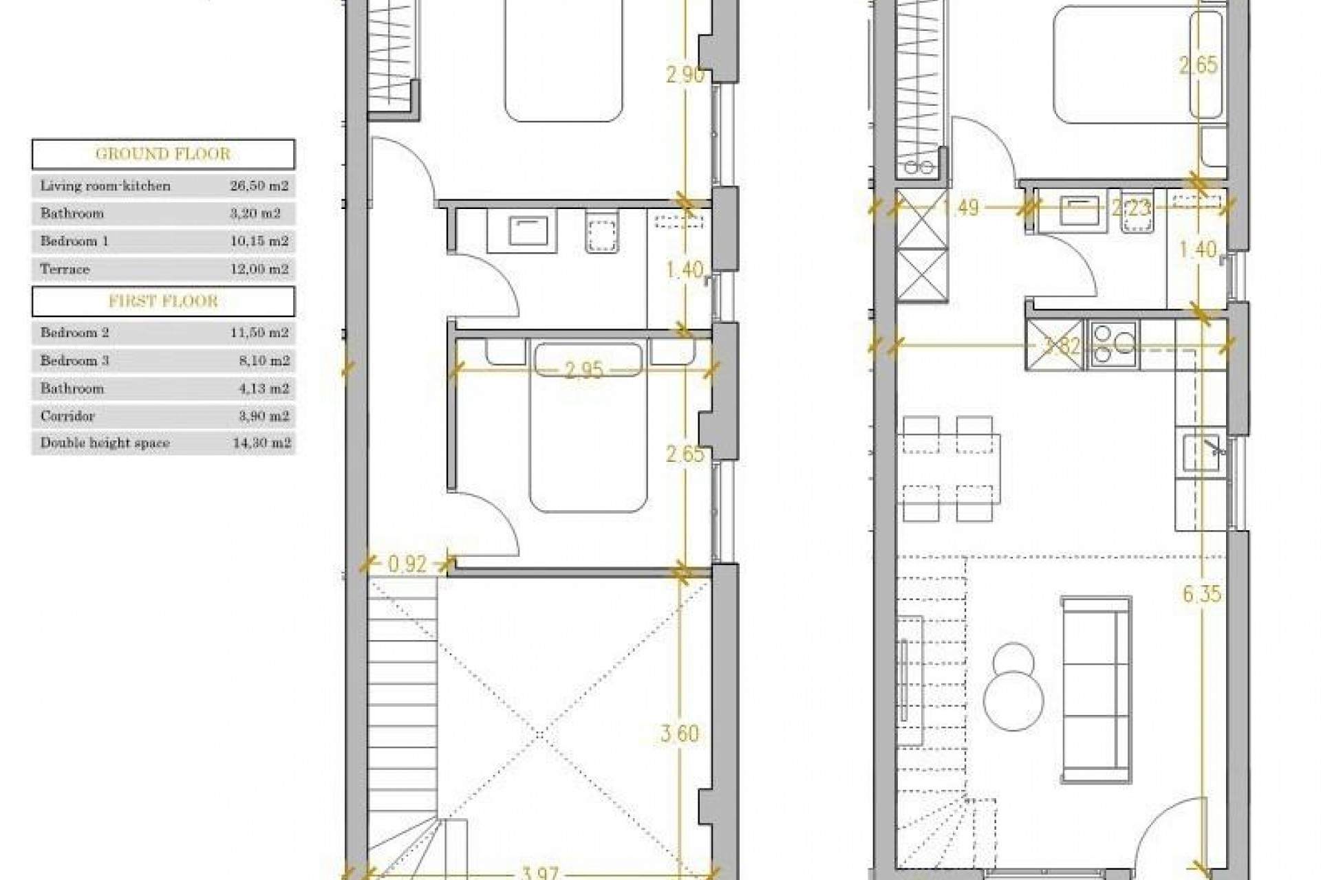
Exklusive Neubau-Wohnanlage in Orihuela Costa Privilegierte Lage im Herzen der Costa Blanca Diese moderne, geschlossene Wohnanlage befindet sich in Orihuela Costa, einer der begehrtesten Gegenden der Costa Blanca, nur 4 km von den Stränden von Orihuela Costa entfernt. Dank der hervorragenden Lage können Sie das ganze Jahr über die Sonne des Mittelmeers genießen und haben Zugang zu einem breiten Freizeit-, Golf- und Dienstleistungsangebot. In nur 5 Autominuten erreichen Sie den Golfplatz von Villamartin und das Einkaufszentrum La Zenia Boulevard, das größte in der Provinz Alicante, mit mehr als 150 Geschäften, Restaurants und Unterhaltungsbereichen. Modernes Design und exklusive Wohnungen Diese Wohnanlage bietet eine Auswahl an neu gebauten Häusern, die nach den höchsten Qualitäts- und Komfortstandards entworfen wurden: 7 Stadthäuser mit 2 und 3 Schlafzimmern und Zugang zu einem Gemeinschaftspool. 2 freistehende Villen mit 3 Schlafzimmern und 3 Bädern, jeweils mit privatem Swimmingpool. Optional: Tiefgaragenstellplätze und Abstellräume gegen Aufpreis. Exklusive Qualitäten und Merkmale Jede Immobilie wurde nach modernen und funktionalen Gesichtspunkten entworfen, wie zum Beispiel: Begrünte Außenbereiche mit Kunstrasen neben dem Swimmingpool. Aerothermische Heizung für mehr Energieeffizienz. Küche mit Quarz-Frühstücksbar, Sitzbereich und 50 cm Metallspüle. Treppe mit Handlauf aus Glas und Edelstahl. Voll ausgestattete Bäder mit Oberschränken, Spiegel und Duschwand. Vorinstallation für eine Kanal-Klimaanlage. Einbauschränke in jedem Schlafzimmer, mit Schiebetüren und Soft-Closing-System. Sicherheitseingangstür für den Seelenfrieden. Nähe zu interessanten Orten Strand von Punta Prima - 4 km. Villamartin Golfplatz - 5 km. Einkaufszentrum „La Zenia Boulevard“ - 5 km. Stadtzentrum Torrevieja - 10 km. Flughafen Alicante - 40 Minuten. Flughafen Murcia-Corvera - 1 Stunde. Erleben Sie den mediterranen Lebensstil Diese exklusive Wohnanlage ist ideal für diejenigen, die ein modernes Haus an der Costa Blanca suchen, mit Zugang zu Stränden, Golf und allen Annehmlichkeiten. Lassen Sie sich diese einmalige Gelegenheit nicht entgehen und kontaktieren Sie uns noch heute für weitere Informationen oder um einen Besichtigungstermin zu vereinbaren.