Zunächst einmal, vielen Dank für Ihre Kontaktaufnahme.
Wir haben Ihre Anfrage bezüglich des Eigentumsverweises erhalten:GE2-60822. Einer unserer Mitarbeiter wird sich so schnell wie möglich mit Ihnen in Verbindung setzen.
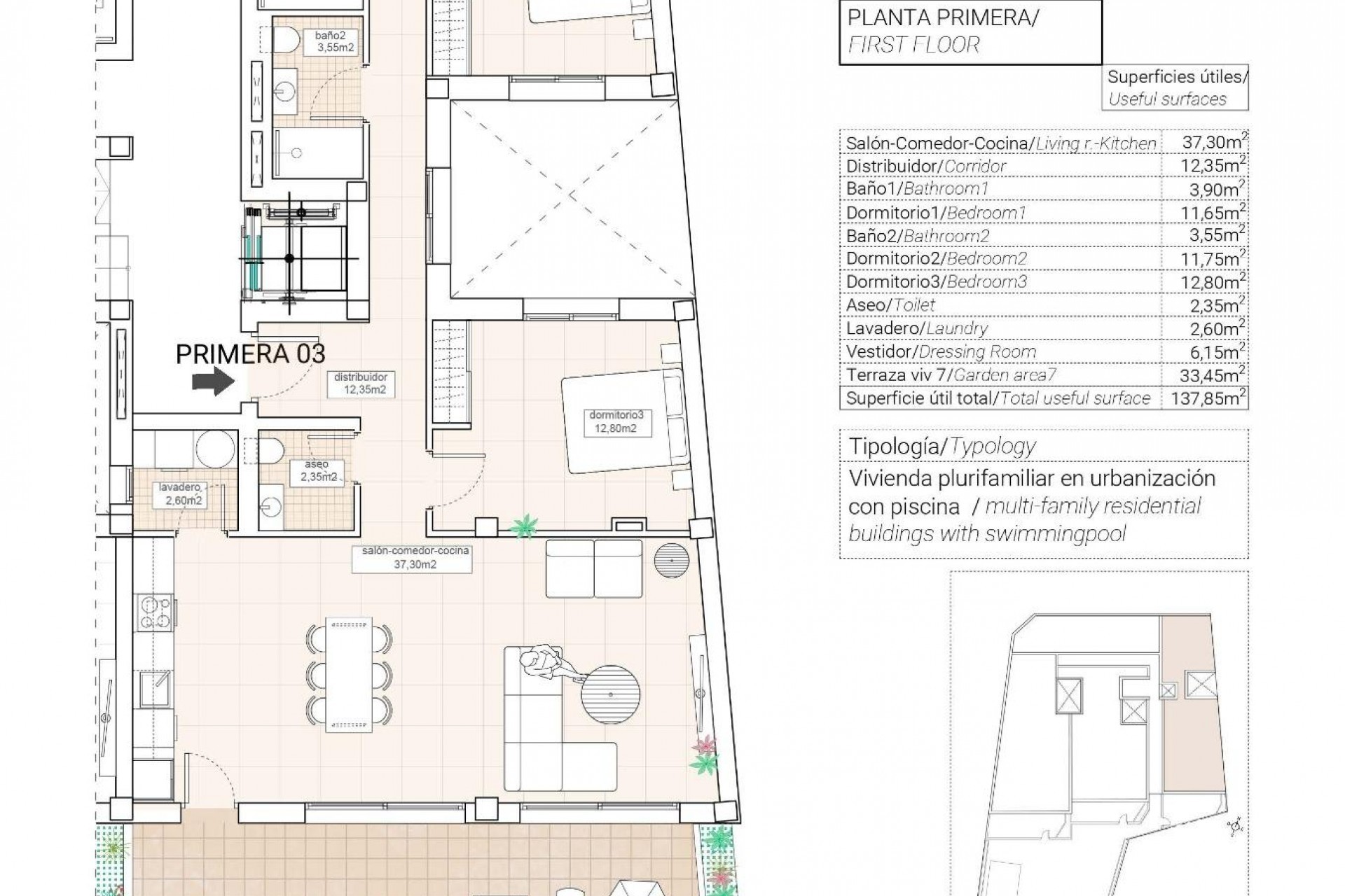
Exklusive Neubauwohnungen mit Blick auf die Weinberge in Hondón de las Nieves Moderne Wohnungen in einer einzigartigen natürlichen Umgebung Entdecken Sie diese neue Wohnanlage in Hondón de las Nieves, einem charmanten Dorf in einem wunderschönen Tal, das von Oliven- und Mandelhainen umgeben ist. Das Projekt bietet 15 exklusive Wohnungen mit 2 und 3 Schlafzimmern, die alle mit einem Höchstmaß an Komfort, Energieeffizienz und einem atemberaubenden Blick auf die Weinberge von Vinalopó ausgestattet sind. In Vinalopó Medio gelegen, ist diese friedliche Enklave ideal für alle, die einen entspannten mediterranen Lebensstil suchen, mit leichtem Zugang zur Natur und allen wichtigen Dienstleistungen. Hochwertige Ausstattung und modernes Design Jede Wohnung wurde mit hochwertigen Materialien und einer funktionellen Aufteilung entworfen und bietet: Geräumige und offene Wohnbereiche, ideal für modernes Wohnen. Voll ausgestattete Küchen mit Granit-Arbeitsplatten. Erstklassige Bäder mit eingebauten Spülkästen und hochwertigen Sanitärobjekten. Energieeffizienz mit aerothermischem System für Warmwasser. Vorinstallation einer Klimaanlage, die zu allen Jahreszeiten für Komfort sorgt. Aluminiumfenster mit Doppelverglasung, die für Wärme- und Schalldämmung sorgen. Verstärkte Sicherheitseingangstür für ein sicheres Gefühl. Parkplatz und Abstellraum im Keller, im Preis inbegriffen. Aufzug im Gebäude, der für Zugänglichkeit und Komfort sorgt. Sonnenkollektoren auf dem Dach, um die Energieeffizienz zu verbessern und die Wartungskosten zu senken. Darüber hinaus verfügt die Wohnanlage über einen Gemeinschaftspool, in dem man das mediterrane Klima genießen kann. Privilegierte Lage in Hondón de las Nieves Hondón de las Nieves ist eine Stadt mit einer großen Weinbautradition, die für ihre Tafeltrauben mit der Herkunftsbezeichnung Vinalopó bekannt ist. Umgeben von der Sierra de Crevillente bietet die Gegend zahlreiche Wanderwege, Naturgebiete und ein reiches kulturelles und historisches Angebot. Von Ihrem neuen Zuhause aus haben Sie schnellen Zugang zu den wichtigsten Sehenswürdigkeiten der Region: Flughafen Alicante - 30 km (30 Minuten mit dem Auto). Die Strände von Alicante - 35 km (35 Minuten mit dem Auto) Elche - 20 km (20 Minuten mit dem Auto) Naturpark Crevillente - 10 km (15 Minuten mit dem Auto) Golfplätze - 25 km (30 Minuten Fahrt) Ein ideales Zuhause an der Costa Blanca Genießen Sie die Ruhe des Hondón-Tals, ohne auf die Nähe zu Alicante und Elche verzichten zu müssen. Ob als ständiger Wohnsitz, Ferienhaus oder Investitionsobjekt, diese modernen Wohnungen sind eine unschlagbare Wahl. Kontaktieren Sie uns noch heute für weitere Informationen oder zur Vereinbarung eines Besichtigungstermins.