Zunächst einmal, vielen Dank für Ihre Kontaktaufnahme.
Wir haben Ihre Anfrage bezüglich des Eigentumsverweises erhalten:GE2-68854. Einer unserer Mitarbeiter wird sich so schnell wie möglich mit Ihnen in Verbindung setzen.
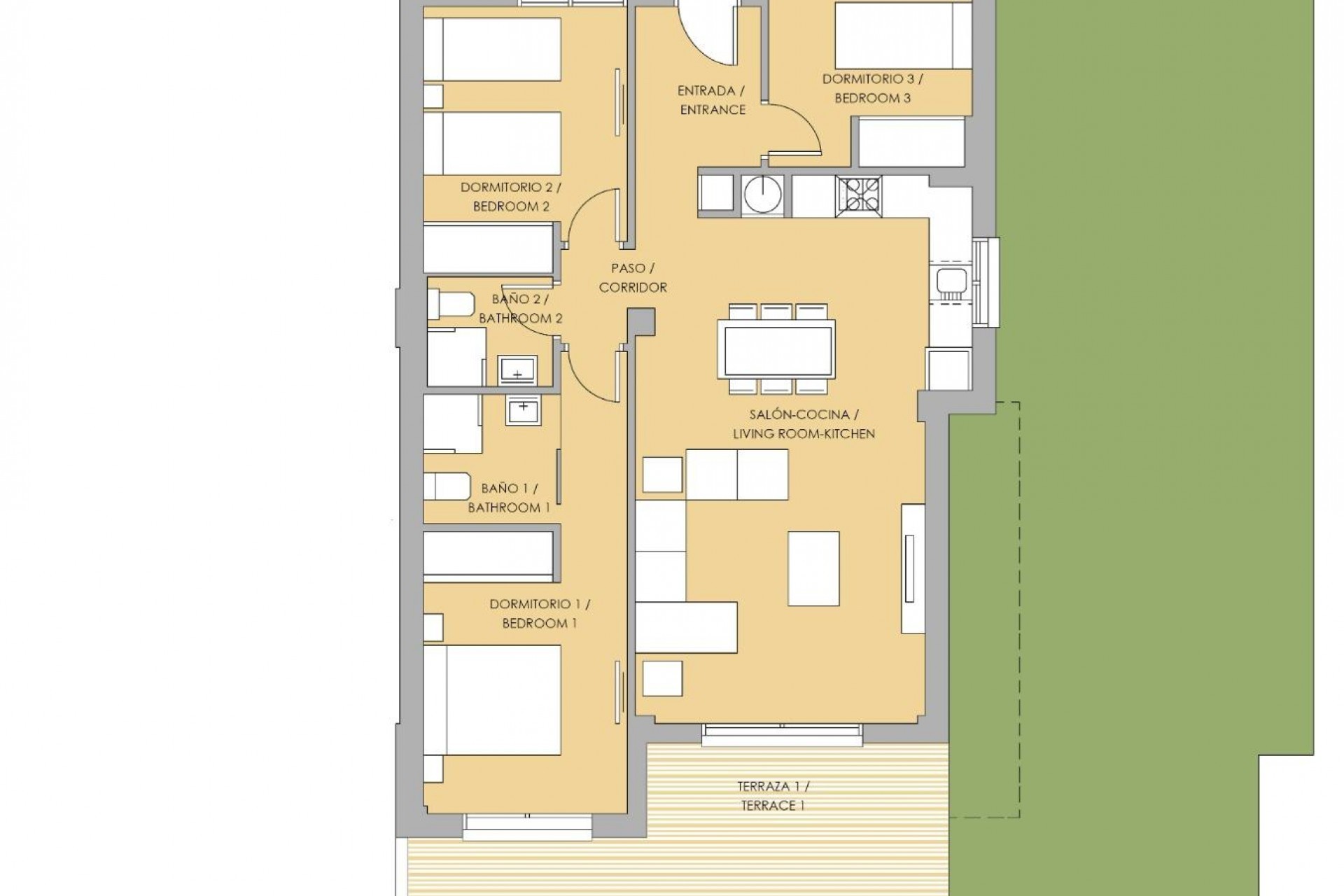
NEUBAU VON BUNGALOWWOHNUNGEN IN VISTABELLA Neubau von Bungalow-Wohnungen in modernem Design in Vistabella. Moderne Bungalows mit 2 und 3 Schlafzimmern, offener Küche und Wohnbereich, Einbauschrank, Parkplatz abseits der Straße. Die Bungalows im Erdgeschoss haben einen privaten Garten und die Bungalows im Obergeschoss haben eine private Sonnenterrasse. Die Wohnanlage verfügt über wunderschön angelegte Gemeinschaftsgärten mit einem schönen Gemeinschaftspool. Diese schönen geräumigen Wohnungen werden mit hochwertigen Produkten und Materialien gebaut. Auf Vistabella Golf gibt es Platz für alle. Der Platz ist so angelegt, dass jeder Spieler ihn von Anfang bis Ende genießen kann. Seine hügeligen Straßen, strategischen Bunker oder Seen sind einige der Merkmale, die ihn zu einem der attraktivsten Plätze der Gegend machen, wo jeder Schlag eine Herausforderung und ein Genuss für die Sinne ist. Die 18 Löcher von Vistabella Golf, Par 72 und mehr als 6.000 Meter lang, wurden nach den Richtlinien der modernen Felder mit 4 Abschlägen von großer Amplitude an jedem Loch, breiten Fairways und erhöhten Bunkern entworfen. Das Clubhaus und das Restaurant von Vistabella Golf sowie die örtlichen Bars und Geschäfte sind in 5 Minuten zu Fuß erreichbar. Die geschäftige Stadt San Miguel de Salinas und Los Montesinos sind nur 5 Autominuten entfernt und die schönen Strände von Guardamar, die mit der Blauen Flagge ausgezeichnet sind, sind nur 15 Autominuten entfernt. Der Flughafen Alicante ist 35 Minuten entfernt und der neue Flughafen Corvera Murcia ist 45 Minuten entfernt.