Zunächst einmal, vielen Dank für Ihre Kontaktaufnahme.
Wir haben Ihre Anfrage bezüglich des Eigentumsverweises erhalten:GE2-39286. Einer unserer Mitarbeiter wird sich so schnell wie möglich mit Ihnen in Verbindung setzen.
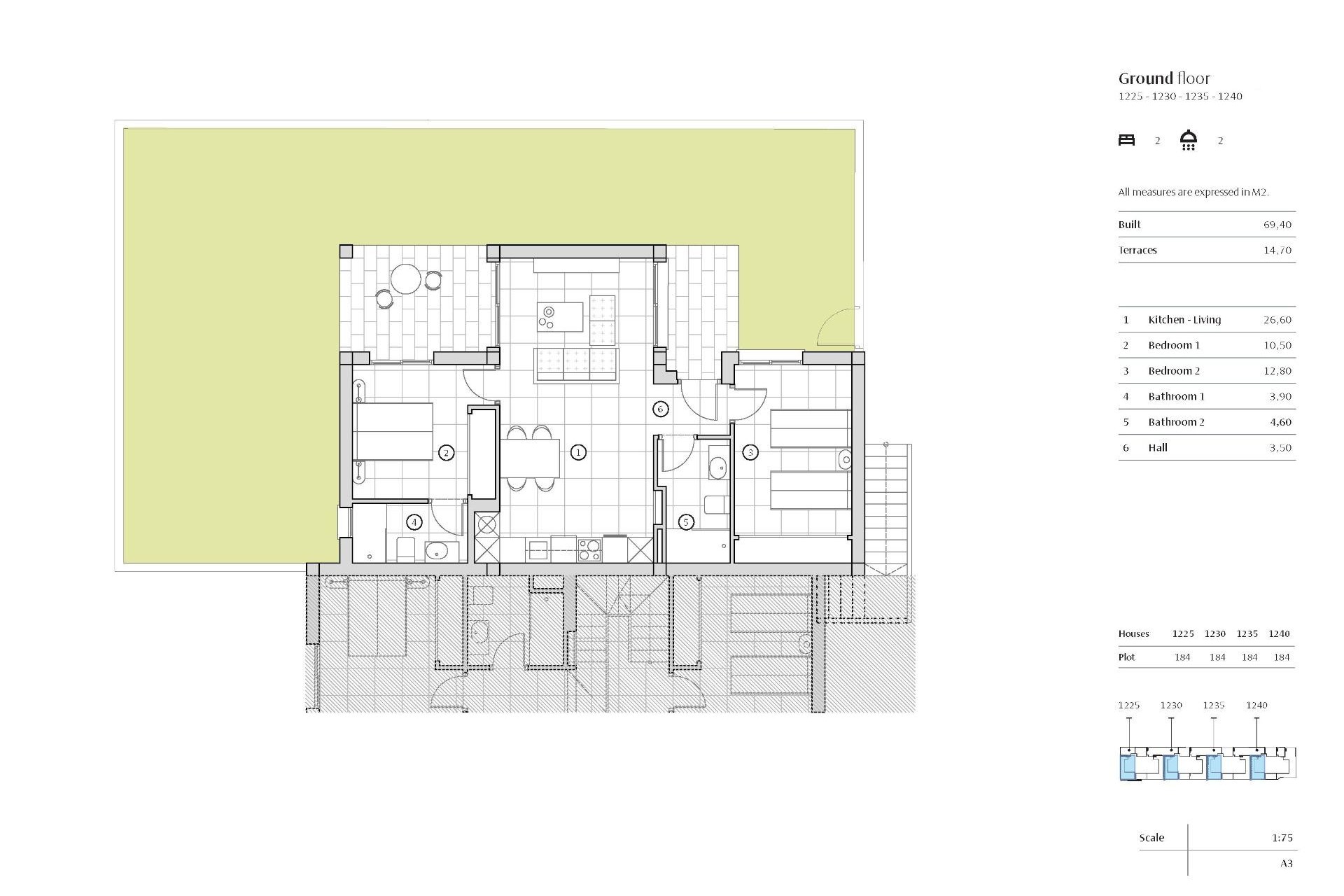
NEUBAU WOHNANLAGE IN LA FINCA GOLF Neubau einer Wohnanlage mit Bungalowwohnungen und Reihenhäusern in La Finca Golf. Moderne Bungalows mit 2 Schlafzimmern, 2 Bädern, offener Küche, die mit dem Wohnbereich integriert und verbindet die Schlafzimmer, Bäder und Terrasse. Die Bungalows im Erdgeschoss haben Terrassen und Gärten, die Bungalows im Obergeschoss haben Terrassen und Solarien im Obergeschoss. Die Südausrichtung bietet zu jeder Jahreszeit natürliches Licht und eine natürliche Heizung von Sonnenaufgang bis Sonnenuntergang, was den Energieverbrauch reduziert. Das offene Konzept der Wohnungen mit Fenstern und Schiebetüren ermöglicht eine Querlüftung und lässt das Licht herein. Die Grundstücke sind so gelegen, dass das Licht überall eindringen kann, aber gleichzeitig bietet es einige frische und gemütliche Ecken. Die neue Entwicklung findet auf einem unglaublichen Grundstück statt, wo die Häuser mit einem sorgfältigen Design und großen Räumen realisiert wurden, um maximalen Komfort zu erreichen. Das Design konzentriert sich auf den Komfort und das Wohlbefinden der Bewohner und kombiniert Das Design ist auf den Komfort und das Wohlbefinden der Bewohner ausgerichtet und kombiniert zeitgenössischen Stil mit mediterranem Charakter, wobei die traditionelle Morphologie mit der Verwendung von Steinen an der Fassade und den Vordächern übernommen wurde. Die Küchen werden komplett mit einem aktuellen Design aus hohen und niedrigen Möbeln mit hoher Kapazität geliefert. Die Unterschränke sind in weißem, matt lackiertem Laminat und die Oberschränke Oberschränke in Melaminholz mit Struktur an den Säulen. Halbverdecktes Griffprofil mit gola*-System. Arbeitsplatte im Arbeitsbereich und auf der Halbinsel Quarz Compac Blanco Luna oder ähnlich. Gepanzerte Haupttür mit weißer Lackierung auf dem Innenflügel und brauner Textur auf der Außenseite. Optisches Guckloch und Sicherheitsschloss. Weiß lackierte Innentüren mit dreistreifiger Front und rechteckigen Griffleisten aus Edelstahl. Einbauschränke mit weißen Schiebetüren. Fenster und Schiebetüren aus braunem Aluminium mit strukturierter Oberfläche. Dreh-Kipp-Fenster in den Badezimmern, mit Milchglas und manuellen Jalousien. Elektrische und motorisierte Jalousien in braunem, strukturiertem Aluminium. Alle Jalousien sind mit dem Hausautomationssystem verbunden und werden zum Schließen und Öffnen synchronisiert und können über die App bedient werden. Spezielle Doppelverglasung mit Sonnenschutz und niedrigem Emissionsgrad, um das natürliche Licht optimal zu nutzen und Energiekosten zu sparen. Optimales ästhetisches Erscheinungsbild, außergewöhnliche Farbe und minimale Reflexion. Energieausweis Klasse A Properties bietet ein hohes Niveau der Energiezertifizierung. Ermöglicht wird dies durch die Wärmedämmung von Dach und Wänden, die Aluminium-Tischlerei mit Doppelverglasung und die Installation von 5 Sonnenkollektoren pro Block. Die Wohnungen sind mit Elektro- und Telekommunikationsanschlüssen ausgestattet, die den Anforderungen der elektrotechnischen Niederspannungsrichtlinie entsprechen. Gegensprechanlage für die Kommunikation zwischen der Wohnung und dem Haupteingang. Wir haben ein fortschrittliches Hausautomationssystem zur Steuerung der motorisierten Jalousien und drei Lichtpunkte eingebaut. Mechanismen der Serie Valena Next von Legrand, die an das Hausautomationssystem angeschlossen werden können. Vorinstallation der Klimaanlage: Zentral oder Split, je nach Modell. Voll ausgestattete Alarmanlage mit einem Sensor pro Raum, Touchpanel und Sirene. Die neue Anlage befindet sich im La Finca Golf. Es befindet sich direkt an der ersten Linie des Golfplatzes mit Blick auf das 11. Fairway des La Finca Golfplatzes, einer der emblematischsten Anlagen im Südosten Spaniens und ein beliebter Zufluchtsort für Golfliebhaber. Nur 4 Minuten von Algorfa entfernt, an der Costa Blanca Süd, ist diese Anlage mit überdachtem Parkplatz, Gemeinschaftspool und Gartenanlagen der perfekte Ort für alle, die den mediterranen Lebensstil genießen möchten: Nähe zum Strand, Golf und Berge, umgeben von Ruhe, aber mit Zugang zu allen Arten von Dienstleistungen und Freizeitbereichen. Wenige Minuten entfernt von den schönsten Stränden der südlichen Costa Blanca und Orten von außergewöhnlicher Schönheit wie der Laguna Rosa de Torrevieja oder den Dünen von Guardamar del Segura. Die Nähe und der einfache Zugang zur Autobahn AP-7 und den wichtigsten Nationalstraßen verbinden den Komplex mit zahlreichen Städten an der Costa Blanca wie Orihuela, Cartagena, Elche, Murcia und Alicante. Die Flughäfen von Alicante und Murcia sind in weniger als 30 Minuten zu erreichen und bieten Verbindungen zu den wichtigsten europäischen Hauptstädten.