Zunächst einmal, vielen Dank für Ihre Kontaktaufnahme.
Wir haben Ihre Anfrage bezüglich des Eigentumsverweises erhalten:GE-85800. Einer unserer Mitarbeiter wird sich so schnell wie möglich mit Ihnen in Verbindung setzen.
Email info@gold-estates.be
Büro in Belgien: Moeistraat 20G, 9830 St-Martens-Latem
Büro in Spanien: Av. Marina Baixa 11, 03570 La Villa Joyosa, Alicante
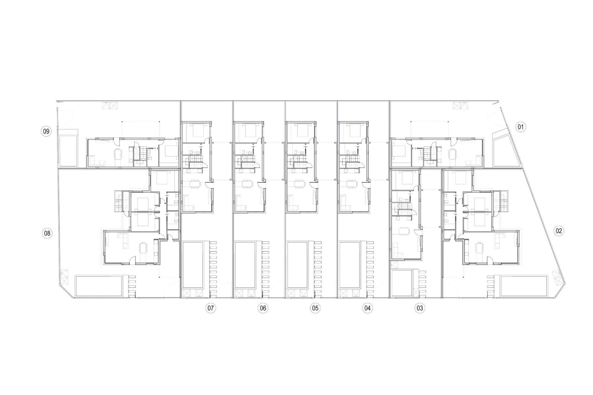
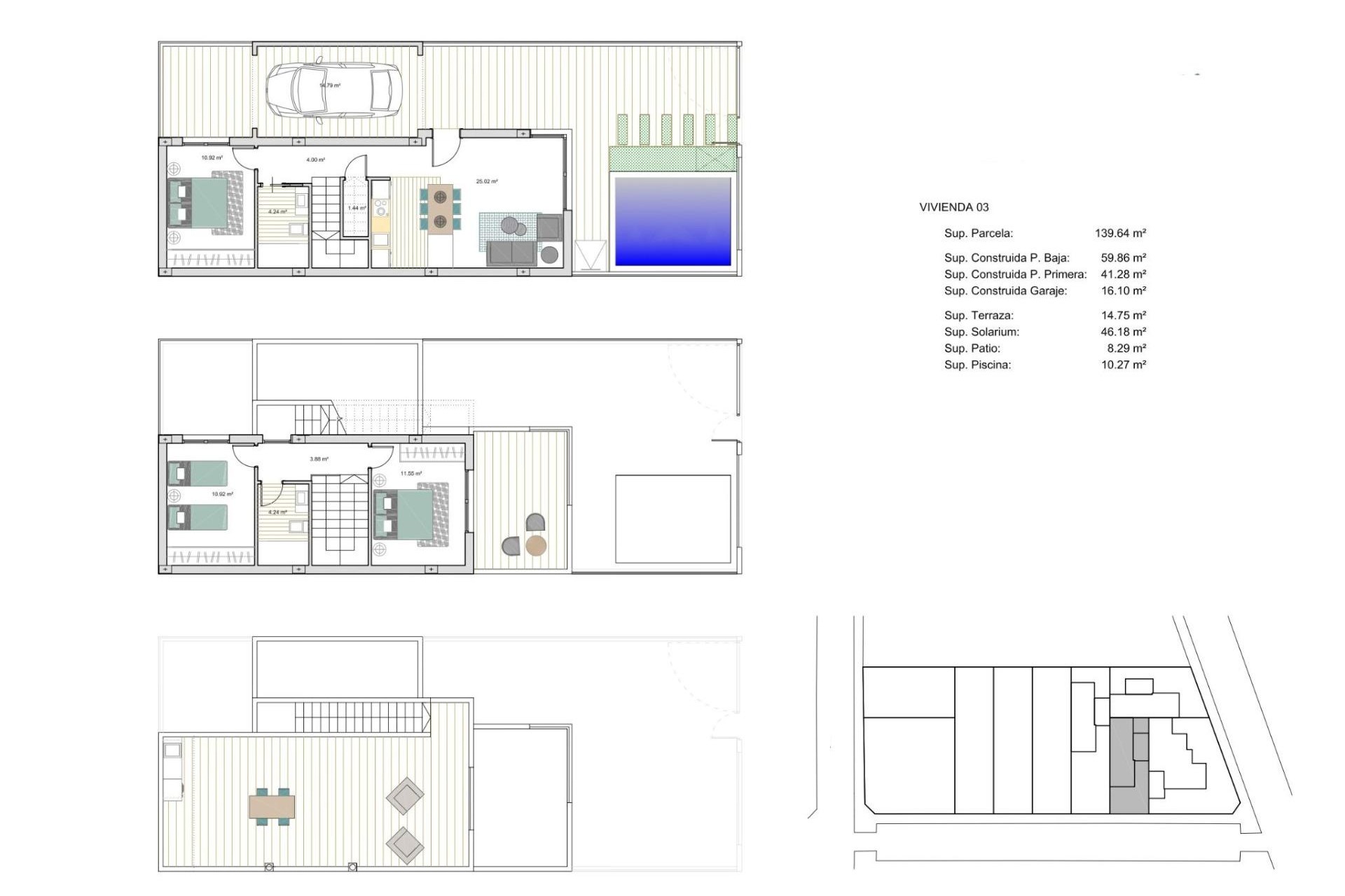
Neubauvillen mit privatem Pool in Los Alcázares, Costa Cálida Exklusive moderne Villen nur 700 Meter vom Meer entfernt Entdecken Sie diese exklusive Wohnanlage mit 9 neu gebauten Villen in Los Alcázares, einem der beliebtesten Orte an der Costa Cálida aufgrund seiner Nähe zum Meer, seiner entspannten Atmosphäre und seines hervorragenden Angebots an Dienstleistungen. Jede Villa verfügt über einen privaten Pool, eine separate Garage und wurde so konzipiert, dass sie Komfort, Funktionalität und zeitgenössischen Stil bietet. Duplex-Design mit Solarium und idealer Ausrichtung Die Wohnungen sind auf zwei Etagen verteilt und verfügen über 3 Schlafzimmer und 2 Badezimmer, eine voll ausgestattete offene Küche, ein geräumiges Wohnzimmer, eine Terrasse und einen Garten im Erdgeschoss, eine Terrasse im ersten Stock und ein privates Solarium im Dachgeschoss mit Sommerküche. Dank ihrer unterschiedlichen Ausrichtung können Sie hier das ganze Jahr über die Sonne genießen. Hochwertige Ausstattung Diese Villen sind mit hochwertigen Materialien gestaltet und bieten: Privater Pool mit Außendusche Ausgestattete Küche mit Elektrogeräten: Kühlschrank, Backofen, Einbau-Mikrowelle, Cerankochfeld, Dunstabzugshaube und integrierter Geschirrspüler Einbauschränke mit Schubladen Komplett ausgestattete Badezimmer mit Möbeln, beleuchtetem Spiegel und Duschwänden Vorinstallation für Klimaanlage Installation von 2 Sonnenkollektoren Sommerküche auf der Sonnenterrasse Überdachter Parkplatz auf dem Grundstück Unschlagbare Lage an der Costa Cálida Nur 700 Meter von den Stränden des Mar Menor entfernt, bieten diese Häuser eine einzigartige natürliche Umgebung mit ruhigem und warmem Wasser. Los Alcázares verbindet einen entspannten Lebensstil mit allen Dienstleistungen in unmittelbarer Nähe: Supermärkte, Restaurants, Sportanlagen und Gesundheitszentren. Ideal sowohl als Hauptwohnsitz als auch als Ferienhaus. Entfernungen zu Sehenswürdigkeiten Strand Mar Menor: 0,7 km Golfplätze (Roda, La Serena, Mar Menor Golf): zwischen 3 und 10 km Internationaler Flughafen Murcia: 30 km Cartagena: 22 km Einkaufszentrum Dos Mares: 13 km Yachthafen von Los Alcázares: 2 km Ihr Rückzugsort voller Sonne und Ruhe am Mittelmeer Diese Villen bieten die perfekte Kombination aus modernem Design, Privatsphäre, Komfort und einer privilegierten Lage. Kontaktieren Sie uns noch heute und vereinbaren Sie einen Besichtigungstermin, um Ihr neues Zuhause am Meer zu entdecken.
Diese hier angegebenen Informationen unterliegen Fehlern und sind nicht Bestandteil eines Vertrages. Das Angebot kann ohne vorherige Ankündigung geändert oder zurückgezogen werden. Die Preise beinhalten keine Einkaufskosten.
Ihr Traumleben in Spanien beginnt mit unserem praktischen Reiseführer! In 4 Schritten ermöglichen wir Ihnen den Start unter der spanischen Sonne.
E-Mail info@gold-estates.be
Büro in Belgien: Moeistraat 20G, 9830 St-Martens-Latem
Büro in Spanien: Av. Marina Baixa 11, 03570 La Villa Joyosa, Alicante
© 2026 Gold Estates · Rechtlicher Hinweis · Privatsphäre · Cookies · BIV Legale Informatie · Web-Karte
Entwurf & CRM: Mediaelx
Finden Sie Ihr Traumhaus, indem Sie Ihre Immobilien speichern und Benachrichtigungen zu neuen verfügbaren Immobilien erhalten
Neuen Benutzer registrierenZunächst einmal, vielen Dank für Ihre Kontaktaufnahme.
Wir haben Ihre Anfrage bezüglich des Eigentumsverweises erhalten:GE-85800. Einer unserer Mitarbeiter wird sich so schnell wie möglich mit Ihnen in Verbindung setzen.
Zunächst einmal, vielen Dank für Ihre Kontaktaufnahme.
Wir haben eine Anfrage für einen Bericht erhalten, wenn Sie den Preis der Immobilie mit der Referenz senken: GE-85800
In der Zwischenzeit sehen Sie sich bitte diese Auswahl ähnlicher Objekte an, die für Sie von Interesse sein könnten: