Zunächst einmal, vielen Dank für Ihre Kontaktaufnahme.
Wir haben Ihre Anfrage bezüglich des Eigentumsverweises erhalten:GE2-70271. Einer unserer Mitarbeiter wird sich so schnell wie möglich mit Ihnen in Verbindung setzen.
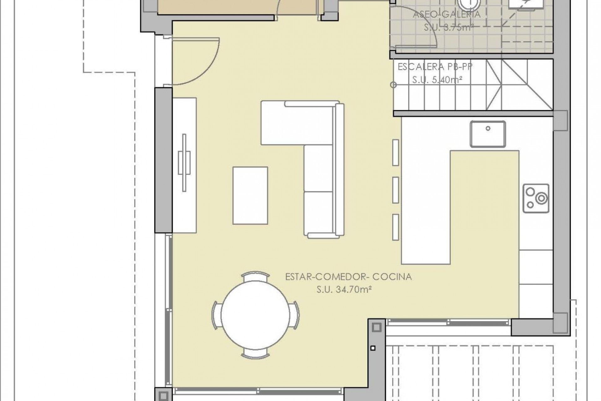
Elegante Neubauvillen in Los Montesinos - Moderner Komfort in einer ruhigen Umgebung Geräumige neue Villen im Herzen von Los Montesinos, La Herrada In der ruhigen Nachbarschaft von La Herrada, Los Montesinos, gelegen, bieten diese Neubauvillen eine perfekte Mischung aus modernem Wohnen und ruhiger Umgebung. Jede Villa in dieser schönen Anlage wurde sorgfältig entworfen, um den Komfort und die Funktionalität zu maximieren. Sie verfügt über drei Schlafzimmer und zwei Bäder, ideal für Familien oder Paare. Die offene Küche geht nahtlos in ein geräumiges Wohnzimmer über und bietet einen gemütlichen und einladenden Raum für Zusammenkünfte. Außerdem sorgen Einbauschränke und elektrische Jalousien für mehr Komfort und Stil. Diese Villen befinden sich nur wenige Gehminuten vom Dorf Los Montesinos entfernt und bieten einen schnellen Zugang zu wichtigen Dienstleistungen wie Restaurants, Apotheken und Geschäften, was das tägliche Leben einfach und angenehm macht. Moderne Merkmale und Annehmlichkeiten Jede Villa verfügt über: Privater Pool optional Optionale Sonnenterrasse: Gegen einen Aufpreis können Sie Ihr Haus mit einer Sonnenterrasse ausstatten, die sich ideal zum Sonnenbaden oder zur Sternenbeobachtung eignet. Privater Garten und Parkplatz abseits der Straße: Jede Villa verfügt über einen privaten Garten und einen Parkplatz abseits der Straße, was für zusätzliche Sicherheit und persönlichen Freiraum sorgt. Hochwertige Ausstattung: Von elektrischen Jalousien bis hin zu Sonnenschutzglasfenstern sind die Villen mit hochwertigen Einrichtungsgegenständen ausgestattet. Die Bäder verfügen über eine Fußbodenheizung für zusätzlichen Komfort in den kühleren Monaten. Weiße Ware inbegriffen: Die Villen sind mit den wichtigsten Küchengeräten ausgestattet, was für zusätzlichen Komfort und Wert sorgt. Erstklassige Lage in der Nähe von Top-Sehenswürdigkeiten Los Montesinos ist eine charmante und ruhige Gegend zwischen den berühmten Salzseen von Torrevieja und La Mata. Diese natürliche Umgebung bietet ein einzigartiges und gesundes Umfeld, perfekt für alle, die einen ausgewogenen Lebensstil suchen. Die Strände von Guardamar und Torrevieja: In nur 8 km Entfernung befinden sich herrliche Strände, an denen die Bewohner sonnige Tage und den Blick aufs Meer genießen können. Golfplätze: Umgeben von renommierten Golfplätzen im Umkreis von 5 km, sind diese Villen ein Paradies für Golfer. Flughafen Alicante: Der 29 km entfernte Flughafen von Alicante bietet schnelle Verbindungen zu den großen Städten und macht das Reisen einfach und bequem. Naturreservate und Outdoor-Aktivitäten: Die nahegelegenen Naturschutzgebiete und Seen bieten zahlreiche Freizeitmöglichkeiten, darunter Vogelbeobachtung, Radfahren, Wanderwege und Reiten. Eine perfekte Wahl für Ruhe und Bequemlichkeit Diese neu gebauten Villen in Los Montesinos bieten eine außergewöhnliche Gelegenheit, moderne Annehmlichkeiten und einen entspannten Lebensstil in der Nähe der Natur zu genießen. Ob als Hauptwohnsitz oder als Feriendomizil, diese Immobilie ist die ideale Wahl für alle, die Ruhe, Komfort und Zugänglichkeit schätzen.