First of all, thanks for contacting us.
We have received your request regarding the property reference: GE2-45836. One of our agents will contact you as soon as possible.
Email info@gold-estates.be
Belgium office: Moeistraat 22A, 983 St-Martens-Latem
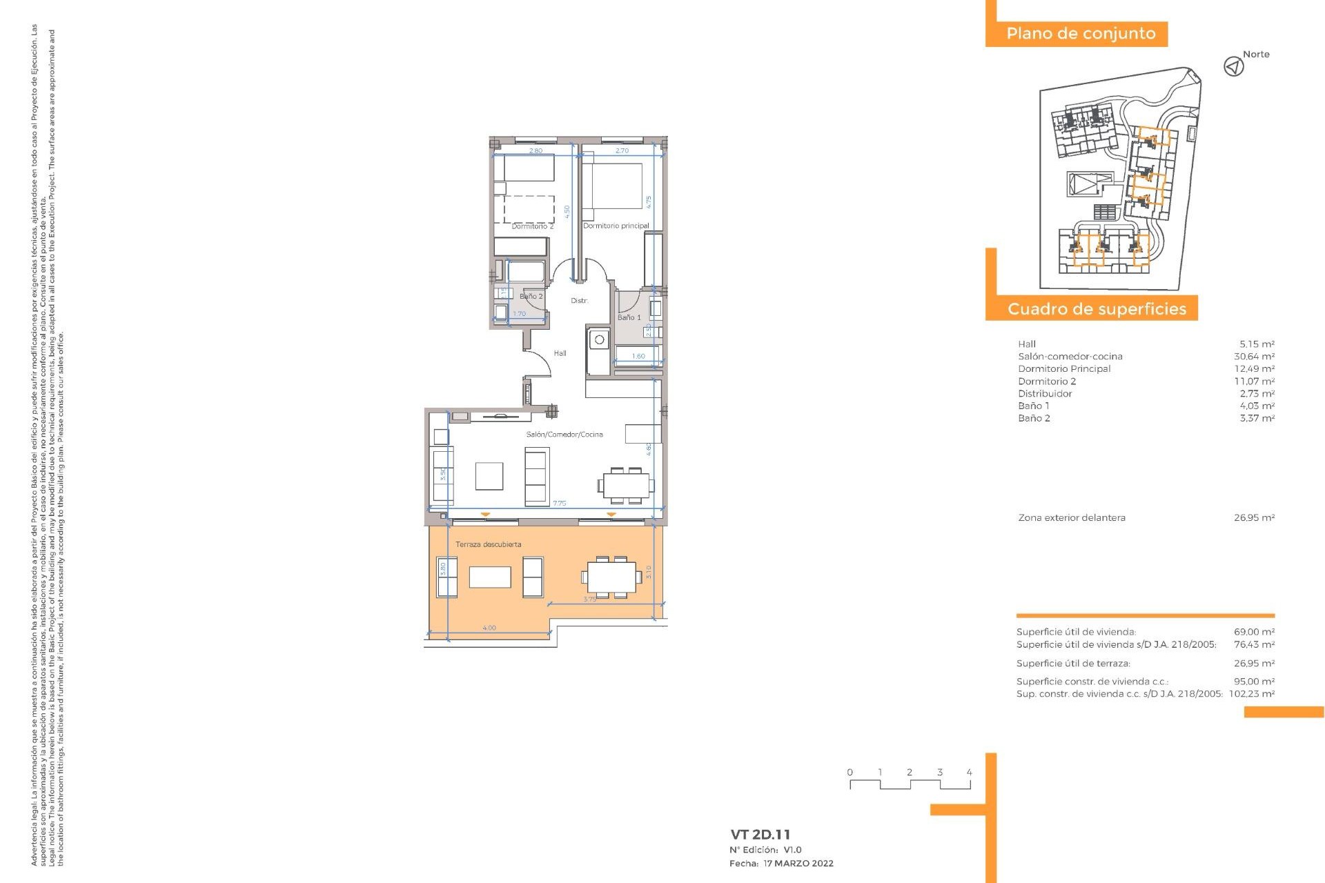
URBANISATION IN ESTEPONA 300 METRES FROM THE BEACH Development of 2 and 3-bedroom homes, where the spacious, landscaped communal areas take centre stage, creating spaces for leisure and sport without leaving the house. Equipped kitchen, air conditioning and heating by means of hot-cold pump. Each property has a garage and storage room. A place to enjoy. This development is located in Estepona, just 5 minutes from the town centre and its marina. Just 300 metres from the beach, and with all the necessary services and the best leisure facilities at your fingertips: supermarkets, shopping centres, hospital, schools, and a wide variety of golf courses. Strategically communicated with the main points of interest of the Costa del Sol, and 55 minutes from Malaga international airport. Estepona has a charming historic centre with its whitewashed houses and wonderful beaches. It is a paradise for nature lovers, as it enjoys an immense natural wealth, with 23 km of coastline divided into more than 15 beaches, which will seduce the most demanding. Beaches with crystal clear, warm waters and fine sand. Don't miss the opportunity to live in a paradise that you can enjoy every day of the year.
This info given here is subject to errors and do not form part of any contract. The offer can be changed or withdrawn without notice. Prices do not include purchase costs.
Your dream life in Spain starts with our handy guide! In 4 steps, we’ll get you started under the Spanish sun.
E-Mail info@gold-estates.be
Belgium office: Moeistraat 22A, 983 St-Martens-Latem
Spain office: Calle Valentia, 7, 03570 La Vila Joiosa, Alicante
Find your dream home by saving your properties and receiving alerts about new properties available.
Register new userFirst of all, thanks for contacting us.
We have received your request regarding the property reference: GE2-45836. One of our agents will contact you as soon as possible.
First of all, thanks for contacting us.
We have received a request for a report if you lower the price of the property with the reference: GE2-45836
In the meantime, please have a look at this selection of similar properties, that might be of interest to you: