First of all, thanks for contacting us.
We have received your request regarding the property reference: GE2-78927. One of our agents will contact you as soon as possible.
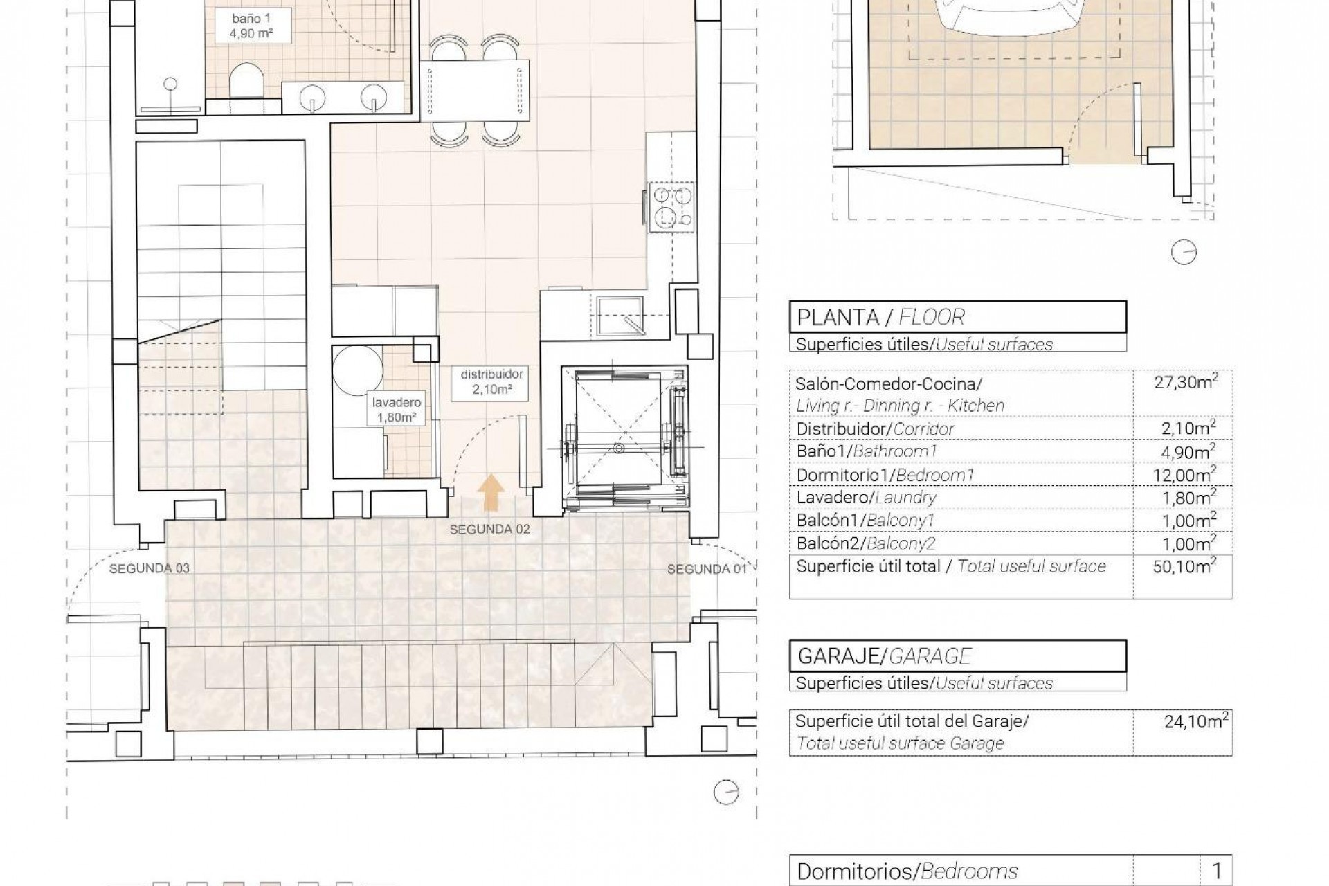
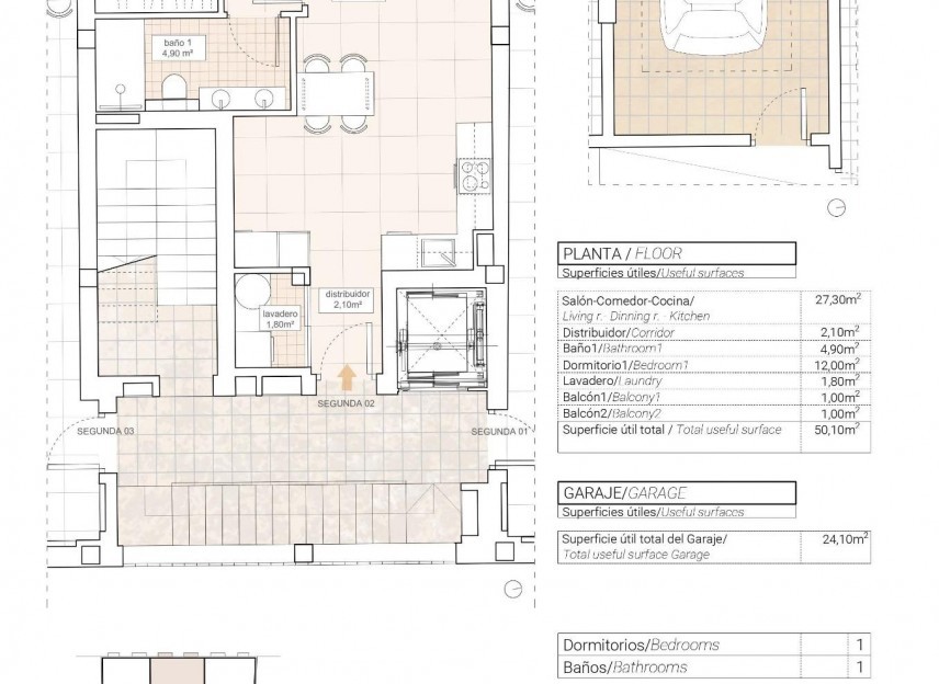
Modern Apartments with Stunning Vineyard Views in Hondón de las Nieves Stylish New-Build Apartments in a Peaceful Valley Setting Discover these contemporary apartments in Hondón de las Nieves, a charming town nestled in a picturesque valley surrounded by olive groves and almond trees. This exclusive residential complex offers 1, 2, and 3-bedroom apartments, all designed to provide comfort, energy efficiency, and breathtaking views of the Vinalopó vineyards. Located in the Vinalopó Medio region, this tranquil area is perfect for those seeking a relaxed Mediterranean lifestyle with easy access to nature and essential services. High-Quality Features for Modern Living Each apartment is built with premium materials and finishes, ensuring both style and functionality: Spacious interiors with open-plan layouts. Fully furnished kitchens with granite countertops. High-end bathrooms with built-in cisterns and top-quality sanitary fittings. Energy-efficient design with aerothermal water heating. Pre-installed ducted air conditioning for year-round comfort. Double-glazed aluminum windows with thermal insulation. Reinforced security entrance door for added peace of mind. Private garage on the ground floor included. Elevator access for convenience. Additionally, solar panels are installed on the rooftop to enhance energy efficiency and reduce utility costs. Prime Location in Hondón de las Nieves Hondón de las Nieves is a charming Spanish village known for its wine production, traditional culture, and scenic landscapes. The town features historic buildings, local markets, and natural walking trails, making it a fantastic location for both permanent living and holiday retreats. This new development is situated in a peaceful yet well-connected area, offering easy access to essential services and key locations: Alicante Airport – 30 km (30-minute drive) Beaches of Alicante – 35 km (35-minute drive) Elche – 20 km (20-minute drive) Crevillente Natural Park – 10 km (15-minute drive) Golf Courses – 25 km (30-minute drive) Your Perfect Home in the Heart of Alicante’s Countryside Enjoy the tranquility of the Hondón Valley while staying close to the vibrant cities of Alicante and Elche. Whether you’re looking for a holiday home, an investment property, or a peaceful place to live year-round, these modern apartments are the perfect choice. Contact us today for more information or to schedule a viewing!