En primer lugar, gracias por contactarnos.
Hemos recibido su solicitud con respecto a la referencia de propiedad:MI-59434. Uno de nuestros agentes se pondrá en contacto con usted lo antes posible.
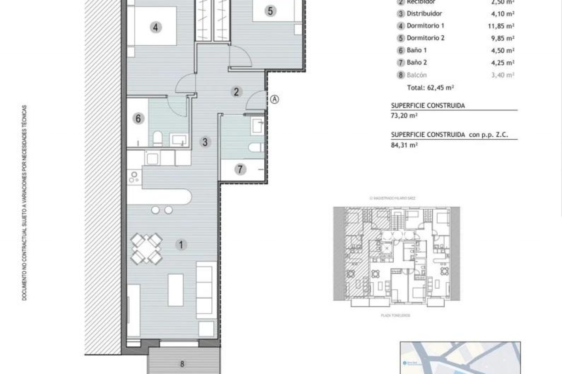
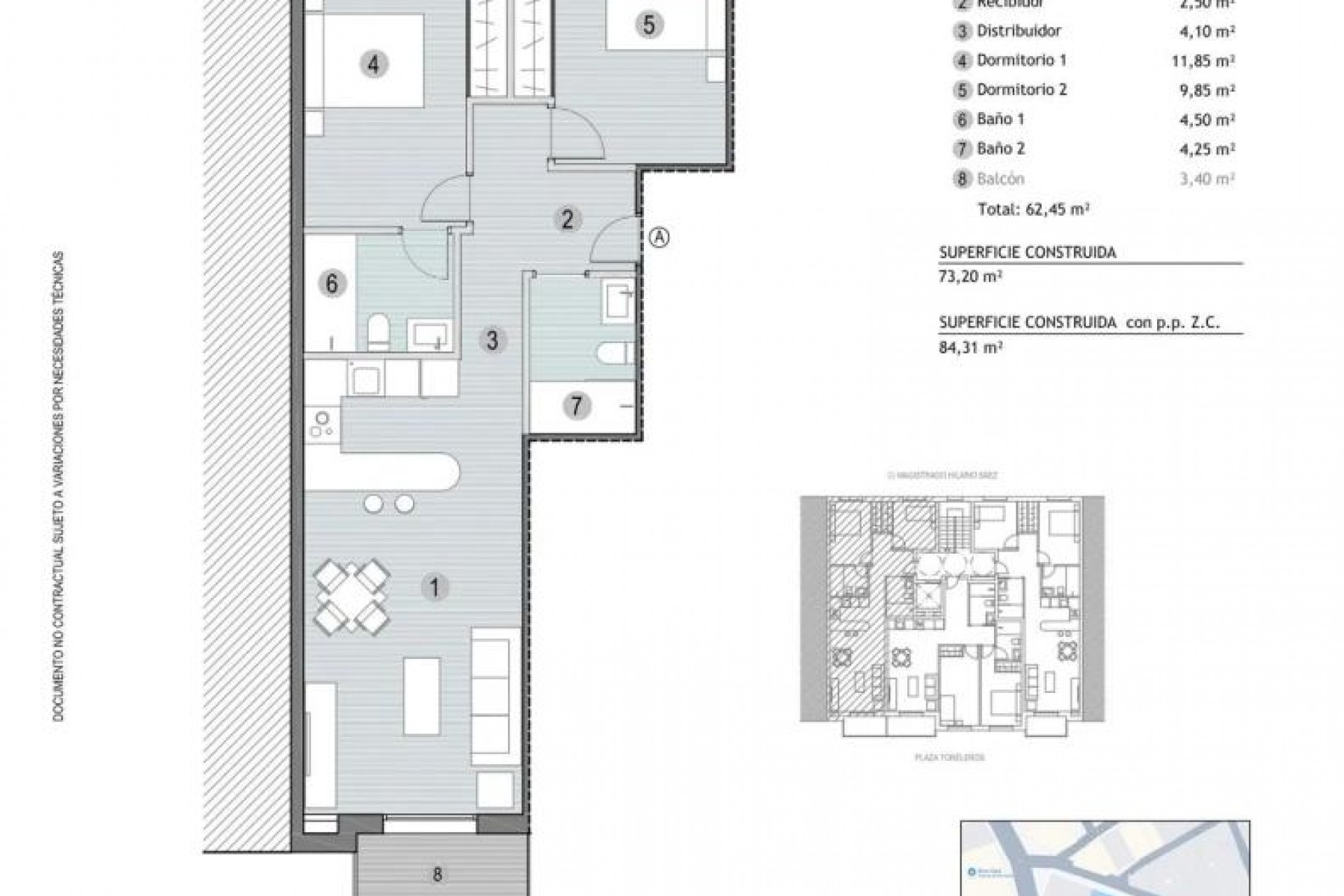
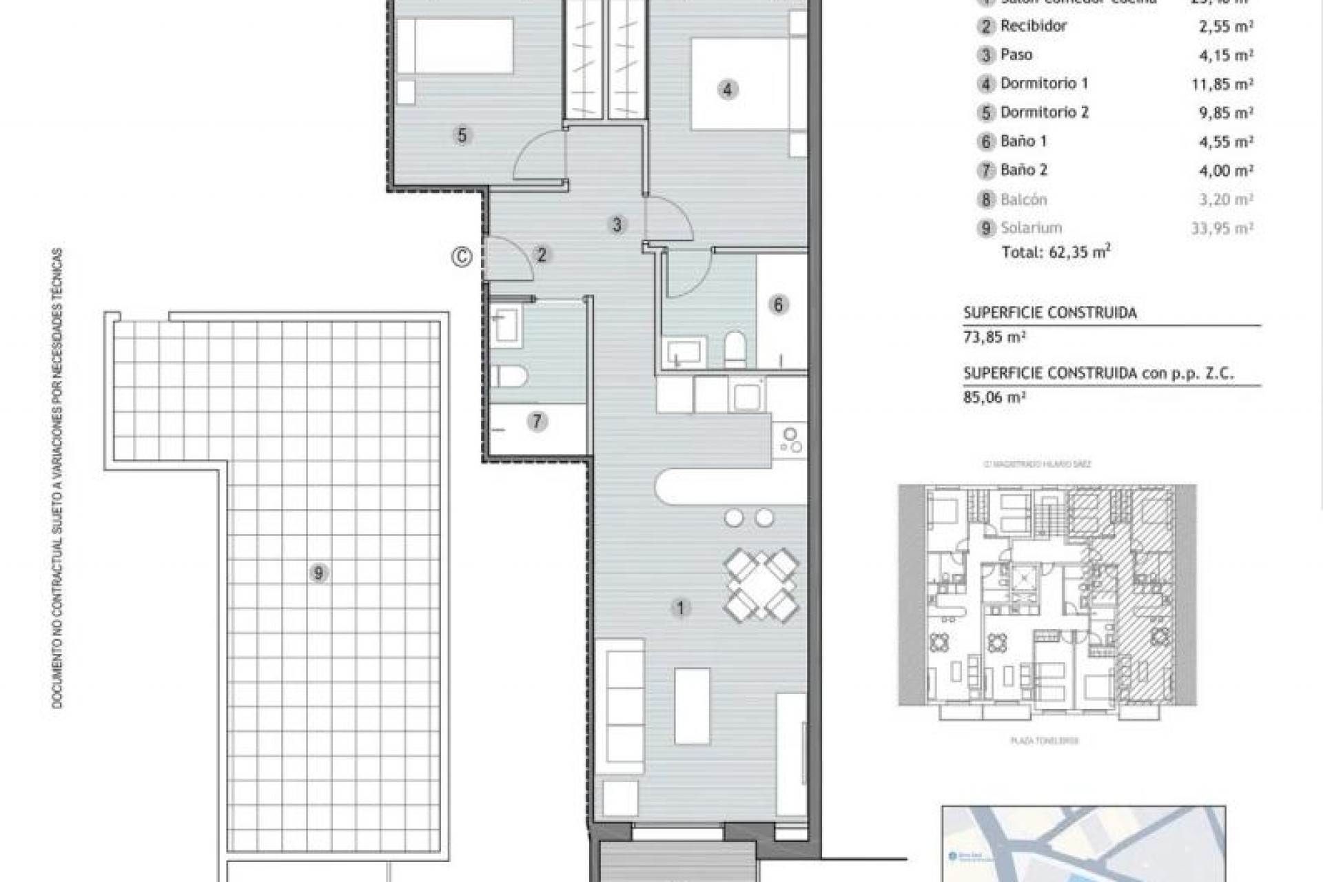
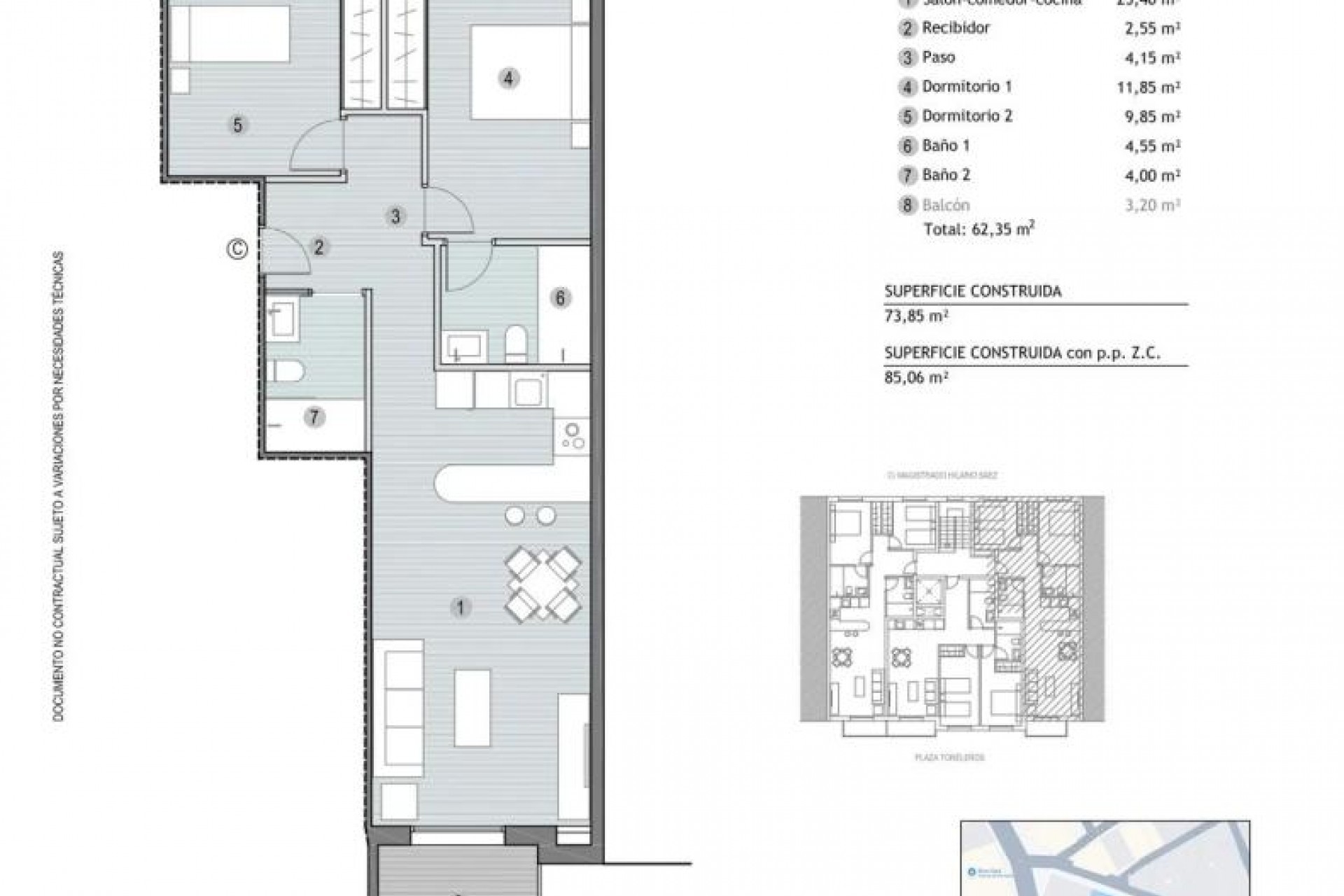
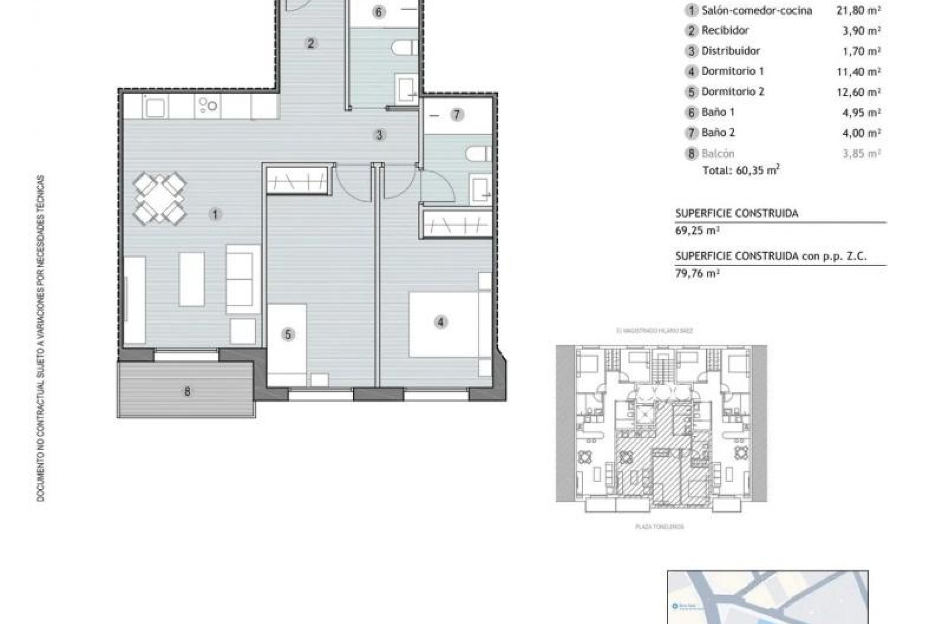
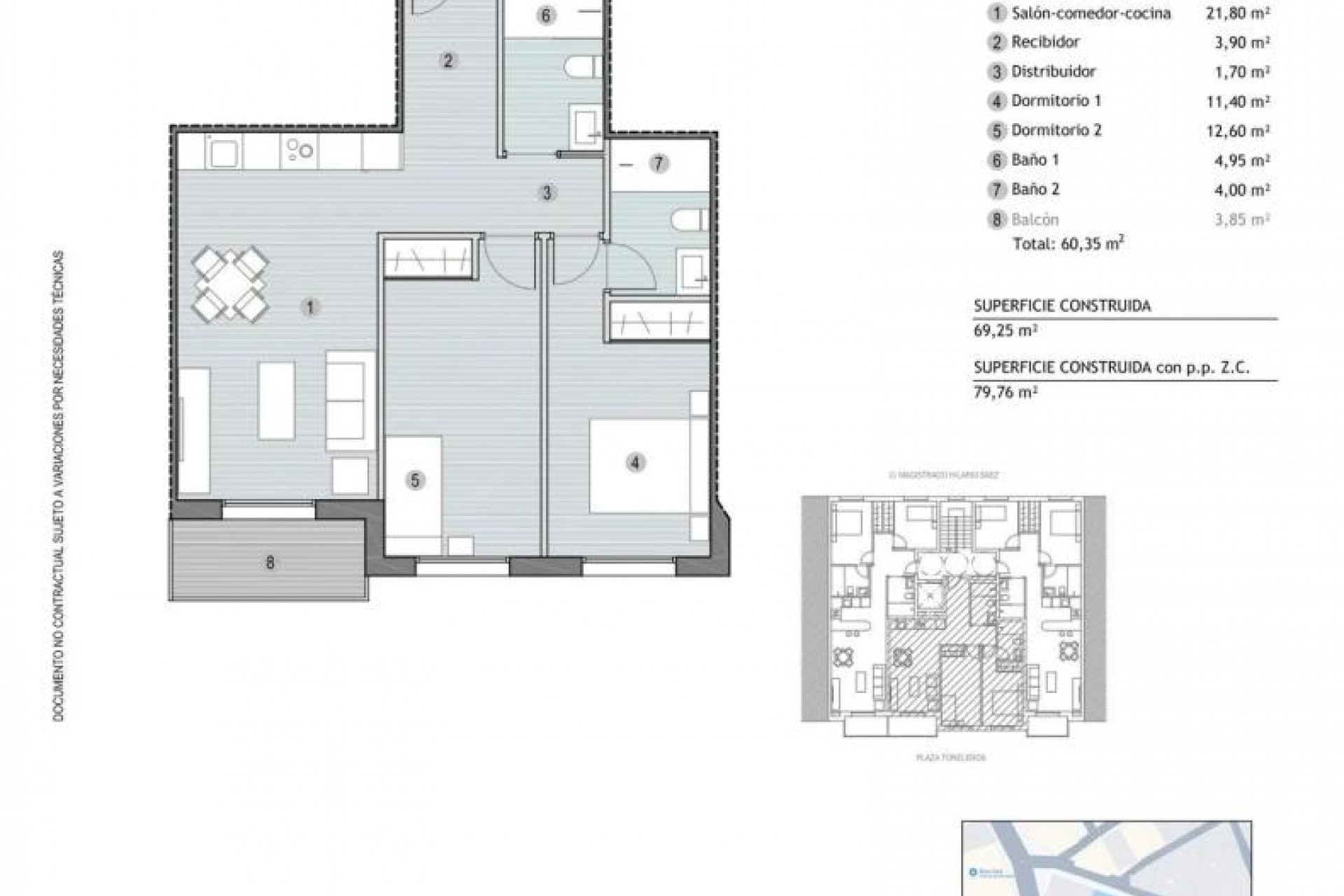
En pleno corazón de El Puerto de Mazarrón, a tan solo 3 minutos a pie de la playa, se presenta esta atractiva promoción de obra nueva, ideal tanto para vivir todo el año como para disfrutar de una segunda residencia junto al Mediterráneo. Un enclave privilegiado que combina la tranquilidad del entorno costero con la comodidad de contar con todos los servicios a escasos pasos. Un edificio moderno y bien distribuido El proyecto consta de un edificio de planta baja más tres alturas, con un total de 10 viviendas diseñadas con un enfoque funcional y contemporáneo. Además, el edificio incluye: 1 local comercial en planta baja de 50 m², que se entrega en bruto5 plazas de garaje de 16,05 m², aportando un extra de comodidad en una zona céntrica Cada una de las plantas tipo alberga tres viviendas cuidadosamente distribuidas, mientras que la planta baja cuenta con una vivienda adicional junto al local comercial. Tipologías de vivienda Las viviendas se ofrecen en tres tipologías diferentes, adaptadas a distintas necesidades: Tipo A: 83,36 m² construidosTipo B: 78,86 m² construidosTipo C: 82,89 m² construidos Todas las viviendas disponen de: 2 dormitoriosSalón con cocina americana, amplio y luminosoTerraza o balcón, ideales para disfrutar del clima mediterráneo Las viviendas Tipo A y C cuentan con 2 baños, mientras que las Tipo B disponen de 1 baño. Calidades y acabados El proyecto destaca por una cuidada selección de materiales que garantizan confort, durabilidad y diseño: Suelo de gres cerámico de alta resistenciaCarpintería exterior de aluminio termolacado en color gris antracitaCarpintería interior en DM lacado en blanco, con tapajuntas en relieve de 7 cmVidrios Climalit, que proporcionan un excelente aislamiento térmico y acústico Todo ello pensado para ofrecer viviendas modernas, eficientes y agradables para el día a día. Una oportunidad única junto al mar Esta promoción representa una excelente oportunidad tanto para uso residencial como para inversión, en una zona en plena expansión y a escasos metros del mar. Vivir aquí significa disfrutar del Mediterráneo, de la vida costera y de todos los servicios sin necesidad de desplazamientos. 📩 Contacta con nosotros para más información y asegura tu nueva vivienda en El Puerto de Mazarrón.