En primer lugar, gracias por contactarnos.
Hemos recibido su solicitud con respecto a la referencia de propiedad:MI-77932. Uno de nuestros agentes se pondrá en contacto con usted lo antes posible.
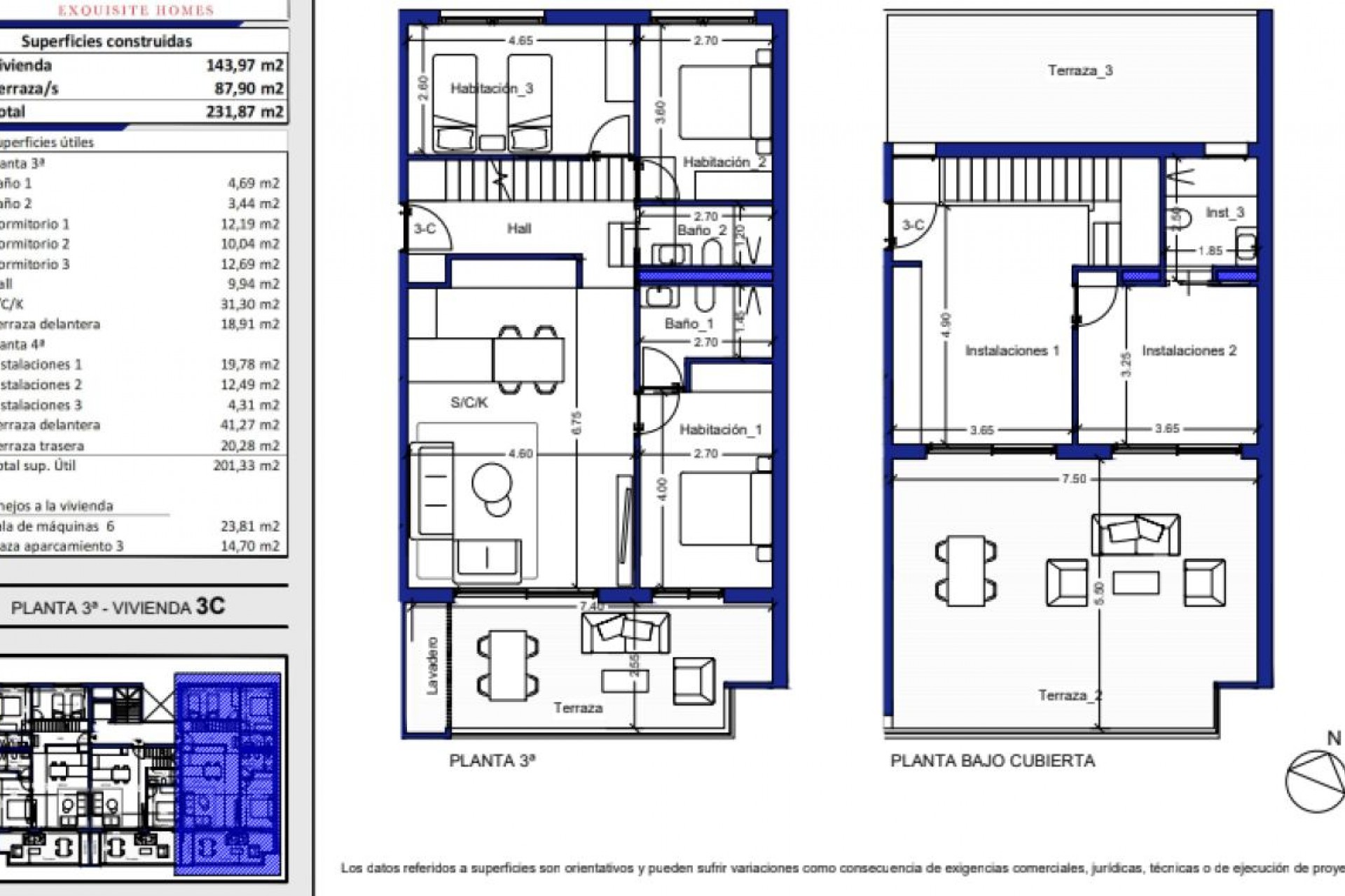
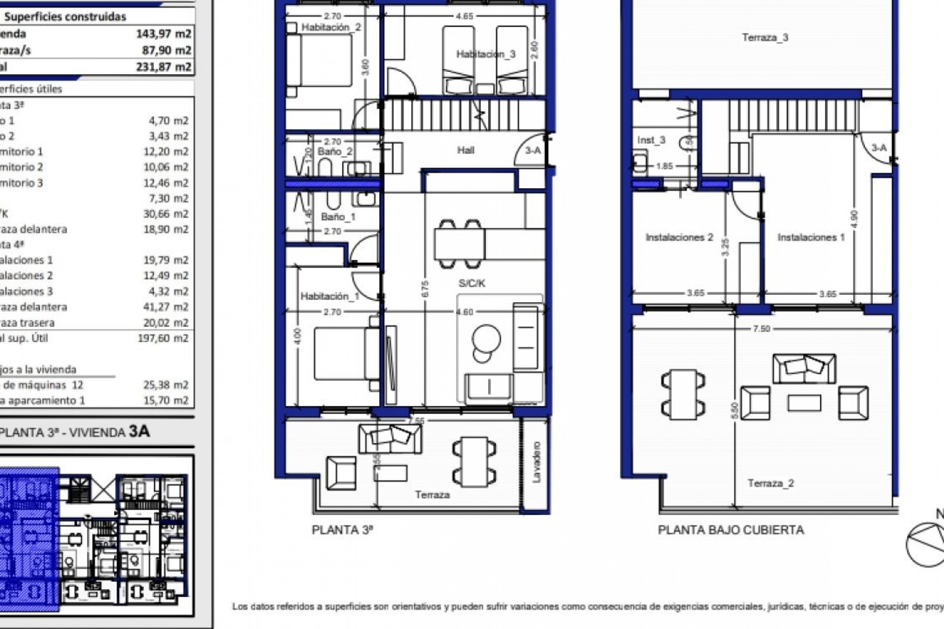
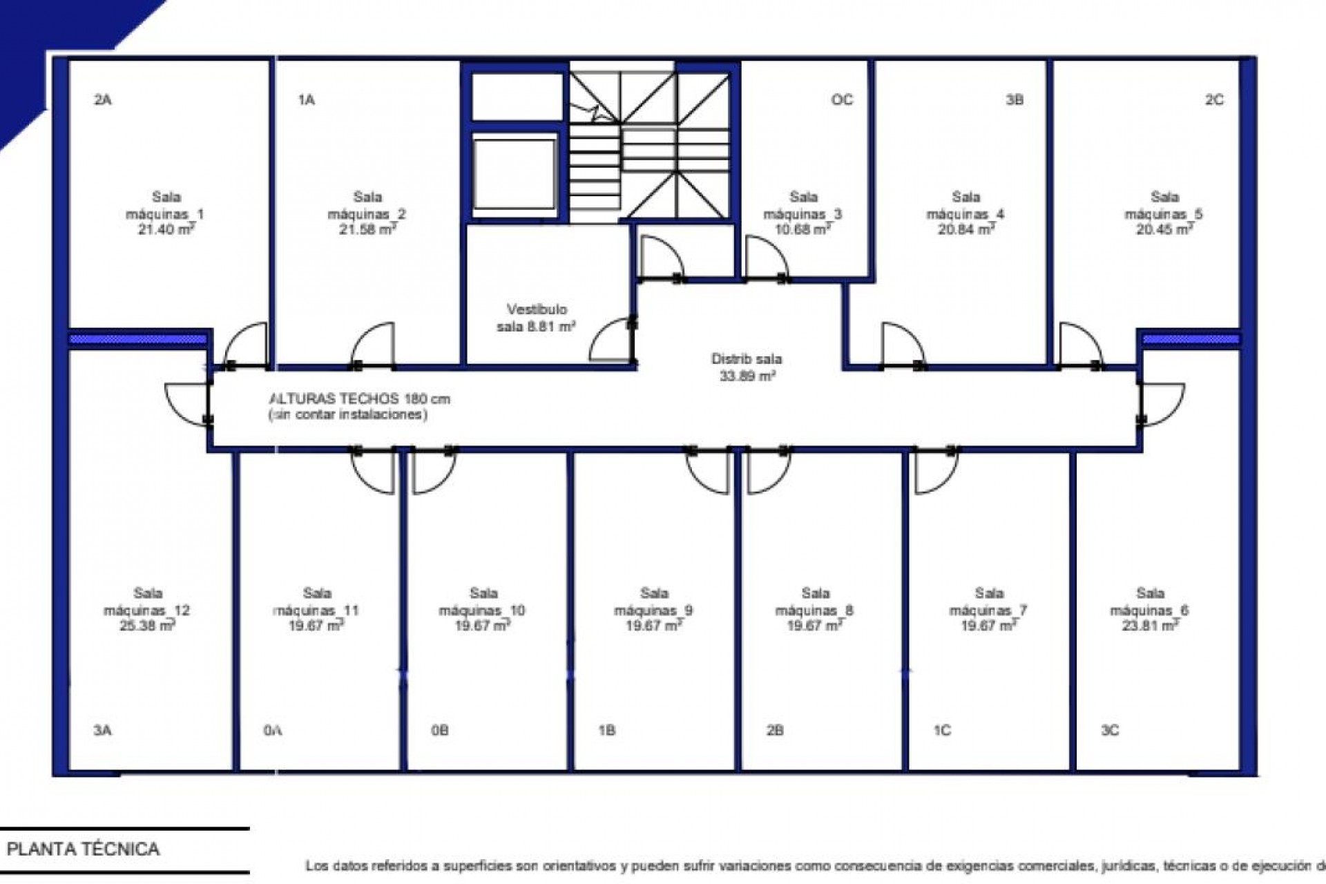
Confort, diseño y calidad de vida junto al Mediterráneo Descubra una exclusiva promoción de solo 12 viviendas en Villajoyosa, concebidas para quienes buscan el equilibrio perfecto entre modernidad, lujo y un entorno privilegiado. Cada hogar ha sido diseñado con amplios espacios, terrazas privadas y acabados de primera calidad, invitándole a disfrutar del clima mediterráneo durante todo el año. La promoción ofrece zonas comunes con piscina y jardines, pensadas para el descanso y el ocio, en un entorno de tranquilidad y bienestar. Su ubicación estratégica, a pocos metros de la Playa Centro, se verá aún más potenciada con la próxima construcción de un ascensor que facilitará el acceso directo desde la zona alta, brindándole una experiencia única junto al mar, el puerto deportivo y el tradicional puerto pesquero. Todo lo que necesita, a un paso de casa Situada en una de las áreas más demandadas de Villajoyosa, esta promoción le garantiza la comodidad de tener todo al alcance: supermercados, restaurantes, comercios locales y el centro de la ciudad a un corto paseo. Además, en menos de 5 minutos podrá disfrutar de la playa y de la amplia oferta gastronómica, cultural y de servicios que caracteriza a esta encantadora localidad costera. Una inversión en calidad de vida Adquirir una de estas viviendas significa mucho más que comprar una propiedad: es apostar por el confort, la exclusividad y la calidad de vida en la Costa Blanca. Con una construcción sólida, materiales de primer nivel y un diseño pensado para satisfacer a los compradores más exigentes, estas viviendas son ideales tanto como residencia habitual, segunda vivienda o inversión segura. Viva el Mediterráneo en todo su esplendor en una de las localizaciones más atractivas de Villajoyosa.