En primer lugar, gracias por contactarnos.
Hemos recibido su solicitud con respecto a la referencia de propiedad:CL-99051. Uno de nuestros agentes se pondrá en contacto con usted lo antes posible.
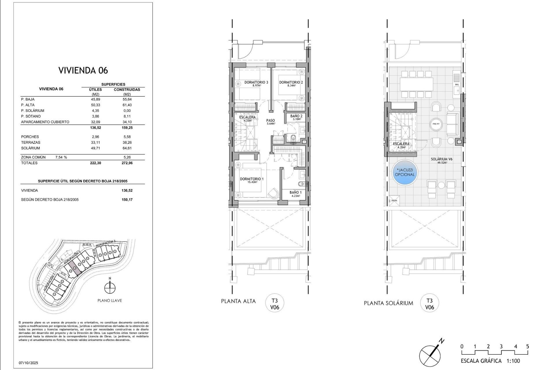
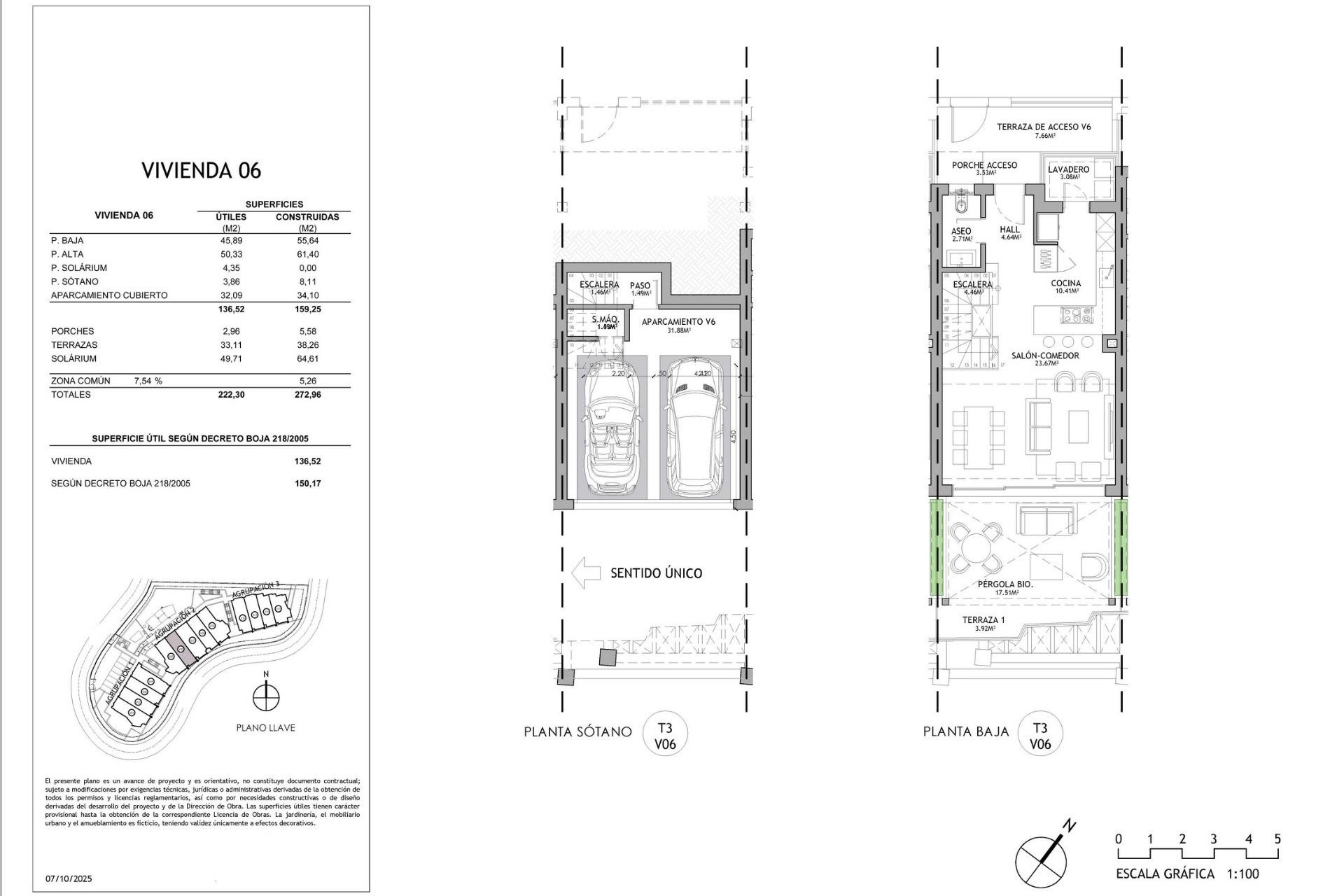
Casas adosadas de nueva construcción con vistas al mar cerca del campo de golf Miraflores, en Calahonda Residencia boutique en una ubicación privilegiada en Calahonda Este exclusivo proyecto de nueva construcción consta de una colección boutique de solo 13 casas adosadas de dos y tres dormitorios y casas adosadas en esquina situadas en una parcela elevada cerca del campo de golf Miraflores, en Calahonda. La zona es conocida por su tranquilo ambiente residencial, al tiempo que ofrece un excelente acceso a las playas, los campos de golf y los servicios cotidianos. Calahonda se encuentra entre Marbella y Fuengirola, lo que la convierte en una de las localidades más convenientes y consolidadas de la Costa del Sol. Viviendas con vistas al mar, privacidad y orientación Cada vivienda disfruta de vistas abiertas al mar desde todas las plantas gracias a su posición elevada y a su cuidadosa orientación. Los soláriums de la azotea ofrecen impresionantes vistas panorámicas de la costa mediterránea, creando un refugio privado al aire libre para cada propietario. La orientación y el diseño arquitectónico garantizan un equilibrio perfecto entre privacidad y vistas ininterrumpidas. Amplias terrazas y salón diáfano Las casas adosadas están diseñadas para ampliar los espacios habitables al aire libre con amplias terrazas ideales para comer, relajarse o disfrutar de la brisa marina. Los interiores diáfanos conectan la cocina, el comedor y el salón con acceso directo a las terrazas, creando espacios luminosos y aireados con vistas continuas al mar. Algunas viviendas también incluyen jardines privados en la planta baja. Distribuciones flexibles para una vida moderna Las viviendas se distribuyen en dos plantas más un solárium privado en la azotea. La planta baja cuenta con una sala de estar y comedor de planta abierta con cocina integrada, lavadero y aseo de invitados. La planta superior ofrece dos o tres dormitorios dobles y dos baños, incluido un dormitorio principal con baño en suite. Varios soláriums en la azotea incluyen un estudio que proporciona un espacio adicional versátil para una oficina en casa o una zona de ocio. Especificaciones de primera calidad y características de confort Todas las propiedades están construidas con materiales de alta calidad y sistemas modernos. Las características incluyen aire acondicionado y calefacción totalmente instalados mediante un sistema aerotérmico y cocinas totalmente equipadas con electrodomésticos Siemens. Las ventanas de suelo a techo maximizan la luz natural y mejoran la conexión entre los espacios interiores y exteriores. La mayoría de las unidades incluyen dos plazas de aparcamiento subterráneo y algunas viviendas también ofrecen un trastero privado. Zonas comunes estilo resort En el corazón de la comunidad se encuentra una piscina para residentes con amplias terrazas diseñadas para crear un ambiente tranquilo estilo resort. Este espacio compartido es ideal para relajarse después de una partida de golf o disfrutar del clima mediterráneo con la familia y los amigos. Excelente conectividad y servicios cercanos El campo de golf Miraflores está a aproximadamente 1 km, lo que hace que esta promoción sea ideal para los amantes del golf. Las playas de Calahonda están a unos 1,4 km de las residencias y ofrecen una amplia gama de chiringuitos y actividades acuáticas. Marbella y La Cala de Mijas se encuentran a poca distancia en coche, mientras que el aeropuerto de Málaga está bien comunicado a través de la carretera principal de la costa. Distancias clave a puntos de interés Miraflores Golf: 1 km Playa de Calahonda: 1,4 km La Cala de Mijas: 6 km Marbella: 15 km Puerto deportivo de Puerto Banús: 18 km Aeropuerto de Málaga: 35 km Asegúrese su vivienda con vistas al mar en la Costa del Sol Póngase en contacto con nosotros hoy mismo para obtener más información o concertar una visita privada a estas exclusivas casas adosadas de nueva construcción cerca del campo de golf Miraflores, en Calahonda.