En primer lugar, gracias por contactarnos.
Hemos recibido su solicitud con respecto a la referencia de propiedad:GE2-31739. Uno de nuestros agentes se pondrá en contacto con usted lo antes posible.
Email info@gold-estates.be
Oficina en Bélgica: Moeistraat 20G, 9830 St-Martens-Latem
Oficina en España: Av. Marina Baixa 11, 03570 La Villa Joyosa, Alicante
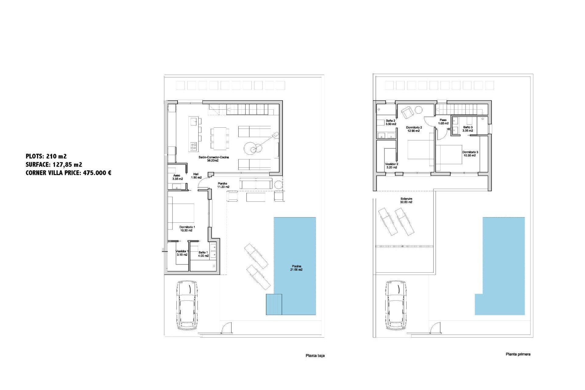
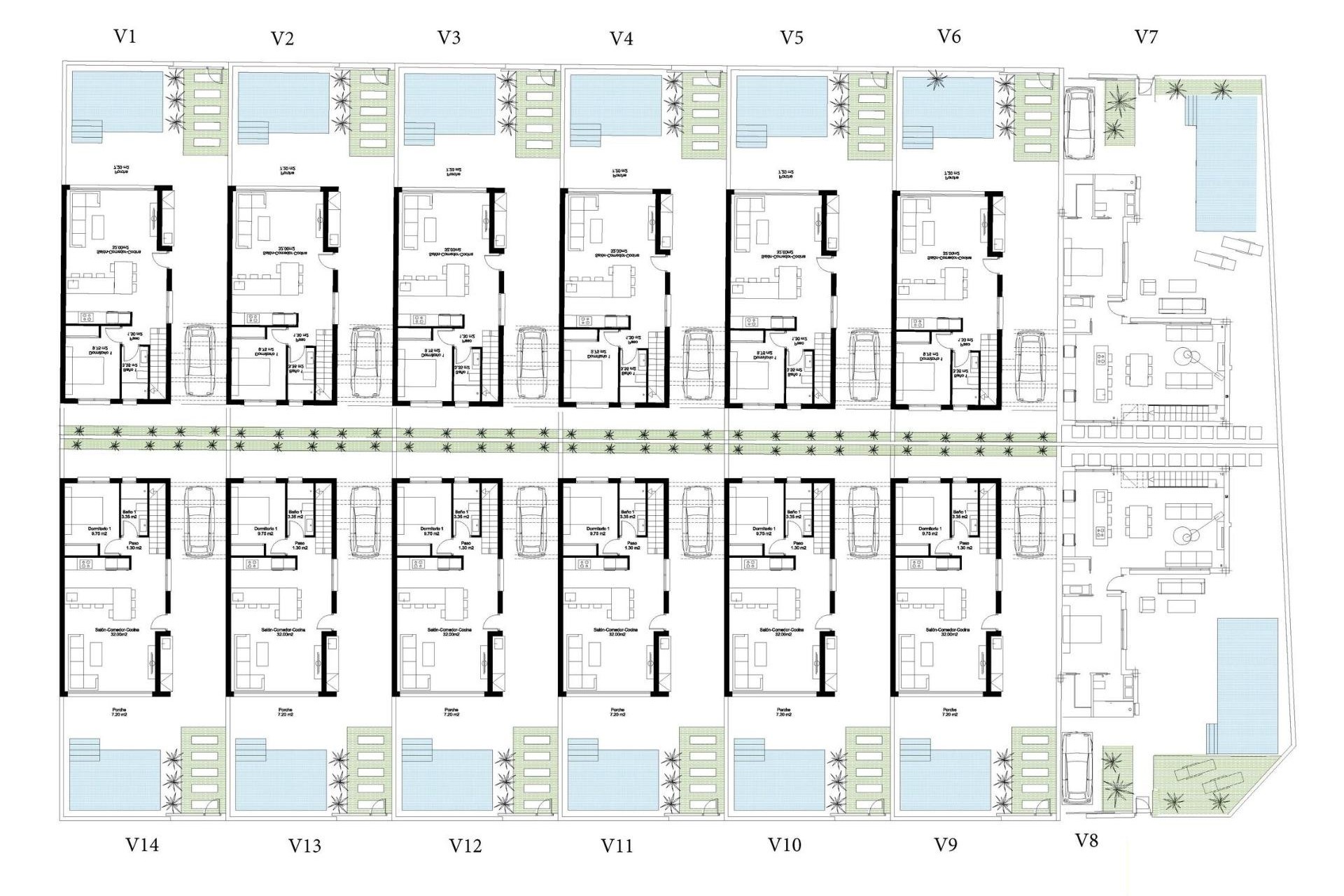
VILLAS DE OBRA NUEVA EN SAN JAVIER Proyecto de obra nueva de villas independientes en San Javier. Las villas de obra nueva se distribuyen en dos plantas más la amplia azotea con bonitas vistas de los alrededores. En la planta baja hay un luminoso salón con cocina americana y acceso a la terraza, un dormitorio doble con armario empotrado y un baño. En la primera planta hay 2 amplios dormitorios, uno con armario empotrado y el otro con vestidor y baño en suite. Jardín privado con la piscina y plaza de aparcamiento. San Javier está cerca de todos los servicios con fácil acceso a la playa, deportes acuáticos, tiendas y la red de transporte. Aquí se puede disfrutar de todas las instalaciones que San Javier tiene para ofrecer, como las tiendas locales, bares y restaurantes, así como estar cerca de centros comerciales, el aeropuerto de Murcia y todos los hermosos lugares que se encuentran a lo largo del Mar Menor. El aeropuerto de Corvera/Murcia está a 30 minutos y el aeropuerto de Alicante a 45 minutos.
Esta información que se proporciona aquí está sujeta a errores y no forma parte de ningún contrato. La oferta se puede cambiar o retirar sin previo aviso. Los precios no incluyen los costes de compra
¡La vida de tus sueños en España comienza con nuestra práctica guía! En 4 pasos, te ayudaremos a empezar bajo el sol español.
E-Mail info@gold-estates.be
Oficina en Bélgica: Moeistraat 20G, 9830 St-Martens-Latem
Oficina en España: Av. Marina Baixa 11, 03570 La Villa Joyosa, Alicante
© 2026 Gold Estates · Nota legal · Privacidad · Cookies · BIV Legale Informatie · Mapa Web
Diseño & CRM: Mediaelx
Encuentra tu hogar ideal guardando tus propiedades y recibiendo alertas sobre nuevas propiedades disponibles
Registrar nuevo usuarioEn primer lugar, gracias por contactarnos.
Hemos recibido su solicitud con respecto a la referencia de propiedad:GE2-31739. Uno de nuestros agentes se pondrá en contacto con usted lo antes posible.
En primer lugar, gracias por contactarnos.
Hemos recibido una solicitud de informe si baja el precio de la propiedad con la referencia: GE2-31739
Mientras tanto, eche un vistazo a esta selección de propiedades similares que podrían ser de su interés: