En primer lugar, gracias por contactarnos.
Hemos recibido su solicitud con respecto a la referencia de propiedad:GE2-11734. Uno de nuestros agentes se pondrá en contacto con usted lo antes posible.
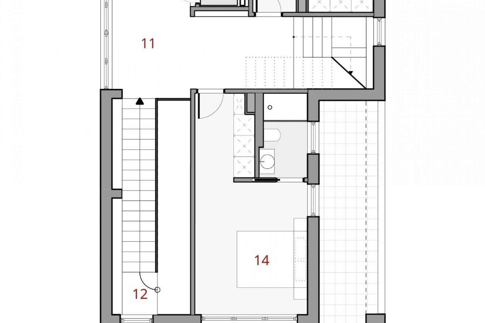
VILLAS DE OBRA NUEVA EN FINESTRAT Villas modernas de obra nueva en Finestrat. Villas con 4 dormitorios y 4 baños, cocina americana con salón, terraza con magníficas vistas sobre Benidorm, jardín privado con piscina y plaza de aparcamiento. El jardín lateral, adornado con cactus y grava blanca, conecta el Nivel 1 de acceso con la planta principal (Nivel O). El uso de césped natural en el resto del terreno se presenta como una característica adicional a través de un proyecto de paisajismo meticulosamente diseñado. Cada nivel se acentúa con un material que realza su esencia. El nivel O está revestido de piedra caliza natural, que proporciona soporte a toda la estructura. El Nivel 1, con su acabado monocapa y sus contraventanas de madera, protege la parte más íntima de la residencia. Por último, el Nivel 2, donde se encuentra el dormitorio principal, se abre a una amplia terraza y está acabado con monocapa texturizado en un tono cálido. La estética mediterránea se consigue mediante una perfecta fusión de tradición, arquitectura moderna y naturaleza. Finestrat se encuentra en la comarca de la Marina Baixa de la Costa Blanca, cerca de la vecina Benidorm y a unos 40 kilómetros de la ciudad de Alicante y del aeropuerto internacional. El pueblo está situado en la ladera del Puig Campana y ofrece hermosas vistas de las montañas, la costa y el mar Mediterráneo. Benidorm está a sólo cinco minutos en coche de las propiedades y ofrece todos los servicios que pueda necesitar, incluyendo tiendas, bares, restaurantes, supermercados, bancos, farmacias y varias escuelas privadas internacionales.