En primer lugar, gracias por contactarnos.
Hemos recibido su solicitud con respecto a la referencia de propiedad:GE2-68167. Uno de nuestros agentes se pondrá en contacto con usted lo antes posible.
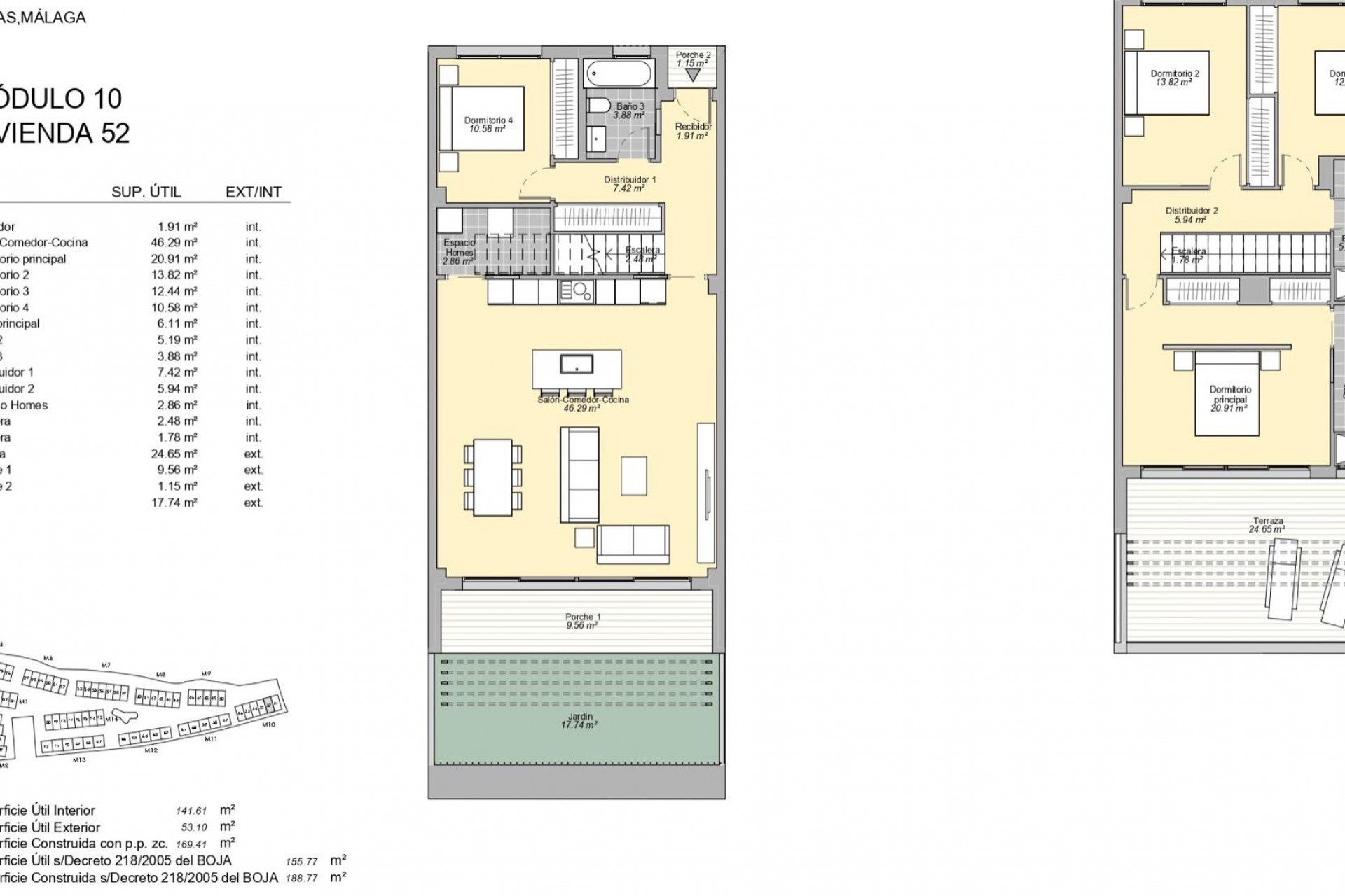
ADOSADOS DE OBRA NUEVA CON VISTAS AL MAR Y AL CAMPO DE GOLF Ubicada a mitad de camino entre la Cala de Mijas y Fuengirola, en primera línea del campo de golf El Chaparral y a tan solo 700 metros de la playa del mismo nombre. Conjunto residencial cerrado, compuesto por 80 adosados de 3 y 4 dormitorios, con un diseño moderno y funcional. Altas calidades y estancias espaciosas y diáfanas gracias a sus amplios ventanales que permiten la entrada de luz natural a cualquier hora del día, así como disfrutar de los mejores atardeceres en sus maravillosas terrazas. Además de contar con espacios ajardinados, de ocio y piscina exterior comunitaria dentro de la misma urbanización, podrás disfrutar del acceso al exclusivo centro deportivo y de ocio anexo a la promoción que cuenta con pistas de pádel, SPA, gimnasio, etc. Asimismo, la orientación sur y suroeste de sus viviendas le concede el lujo de aprovechar al máximo la luz natural. Estratégicamente situada entre Málaga (39 Km) y Marbella (23 Km), y a tan solo 6 Km de la concurrida y animada zona de la Cala de Mijas y el núcleo urbano de Fuengirola, que ofrecen una de las mejores propuestas gastronómicas y de ocio del entorno, donde poder disfrutar de múltiples deportes acuáticos y clubs de playa que salpican cada una de sus calas. La existencia de colegios internacionales, centros de salud y una amplia variedad de centros comerciales es un plus para una zona sólidamente establecida y altamente demandada.