En primer lugar, gracias por contactarnos.
Hemos recibido su solicitud con respecto a la referencia de propiedad:GE2-55639. Uno de nuestros agentes se pondrá en contacto con usted lo antes posible.
Email info@gold-estates.be
Oficina en Bélgica: Moeistraat 20G, 9830 St-Martens-Latem
Oficina en España: Av. Marina Baixa 11, 03570 La Villa Joyosa, Alicante
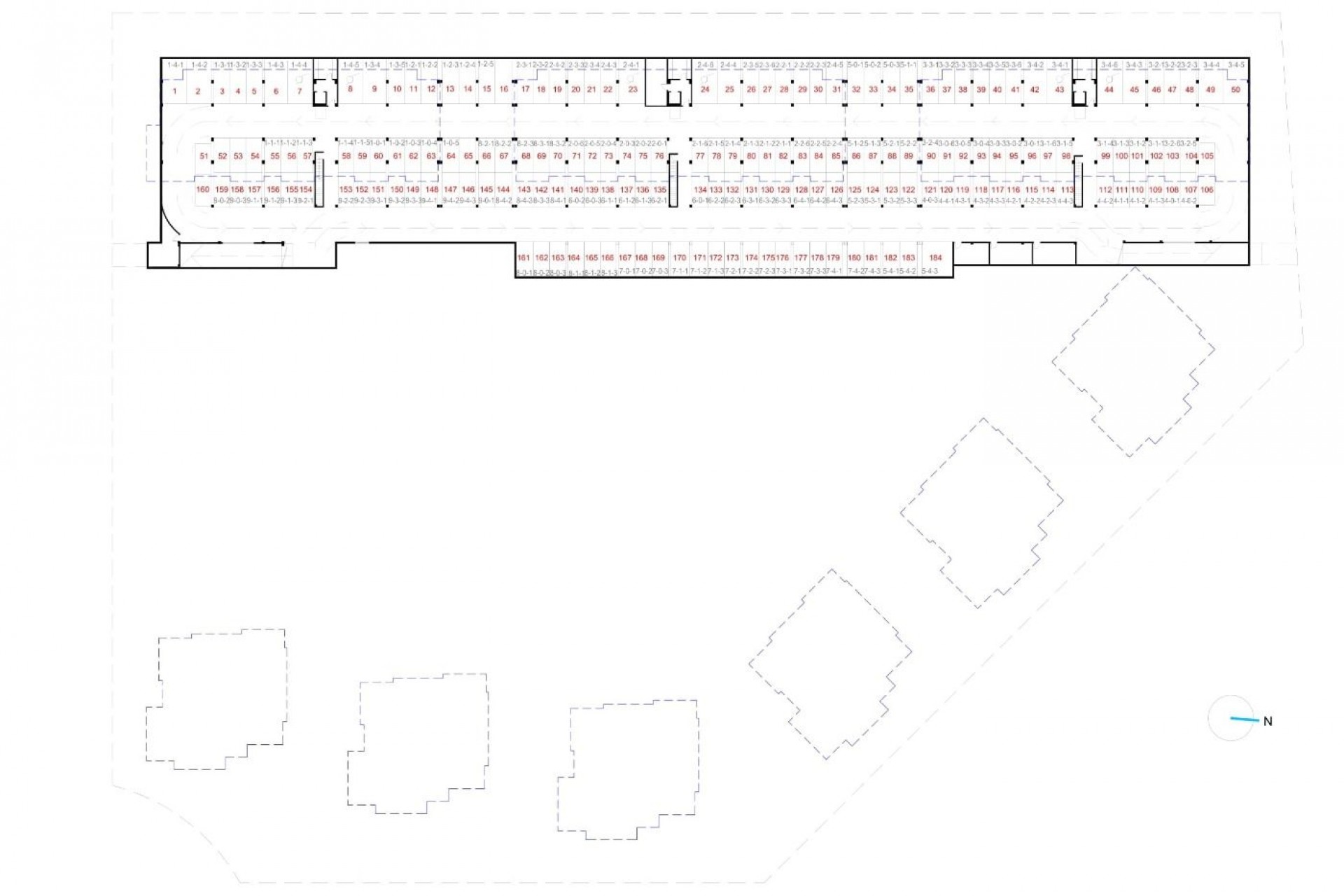
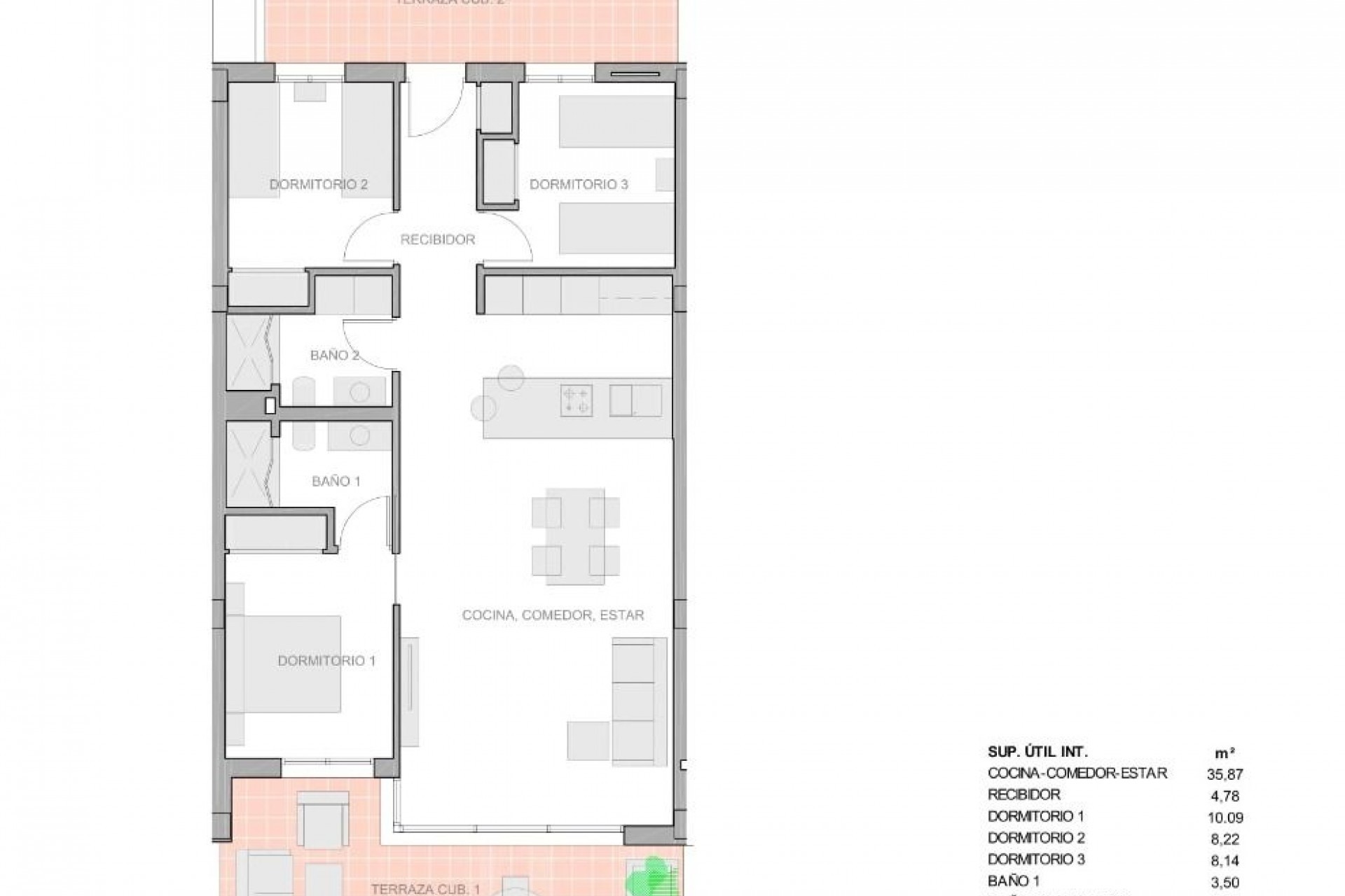
RESIDENCIAL DE OBRA NUEVA EN EL RASO, GUARDAMAR DEL SEGURA Residencial de obra nueva de apartamentos de estilo moderno en El Raso, Guardamar del Segura! Estos apartamentos disponen de 3 dormitorios, 2 baños, salón diáfano con cocina, planta baja con jardín privado, planta media con terraza y planta alta con solarium privado. Complejo con piscina, zonas verdes, greens de golf, Spa, parque infantil, maquinas biosaludables y zonas deportivas. Complejo situado en zona verde cerca del lago salado, todos los servicios, a poca distancia del centro comercial, bares y restaurantes. El Raso forma parte de Guardamar del Segura. Guardamar del Segura es un municipio situado en la Costa Blanca Sur. Con sus 11 kilómetros de playa natural y su gran pinar. Guardamar del Segura tiene un gran puerto con actividades durante todo el año, tiene un gran polideportivo con padel, tenis, fútbol y una gran piscina climatizada que funciona todo el año. También tiene una biblioteca donde hay wifi gratuito y ordenadores. Guardamar del Segura se encuentra a tan solo 20km del aeropuerto de Alicante - Elche (El Altet), donde hay numerosos vuelos diarios con conexiones a las principales ciudades europeas, debido a la demanda turística de la Costa Blanca.
Esta información que se proporciona aquí está sujeta a errores y no forma parte de ningún contrato. La oferta se puede cambiar o retirar sin previo aviso. Los precios no incluyen los costes de compra
¡La vida de tus sueños en España comienza con nuestra práctica guía! En 4 pasos, te ayudaremos a empezar bajo el sol español.
E-Mail info@gold-estates.be
Oficina en Bélgica: Moeistraat 20G, 9830 St-Martens-Latem
Oficina en España: Av. Marina Baixa 11, 03570 La Villa Joyosa, Alicante
© 2026 Gold Estates · Nota legal · Privacidad · Cookies · BIV Legale Informatie · Mapa Web
Diseño & CRM: Mediaelx
Encuentra tu hogar ideal guardando tus propiedades y recibiendo alertas sobre nuevas propiedades disponibles
Registrar nuevo usuarioEn primer lugar, gracias por contactarnos.
Hemos recibido su solicitud con respecto a la referencia de propiedad:GE2-55639. Uno de nuestros agentes se pondrá en contacto con usted lo antes posible.
En primer lugar, gracias por contactarnos.
Hemos recibido una solicitud de informe si baja el precio de la propiedad con la referencia: GE2-55639
Mientras tanto, eche un vistazo a esta selección de propiedades similares que podrían ser de su interés: