En primer lugar, gracias por contactarnos.
Hemos recibido su solicitud con respecto a la referencia de propiedad:GE2-55441. Uno de nuestros agentes se pondrá en contacto con usted lo antes posible.
Email info@gold-estates.be
Oficina en Bélgica: Moeistraat 20G, 9830 St-Martens-Latem
Oficina en España: Av. Marina Baixa 11, 03570 La Villa Joyosa, Alicante
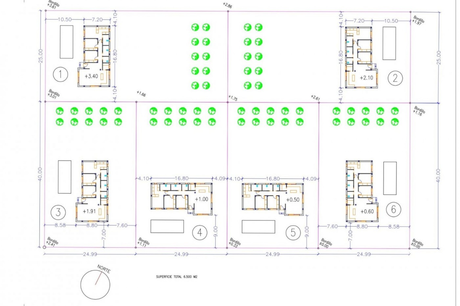
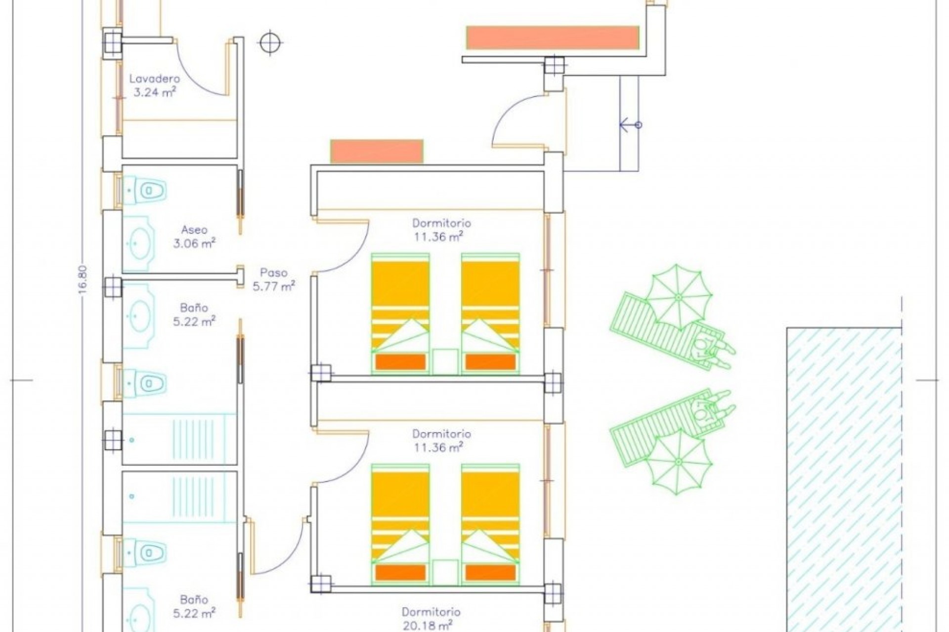
VILLAS DE OBRA NUEVA EN CALASPARRA, MURCIA Proyecto de obra nueva de bonitas villas en Calasparra, Murcia. Complejo de lujo de 6 villas independientes con gran piscina privada para cada propiedad. Las villas están diseñadas en una sola planta con zonas de terrazas a su alrededor y disponen de 3 dormitorios, incluyendo vestidor en el dormitorio principal, 2 baños y un aseo. Estas villas se construyen en parcelas de 1000 M2. Calasparra está situado en una región montañosa en el noroeste de la provincia de Murcia. En contraste con la aridez del terreno que la rodea, es el lugar ideal para disfrutar de la tranquilidad y la paz que nos ofrece la naturaleza. Su gastronomía, sus rincones, su clima y sus gentes, hacen que la visita a esta localidad sea obligatoria. Calasparra, rodeada por cuatro ríos diferentes y dos pantanos, posee uno de los paisajes naturales más sorprendentes del noroeste. Te sorprenderán sus pinturas rupestres, sus yacimientos arqueológicos, su cultura, sus deportes al aire libre y su arroz, que probablemente sea el mejor que hayas probado nunca.
Esta información que se proporciona aquí está sujeta a errores y no forma parte de ningún contrato. La oferta se puede cambiar o retirar sin previo aviso. Los precios no incluyen los costes de compra
¡La vida de tus sueños en España comienza con nuestra práctica guía! En 4 pasos, te ayudaremos a empezar bajo el sol español.
E-Mail info@gold-estates.be
Oficina en Bélgica: Moeistraat 20G, 9830 St-Martens-Latem
Oficina en España: Av. Marina Baixa 11, 03570 La Villa Joyosa, Alicante
© 2026 Gold Estates · Nota legal · Privacidad · Cookies · BIV Legale Informatie · Mapa Web
Diseño & CRM: Mediaelx
Encuentra tu hogar ideal guardando tus propiedades y recibiendo alertas sobre nuevas propiedades disponibles
Registrar nuevo usuarioEn primer lugar, gracias por contactarnos.
Hemos recibido su solicitud con respecto a la referencia de propiedad:GE2-55441. Uno de nuestros agentes se pondrá en contacto con usted lo antes posible.
En primer lugar, gracias por contactarnos.
Hemos recibido una solicitud de informe si baja el precio de la propiedad con la referencia: GE2-55441
Mientras tanto, eche un vistazo a esta selección de propiedades similares que podrían ser de su interés: