En primer lugar, gracias por contactarnos.
Hemos recibido su solicitud con respecto a la referencia de propiedad:GE2-96630. Uno de nuestros agentes se pondrá en contacto con usted lo antes posible.
Email info@gold-estates.be
Oficina en Bélgica: Moeistraat 20G, 9830 St-Martens-Latem
Oficina en España: Av. Marina Baixa 11, 03570 La Villa Joyosa, Alicante
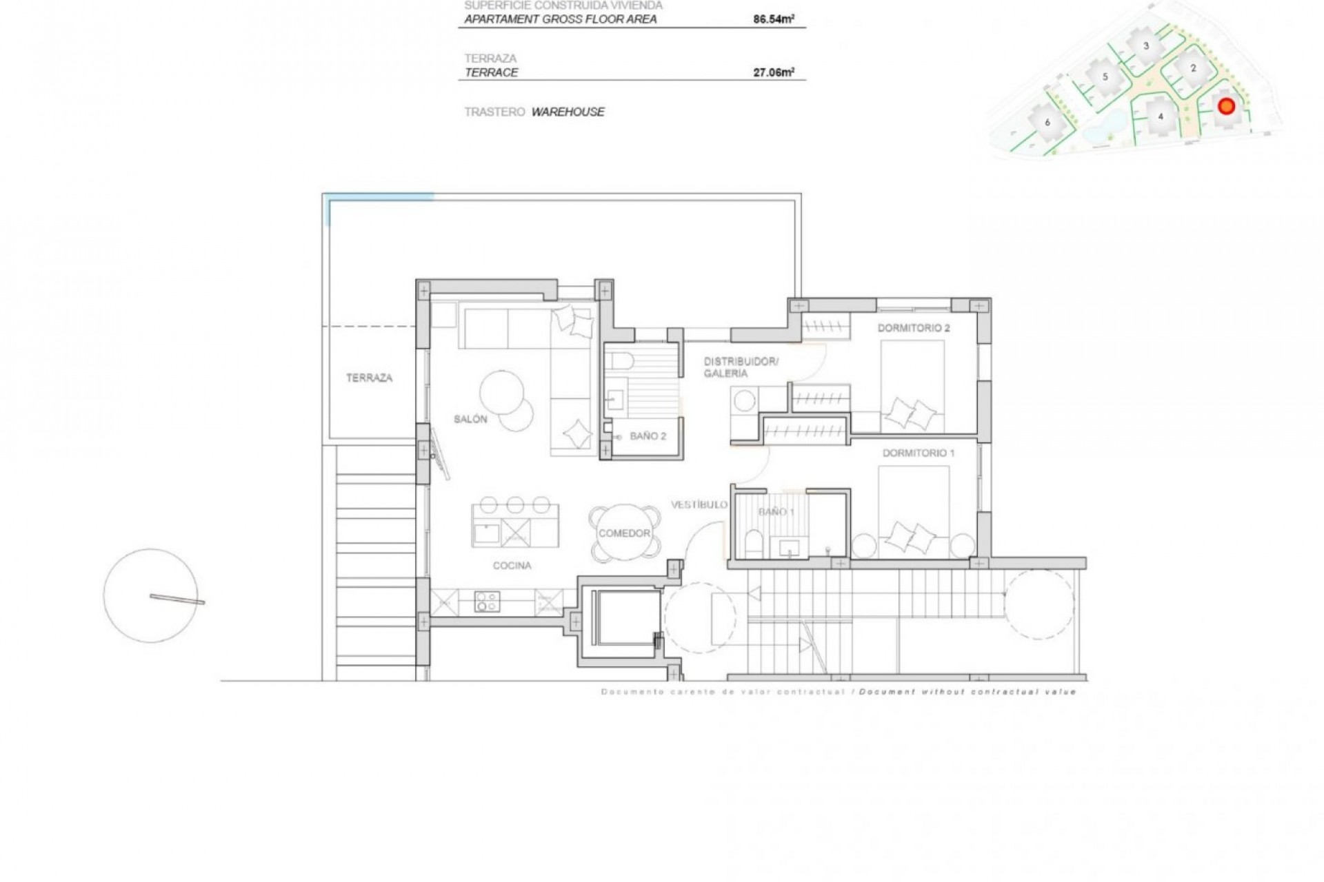
APARTAMENTOS DE OBRA NUEVA EN COMPLEJO PRIVADO EN LA PROVINCIA DE MURCIA Complejo residencial de nueva construcción de 6 bloques, un total de 42 apartamentos. Preciosos apartamentos de 3 y 2 dormitorios y 2 baños con vistas al gran lago y zonas verdes de este gran complejo de lujo. Apartamentos en planta baja con jardín privado, apartamentos en planta alta con solarium privado. El complejo cuenta con una piscina comunitaria y todos los apartamentos tienen una plaza de aparcamiento y un trastero. Situado en un complejo privado y cerrado, con una entrada de acceso principal y seguridad 24 horas. El complejo está diseñado en torno a una impresionante zona verde de 126.000 m2. Cuenta con rutas de senderismo y ciclismo, instalaciones deportivas, pistas de pádel y tenis, un campo de minigolf, jardines, parques para perros, zonas de ocio, casa club.... También en la zona central se encuentra la joya del complejo, un lago artificial cristalino de casi 17.000m2 de superficie de agua, rodeado de playas de arena blanca y palmeras, que trae un trozo del Caribe a la Región de Murcia. Hay 2 islas en el lago, una de ellas tiene su propio bar, también hay "Chiringuitos de playa" repartidos por el lago. El complejo está estratégicamente situado a menos de 4 km de la playa y de la localidad de Los Alcázares, donde se pueden practicar diversos deportes náuticos, rodeado de varios campos de golf y de la ciudad de Cartagena a menos de 15 minutos en coche y a 22 km del aeropuerto de Murcia, teniendo por tanto una amplia oferta cultural, gastronómica y deportiva al alcance.
Esta información que se proporciona aquí está sujeta a errores y no forma parte de ningún contrato. La oferta se puede cambiar o retirar sin previo aviso. Los precios no incluyen los costes de compra
¡La vida de tus sueños en España comienza con nuestra práctica guía! En 4 pasos, te ayudaremos a empezar bajo el sol español.
E-Mail info@gold-estates.be
Oficina en Bélgica: Moeistraat 20G, 9830 St-Martens-Latem
Oficina en España: Av. Marina Baixa 11, 03570 La Villa Joyosa, Alicante
© 2026 Gold Estates · Nota legal · Privacidad · Cookies · BIV Legale Informatie · Mapa Web
Diseño & CRM: Mediaelx
Encuentra tu hogar ideal guardando tus propiedades y recibiendo alertas sobre nuevas propiedades disponibles
Registrar nuevo usuarioEn primer lugar, gracias por contactarnos.
Hemos recibido su solicitud con respecto a la referencia de propiedad:GE2-96630. Uno de nuestros agentes se pondrá en contacto con usted lo antes posible.
En primer lugar, gracias por contactarnos.
Hemos recibido una solicitud de informe si baja el precio de la propiedad con la referencia: GE2-96630
Mientras tanto, eche un vistazo a esta selección de propiedades similares que podrían ser de su interés: