En primer lugar, gracias por contactarnos.
Hemos recibido su solicitud con respecto a la referencia de propiedad:GE2-11774. Uno de nuestros agentes se pondrá en contacto con usted lo antes posible.
Email info@gold-estates.be
Oficina en Bélgica: Moeistraat 20G, 9830 St-Martens-Latem
Oficina en España: Av. Marina Baixa 11, 03570 La Villa Joyosa, Alicante
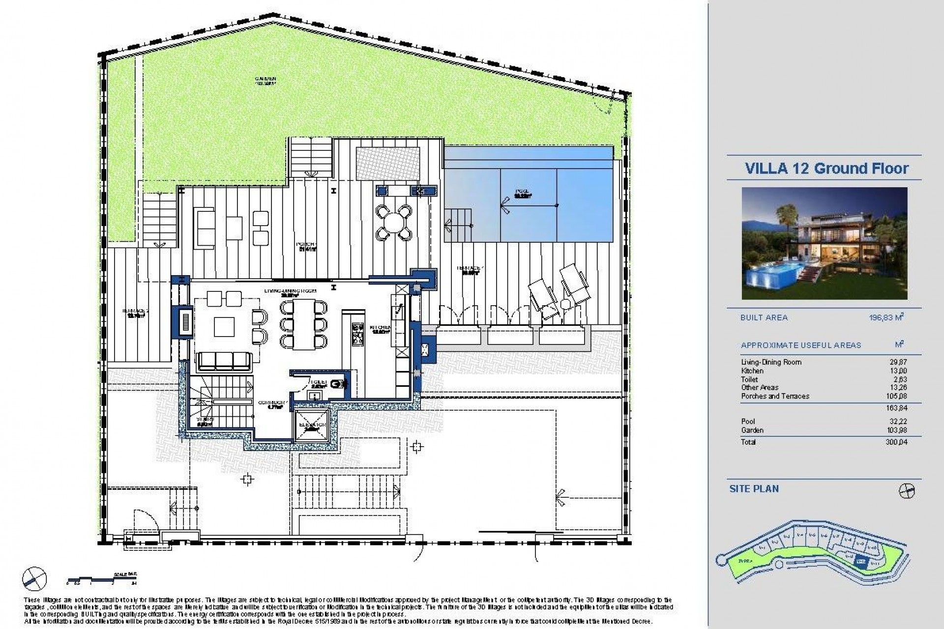
EXCLUSIVAS VILLAS DE LUJO ECOLÓGICAS EN LA COSTA DEL SOL 13 exclusivas villas de lujo, ecológicas y en contacto con la naturaleza. Cuenta con cocina totalmente equipada, domótica, solarium, garaje, sótano, y vistas al mar y la montaña. Urbanización cerrada: más de 5.000 m2 de espacios verdes formados por jardines mediterráneos con pérgolas, piscinas y terrazas. 500 m2 de piscinas, estanques, zona co-living, zonas de descanso y relax, miradores y un oasis natural rodeado de bosques, árboles frutales y flores. Con una distendida y elegante casa club, además de huertos orgánicos privados dentro de los jardines comunales atendidos por los propios jardineros de la comunidad y cuya producción natural será entregada a los residentes. A medio camino entre los aeropuertos de Málaga y de Gibraltar, ambos accesibles a poco más de 40 minutos en coche. Rodeada de los mejores campos de golf de la Costa del Sol. Situada además a solo 10 minutos en coche de la playa, con sus chiringuitos y distinguidos clubs, y a la misma distancia de Puerto Banús, uno de los lugares más exclusivos del litoral mediterráneo, donde encontrarás tiendas de lujo, elegantes restaurantes y uno de los puertos deportivos más famosos de Europa, en el que amarran los yates más exclusivos. De entre todo el litoral mediterráneo, las playas, ciudades y campos de golf de la Costa del Sol son las únicas en las que disfrutar de más de 320 días de sol al año y una temperatura media anual de 20º C. Un lugar donde disfrutar del verdadero estilo de vida mediterráneo.
Esta información que se proporciona aquí está sujeta a errores y no forma parte de ningún contrato. La oferta se puede cambiar o retirar sin previo aviso. Los precios no incluyen los costes de compra
¡La vida de tus sueños en España comienza con nuestra práctica guía! En 4 pasos, te ayudaremos a empezar bajo el sol español.
E-Mail info@gold-estates.be
Oficina en Bélgica: Moeistraat 20G, 9830 St-Martens-Latem
Oficina en España: Av. Marina Baixa 11, 03570 La Villa Joyosa, Alicante
© 2026 Gold Estates · Nota legal · Privacidad · Cookies · BIV Legale Informatie · Mapa Web
Diseño & CRM: Mediaelx
Encuentra tu hogar ideal guardando tus propiedades y recibiendo alertas sobre nuevas propiedades disponibles
Registrar nuevo usuarioEn primer lugar, gracias por contactarnos.
Hemos recibido su solicitud con respecto a la referencia de propiedad:GE2-11774. Uno de nuestros agentes se pondrá en contacto con usted lo antes posible.
En primer lugar, gracias por contactarnos.
Hemos recibido una solicitud de informe si baja el precio de la propiedad con la referencia: GE2-11774
Mientras tanto, eche un vistazo a esta selección de propiedades similares que podrían ser de su interés: