Nouvelle construction » Villa » Aspe »

Villa · Nouvelle construction Poligono 19 · Aspe · Alicante · Costa Blanca South - Inland

Villa · Nouvelle construction Poligono 19 · Aspe · Alicante · Costa Blanca South - Inland

Les caractéristiques

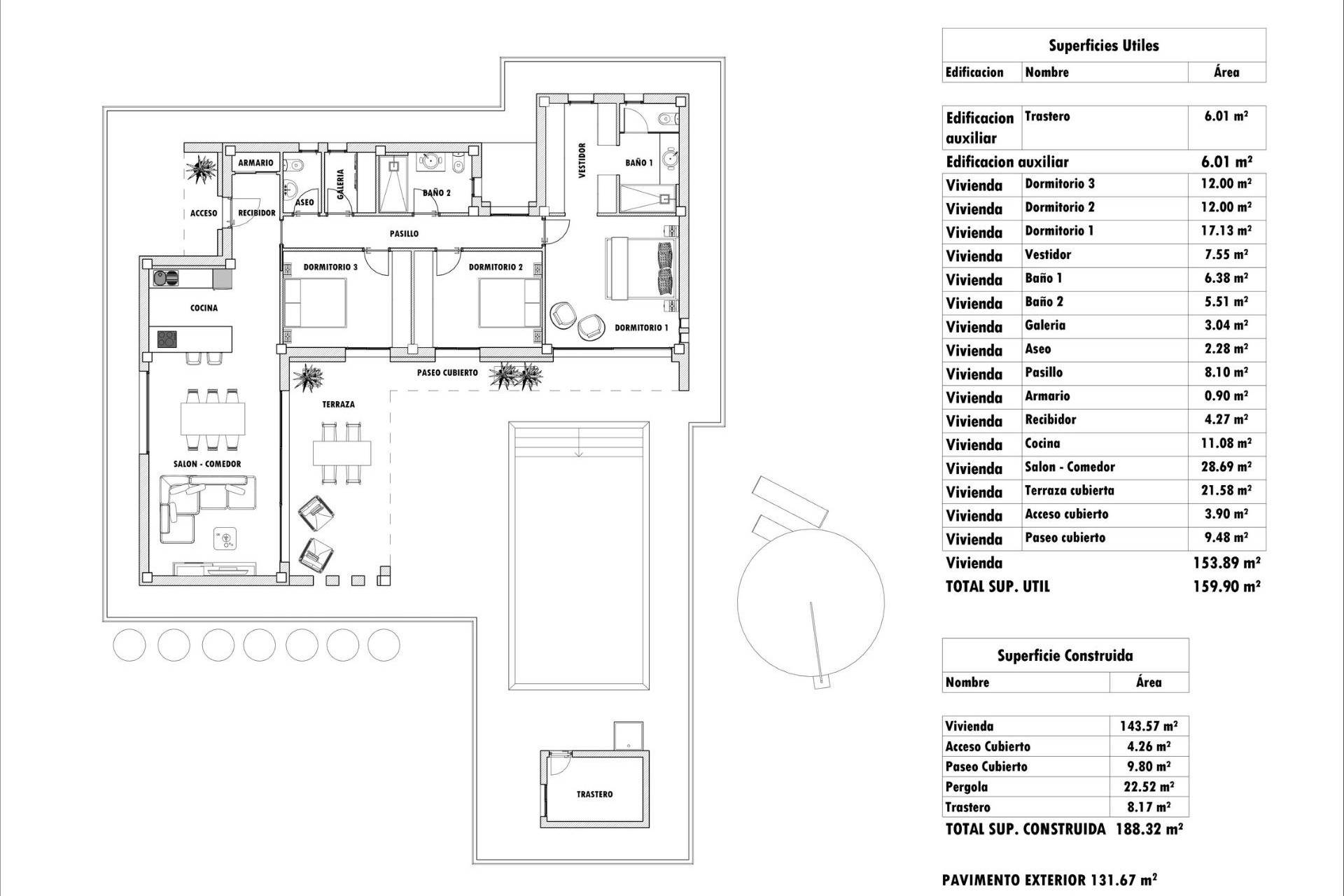
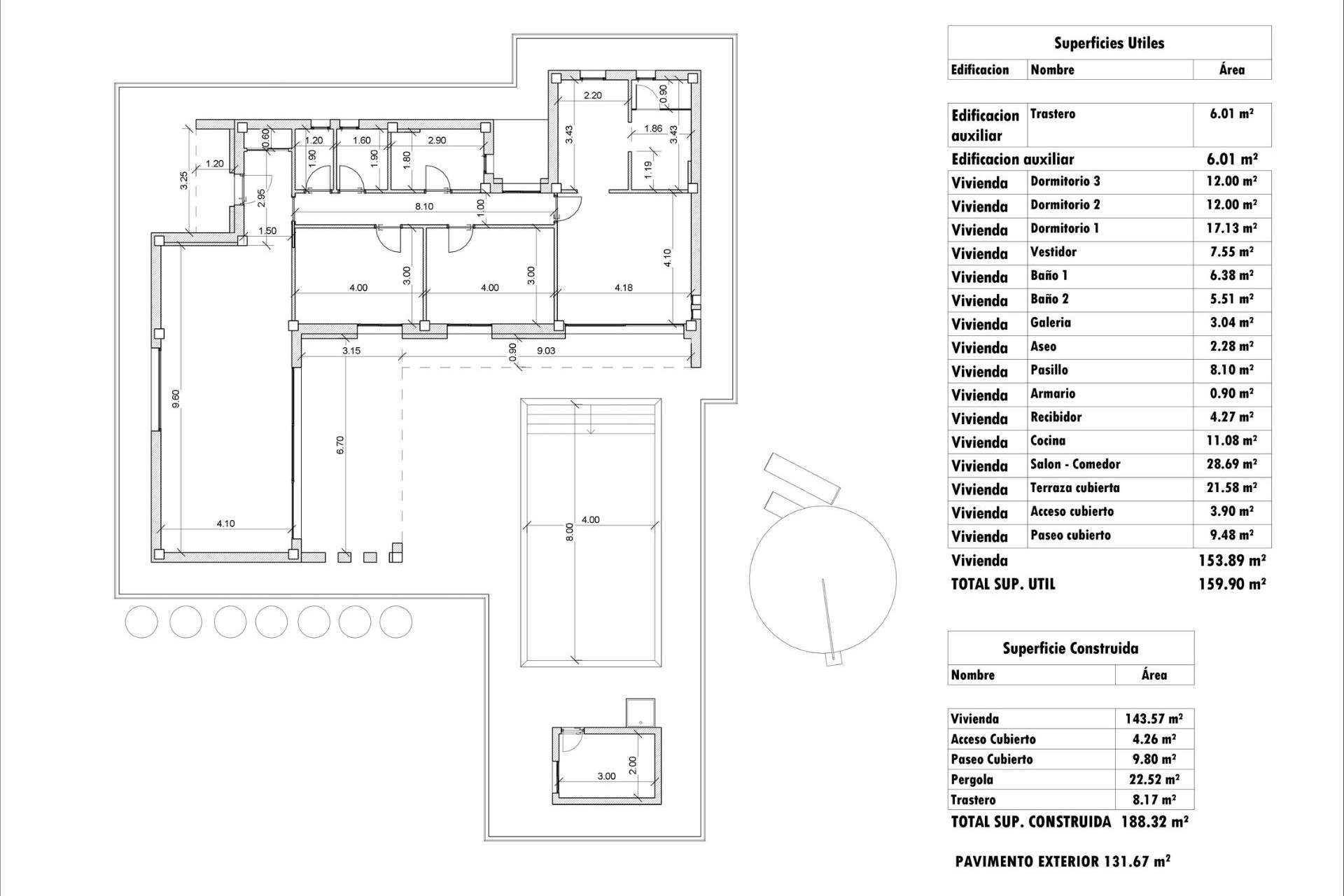
  • Construit 188m2
  • Intrigue 13.172m2
  • Chambres 3
  • Salles de bain 3
  • Piscine Oui
·    Terrasse : 36 m².
·    Localisation : Montagne
·    Beach: 40000 Meters
·    Piscine privée
·    Fermé
·    Nombre de places de stationnement : 1
·    Près des écoles
·    Climatisation : Pré-installée
·    Chambres doubles : 3
·    Jardin
·    Sous-construction / Sous-sol

La description

Emplacement

Faire une enquête

Responsable du traitement : Costa Blanca Flamenca SL, Finalité du traitement : Gestion et contrôle des services offerts via le site Web de services immobiliers, Envoi d'informations via des newsletters et autres, Base légale : Consentement, Destinataires : Les données ne seront pas transférées, sauf pour l'élaboration de la comptabilité, Droits des personnes concernées : Accéder, rectifier et supprimer les données, demander la portabilité des mêmes, s'opposer au traitement et demander la limitation de celui-ci, Origine des données : La personne concernée elle-même, Informations supplémentaires : Vous pouvez consulter les informations supplémentaires et détaillées sur la protection des données ici.

Espagne sage

Perdez-vous en Espagne avec notre guide routier.

Votre vie de rêve en Espagne commence avec notre guide pratique ! En 4 étapes, nous vous guiderons sous le soleil espagnol.

Télécharger maintenant
WhatsApp
search