Tout d’abord, merci de nous contacter.
Nous avons reçu votre demande concernant la référence du bien:CL-90560. Un de nos agents vous contactera dans les meilleurs délais.
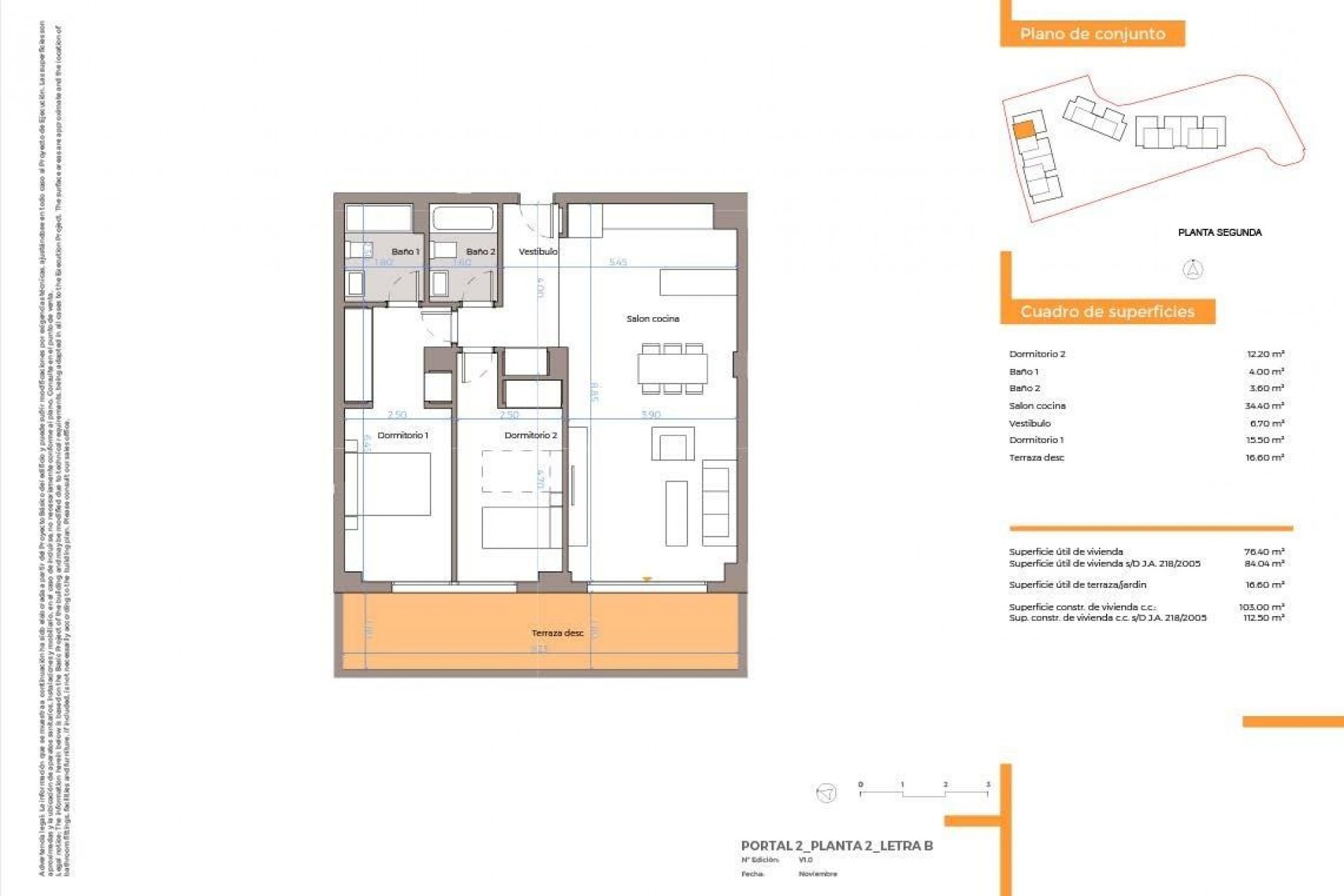
Appartements neufs avec vue sur la mer à La Cala de Mijas Complexe résidentiel exclusif sur la Costa del Sol Découvrez cette communauté fermée moderne de 72 appartements neufs à La Cala de Mijas, l'un des quartiers les plus prisés de la Costa del Sol. Avec son charme unique, ses plages de sable doré, ses terrains de golf et son style de vie animé, La Cala offre un équilibre parfait entre détente et loisirs. Le complexe est idéalement situé à seulement 150 mètres de la plage de Playamarina et à 10 minutes en voiture de Fuengirola. Des maisons modernes avec vue sur la mer Ce projet spectaculaire propose des appartements de 2, 3 et 4 chambres à coucher, spacieux et conçus pour offrir confort et fonctionnalité. De nombreuses maisons bénéficient d'une vue imprenable sur la mer, tandis que les unités du rez-de-chaussée sont dotées de jardins privés et les penthouses de vastes terrasses idéales pour la vie en plein air. Toutes les propriétés comprennent au moins une place de parking privée et un débarras. Caractéristiques et finitions de haute qualité Chaque détail a été soigneusement pensé pour garantir un confort et une qualité de vie optimaux : Cuisines entièrement équipées avec appareils électroménagers Production d'eau chaude via un système aérothermique Climatisation par conduits Porte d'entrée blindée Large choix de personnalisation pour adapter chaque logement à vos goûts Espaces communs exceptionnels Le complexe offre des installations communes de première classe conçues pour les loisirs et le bien-être : Jardins paysagers avec végétation méditerranéenne Grande piscine Salle de sport entièrement équipée Salle sociale et gastronomique pour les résidents Emplacement privilégié avec une excellente connectivité La Cala de Mijas bénéficie d'un emplacement privilégié avec un accès rapide aux services essentiels et aux loisirs : Plage de Playamarina : 150 m Club de golf Chaparral : 2 km Fuengirola : 10 km Marbella : 23 km Puerto Banús : 30 km Aéroport international de Malaga : 25 km Gare María Zambrano de Malaga : 40 km La région offre des supermarchés, des centres de santé, des pharmacies, des restaurants et des centres commerciaux, tous accessibles en quelques minutes en voiture. Sa connexion directe à l'autoroute A-7 et sa proximité avec l'autoroute à péage AP-7 garantissent une excellente connectivité le long de la Costa del Sol. Vivez le style de vie méditerranéen Que ce soit comme résidence permanente, maison de vacances ou investissement, ces appartements à La Cala de Mijas représentent une occasion unique de profiter du meilleur de la Costa del Sol, alliant un design moderne, une vue sur la mer et des équipements imbattables. Contactez-nous dès aujourd'hui pour planifier une visite et réserver votre nouvelle maison à La Cala de Mijas.