Tout d’abord, merci de nous contacter.
Nous avons reçu votre demande concernant la référence du bien:GE2-85221. Un de nos agents vous contactera dans les meilleurs délais.
Email info@gold-estates.be
Bureau en Belgique: Moeistraat 22A, 983 St-Martens-Latem
Bureau en Espagne: Calle Valentia, 7, 03570 La Vila Joiosa, Alicante
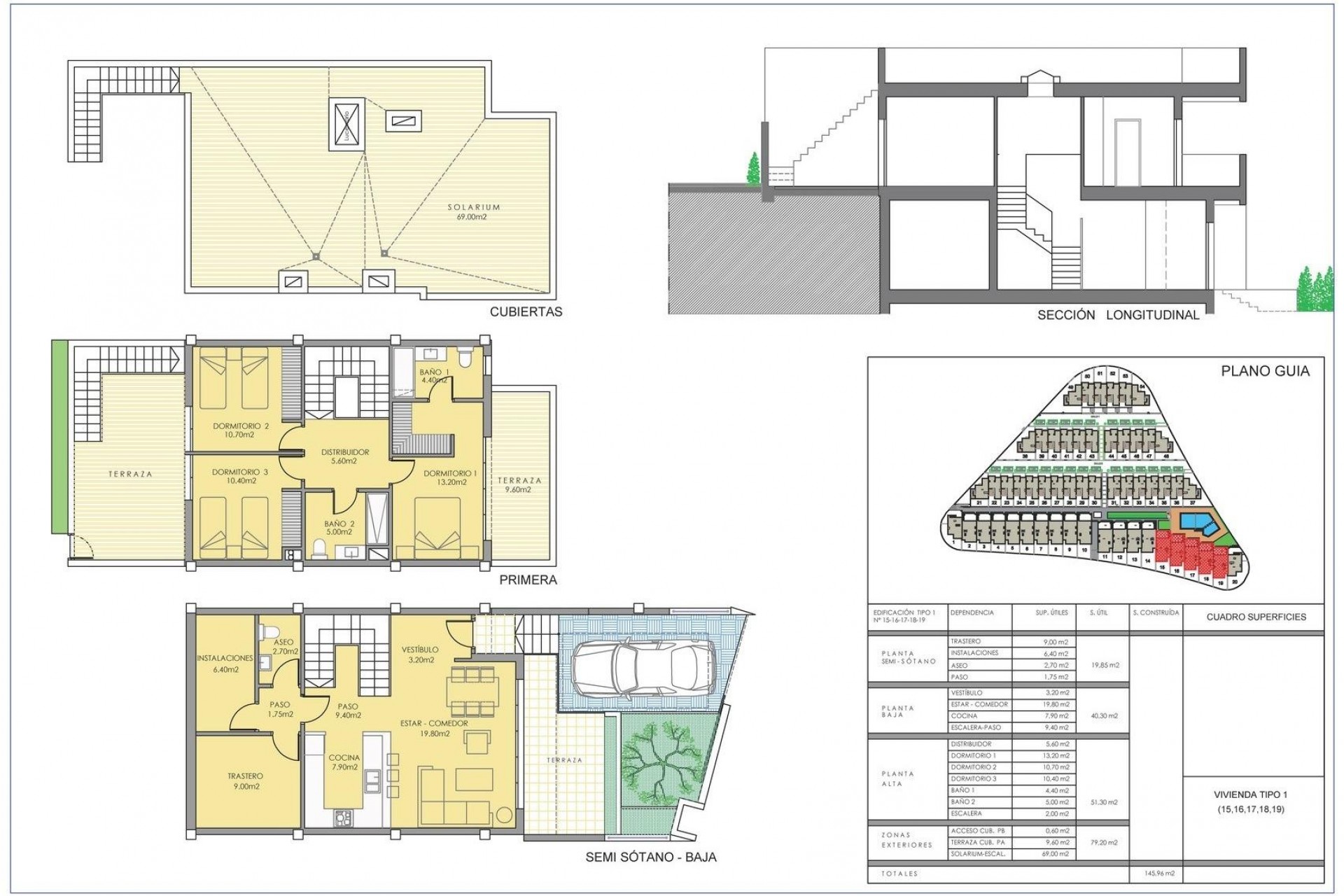
NOUVELLES MAISONS DE VILLE À MONFORTE DEL CID Nouvelle construction de 54 maisons de ville et villas jumelées à Monforte del Cid. Propriétés spacieuses avec 3 chambres, 2 salles de bains et 1 toilette. Toutes les propriétés disposent d'un jardin privé sur le terrain, d'un solarium et d'une place de parking. Les maisons sont équipées d'un système aérothermique complet, un système d'énergie renouvelable qui tire parti de l'énergie environnementale externe. Chaque propriété a été méticuleusement conçue pour vous offrir un maximum de confort et de fonctionnalité. De plus, les intérieurs spacieux s'harmonisent parfaitement avec les espaces extérieurs. Imaginez vous détendre sur votre propre terrasse tout en admirant le terrain de golf et en profitant de la tranquillité que vous méritez. Les résidents de cette résidence bénéficieront d'un accès exclusif à un large éventail d'équipements de première classe. Profitez d'une baignade rafraîchissante dans la piscine commune, gardez votre corps en forme dans le gymnase entièrement équipé, et profitez d'une baignade rafraîchissante. Plongez dans un mode de vie luxueux et profitez de la sérénité que seul l'Alenda Golf peut vous offrir. Ces bungalows modernes et élégants sont stratégiquement situés dans un cadre naturel magnifique, entourés d'une végétation luxuriante et offrant des vues panoramiques sur le terrain de golf. Urbanisation privée proche des principales villes de la province d'Alicante, à 15 minutes en voiture d'Elche et d'Alicante, ainsi que de l'aéroport et des meilleures plages. Le développement est situé dans un cadre paisible à proximité du terrain de golf Alenda à Monforte del Cid.
Cette information donnée ici est sujette à des erreurs et ne fait partie d'aucun contrat. L'offre peut être modifiée ou retirée sans préavis. Les prix n'incluent pas les coûts d'achat
Votre vie de rêve en Espagne commence avec notre guide pratique ! En 4 étapes, nous vous guiderons sous le soleil espagnol.
E-Mail info@gold-estates.be
Bureau en Belgique: Moeistraat 22A, 983 St-Martens-Latem
Bureau en Espagne: Calle Valentia, 7, 03570 La Vila Joiosa, Alicante
© 2026 Gold Estates · Mentions légales · Intimité · Cookies · BIV Legale Informatie · Plan du site
Conception & CRM: Mediaelx
Trouvez votre maison de rêve en sauvegardant vos propriétés et en recevant des alertes sur les nouvelles propriétés disponibles
Enregistrer un nouvel utilisateurTout d’abord, merci de nous contacter.
Nous avons reçu votre demande concernant la référence du bien:GE2-85221. Un de nos agents vous contactera dans les meilleurs délais.
Tout d’abord, merci de nous contacter.
Nous avons reçu une demande de rapport si vous abaissez le prix de la propriété avec la référence: GE2-85221
En attendant, jetez un œil à cette sélection de propriétés similaires qui pourraient vous intéresser: