Tout d’abord, merci de nous contacter.
Nous avons reçu votre demande concernant la référence du bien:GE2-26925. Un de nos agents vous contactera dans les meilleurs délais.
Email info@gold-estates.be
Bureau en Belgique: Moeistraat 20G, 9830 St-Martens-Latem
Bureau en Espagne: Av. Marina Baixa 11, 03570 La Villa Joyosa, Alicante
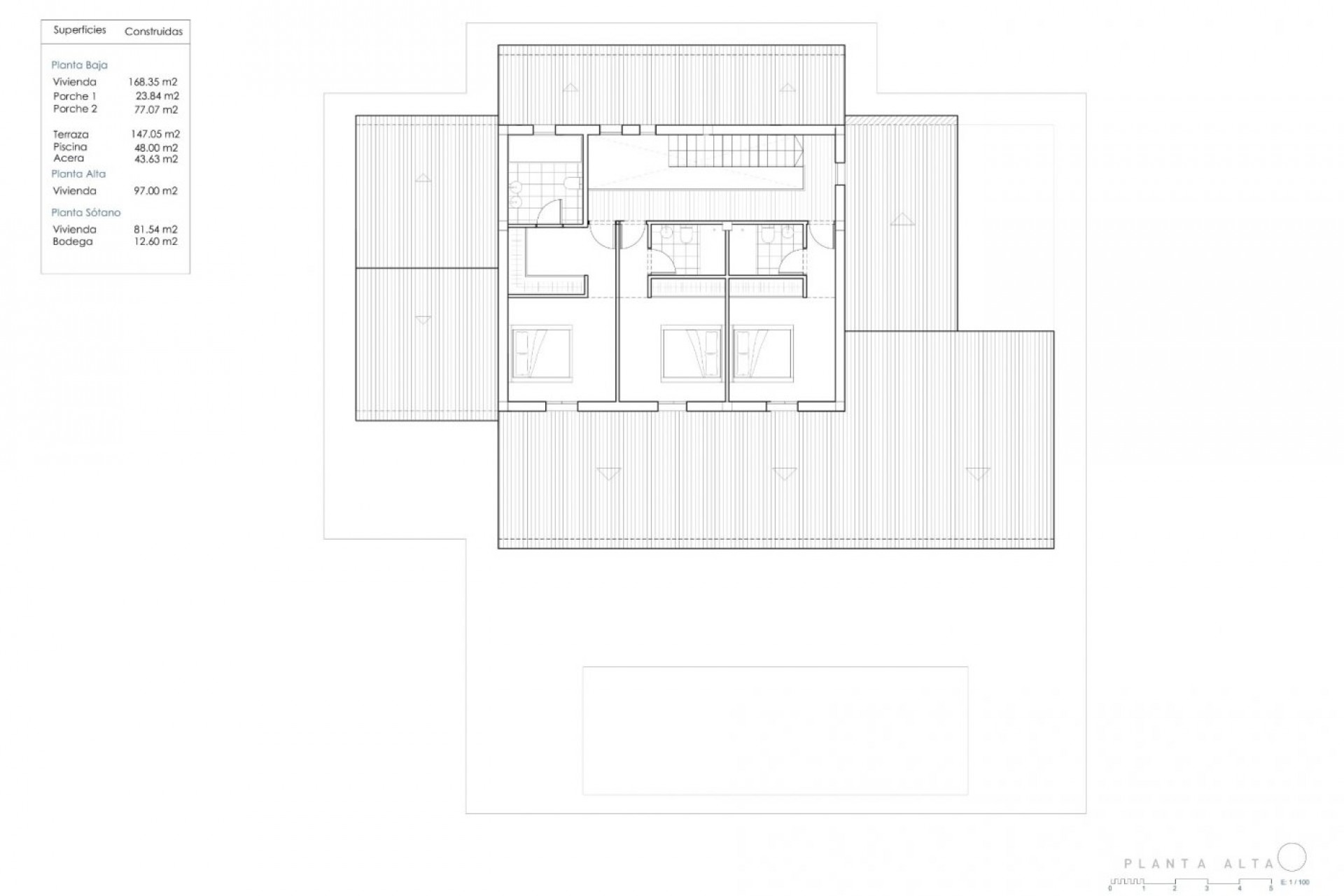
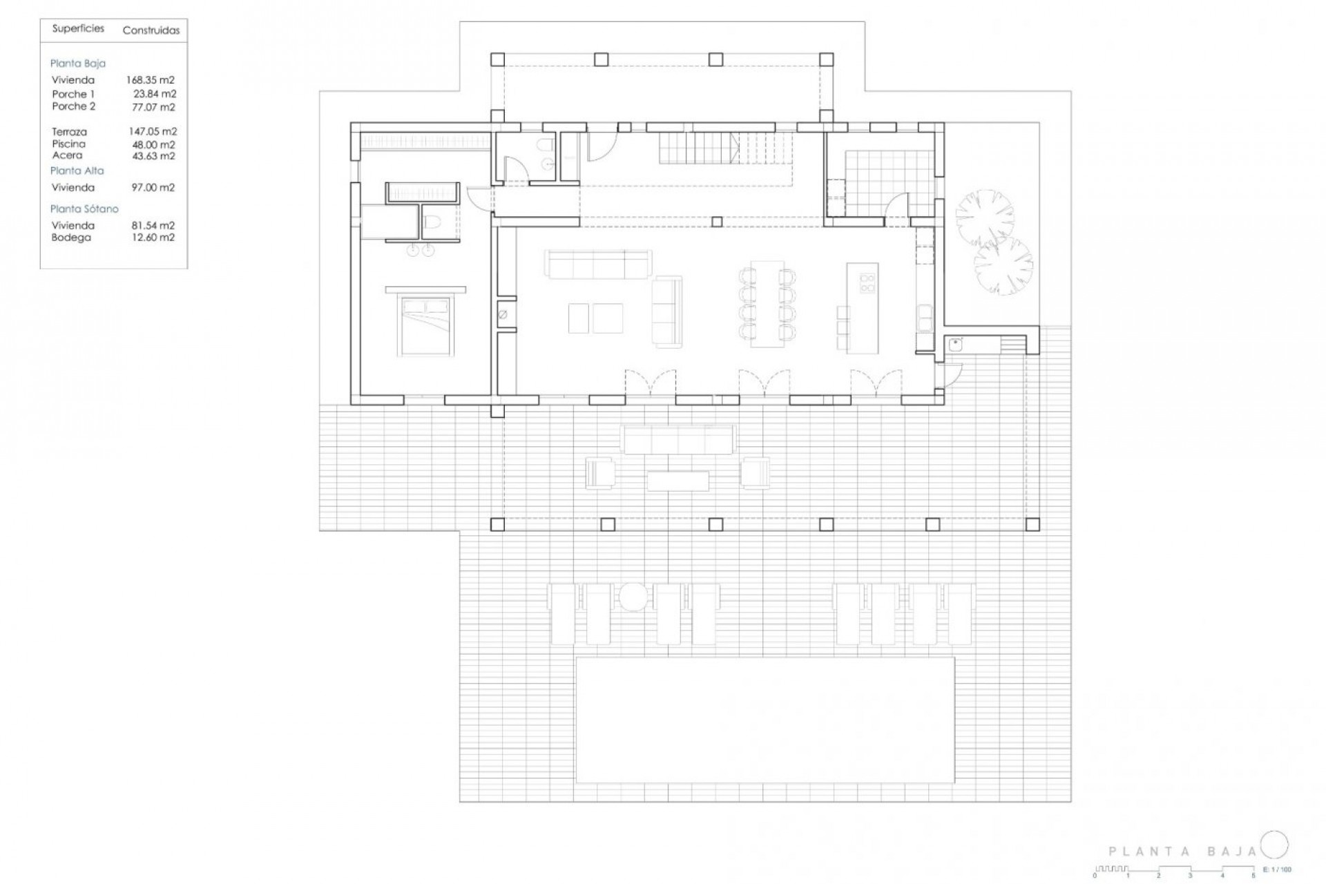
Villa nouvellement construite à Teulada avec vue sur les montagnes Au rez-de-chaussée, nous trouvons un grand salon-salle à manger et une cuisine ouverte, une chambre principale avec dressing et salle de bains, une terrasse avant avec accès à la piscine. Au premier étage se trouve 3 chambres avec placards, 3 salles de bains en suite. En outre, vous avez ici un sous-sol de 81m2 avec une cave à vin. La villa sera construite avec des matériaux de haute qualité. La cuisine sera choisie par le client, les armoires de cuisine, le plan de travail et les appareils électroménagers. Climatisation avec système de contrôle du climat (condensation) dans les salons et les chambres. Marque Mitsubishi. La piscine sera construite avec une douche extérieure douche extérieure (raccordement eau chaude/eau froide). Portail d'entrée automatique pour les voitures avec télécommande et porte piétonne automatique. Jardin à choisir par le client. Moraira est une petite ville avec de bons restaurants, des bars et beaucoup de supermarchés autour. Il y a une plage très agréable juste à côté de la ville, idéale pour les familles. Le front de mer offre une vue imprenable sur Penon Ifach, de l'autre côté de la baie de Calpe. La route côtière qui y mène vaut la peine d'être parcourue et offre des vues spectaculaires. Moraira est située à environ 1 heure 15 minutes au nord de l'autoroute A7 depuis l'aéroport d'Alicante et est assez facile d'accès. C'est à peu près la même distance ou un peu moins au sud de l'aéroport de Valence.
Cette information donnée ici est sujette à des erreurs et ne fait partie d'aucun contrat. L'offre peut être modifiée ou retirée sans préavis. Les prix n'incluent pas les coûts d'achat
Votre vie de rêve en Espagne commence avec notre guide pratique ! En 4 étapes, nous vous guiderons sous le soleil espagnol.
E-Mail info@gold-estates.be
Bureau en Belgique: Moeistraat 20G, 9830 St-Martens-Latem
Bureau en Espagne: Av. Marina Baixa 11, 03570 La Villa Joyosa, Alicante
© 2026 Gold Estates · Mentions légales · Intimité · Cookies · BIV Legale Informatie · Plan du site
Conception & CRM: Mediaelx
Trouvez votre maison de rêve en sauvegardant vos propriétés et en recevant des alertes sur les nouvelles propriétés disponibles
Enregistrer un nouvel utilisateurTout d’abord, merci de nous contacter.
Nous avons reçu votre demande concernant la référence du bien:GE2-26925. Un de nos agents vous contactera dans les meilleurs délais.
Tout d’abord, merci de nous contacter.
Nous avons reçu une demande de rapport si vous abaissez le prix de la propriété avec la référence: GE2-26925
En attendant, jetez un œil à cette sélection de propriétés similaires qui pourraient vous intéresser: