Tout d’abord, merci de nous contacter.
Nous avons reçu votre demande concernant la référence du bien:GE2-73193. Un de nos agents vous contactera dans les meilleurs délais.
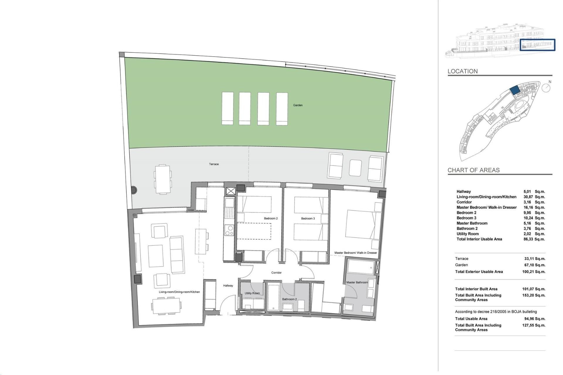
NOUVELLE CONSTRUCTION RÉSIDENTIELLE À ESTEPONA Nouveau complexe résidentiel de 121 appartements et penthouses avec 1, 2, 3 et 4 chambres à coucher à Estepona. Chaque propriété est livrée avec un garage et une salle de stockage. La nouvelle construction dispose de jardins communs exclusifs, qui comprennent deux piscines à chloration saline, une salle de sport avec un sauna où vous pouvez profiter d'une vie saine, une salle de coworking pour que votre bureau soit plus proche que jamais et un club social où vous pouvez profiter de la compagnie de votre famille et de vos amis. Cette résidence, c'est choisir de vivre dans un lieu de villégiature sans quitter son domicile. Toutes les maisons ont été conçues pour assurer la fluidité spatiale entre le salon et la cuisine ouverte, avec un accès direct à la terrasse, où les vues et la lumière seront les protagonistes de votre meilleur cadre. Le complexe est situé à quelques minutes de la promenade d'Estepona et de la plage, dans la zone du Teatro Auditorio Felipe VI, une nouvelle zone d'expansion, au sein de la zone urbaine. Sa situation privilégiée permet de profiter pleinement d'une vue dégagée sur la mer, les montagnes ou le centre-ville. La résidence a un accès direct depuis la route et est proche de tous les services dont vous pourriez avoir besoin, tels que les centres éducatifs, de santé, sportifs et commerciaux. Estepona est à seulement trente minutes du centre de Marbella et à une heure de l'aéroport de Malaga, avec un large éventail de sports et de gastronomie, ainsi qu'un large éventail d'activités culturelles et de loisirs, avec des terrains de golf de renommée mondiale, et des sports nautiques tels que la plongée sous-marine, la voile et le surf.