Tout d’abord, merci de nous contacter.
Nous avons reçu votre demande concernant la référence du bien:CLE-31408. Un de nos agents vous contactera dans les meilleurs délais.
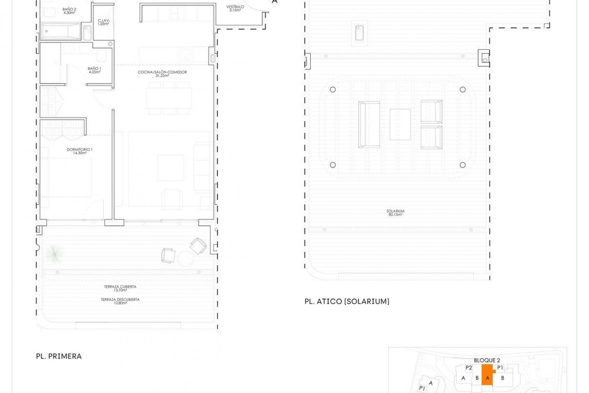
Résidences de charme exclusives à Estepona - Luxe, confort et charme méditerranéen Nouveau développement dans la zone prestigieuse d'Arroyo Enmedio Découvrez ce nouveau projet exceptionnel à Estepona, situé dans le quartier recherché d'Arroyo Enmedio, à seulement 800 mètres de la plage. Ce complexe résidentiel privé comprend 38 appartements de luxe, dont des appartements, des penthouses et des unités au rez-de-chaussée avec des options de 2, 3 et 4 chambres à coucher. Chaque résidence a été méticuleusement conçue avec des finitions de haute qualité et des aménagements spacieux pour garantir un maximum de confort et de style. Des équipements inégalés pour la détente et le bien-être Conçue pour un style de vie moderne et exclusif, cette résidence de charme offre un large éventail d'équipements de style balnéaire, notamment Piscines avec chloration saline et espaces verts luxuriants. Un solarium, des espaces de relaxation et un espace de yoga pour une tranquillité absolue. Un spa de luxe avec bain turc, sauna et jacuzzi. Salle de sport intérieure, entièrement équipée pour les amateurs de fitness. Espace de coworking, salle multimédia et aires de jeux. Jardins paysagers avec aires de pique-nique, parfaits pour les loisirs en plein air. Chaque détail a été soigneusement étudié pour créer une expérience de vie unique et confortable, assurant un équilibre entre sérénité et modernité. Des intérieurs spacieux et lumineux avec des finitions de grande qualité Les appartements clairs et aérés sont dotés de grandes fenêtres qui inondent les espaces de lumière naturelle et offrent une vue imprenable sur les environs. Soigneusement conçus pour maximiser le confort et l'élégance, les logements comprennent les éléments suivants Des fenêtres à double vitrage avec des menuiseries à rupture de pont thermique, garantissant une excellente isolation. Porte d'entrée renforcée pour la tranquillité d'esprit. Un système de climatisation par conduits pour un contrôle du climat tout au long de l'année. Des salles de bains entièrement équipées, avec des meubles de qualité supérieure, des miroirs et des parois de douche en verre fixe. Cuisines modernes avec appareils intégrés, alliant style et fonctionnalité. Une situation privilégiée et une excellente connectivité Estepona, connue comme le « Jardin de la Costa del Sol », est une ville méditerranéenne pittoresque qui allie tradition et luxe contemporain. Ce projet bénéficie d'un emplacement stratégique avec un accès facile aux principales attractions : Centre ville d'Estepona - 4 km (8 minutes en voiture) Marina d'Estepona - 5 km (10 minutes en voiture) Terrain de golf d'Estepona - 3 km (5 minutes en voiture) Centre commercial Laguna Village - 7 km (12 minutes en voiture) Aéroport de Malaga - 82 km (1 heure de route) Aéroport de Gibraltar - 45 km (35 minutes de route) La maison de vos rêves vous attend à Estepona Découvrez la combinaison parfaite du luxe, du confort et du charme méditerranéen dans l'un des développements les plus exclusifs d'Estepona. Contactez-nous dès aujourd'hui pour planifier une visite et faire le premier pas vers votre nouvelle maison sur la Costa del Sol.