Tout d’abord, merci de nous contacter.
Nous avons reçu votre demande concernant la référence du bien:GE2-78105. Un de nos agents vous contactera dans les meilleurs délais.
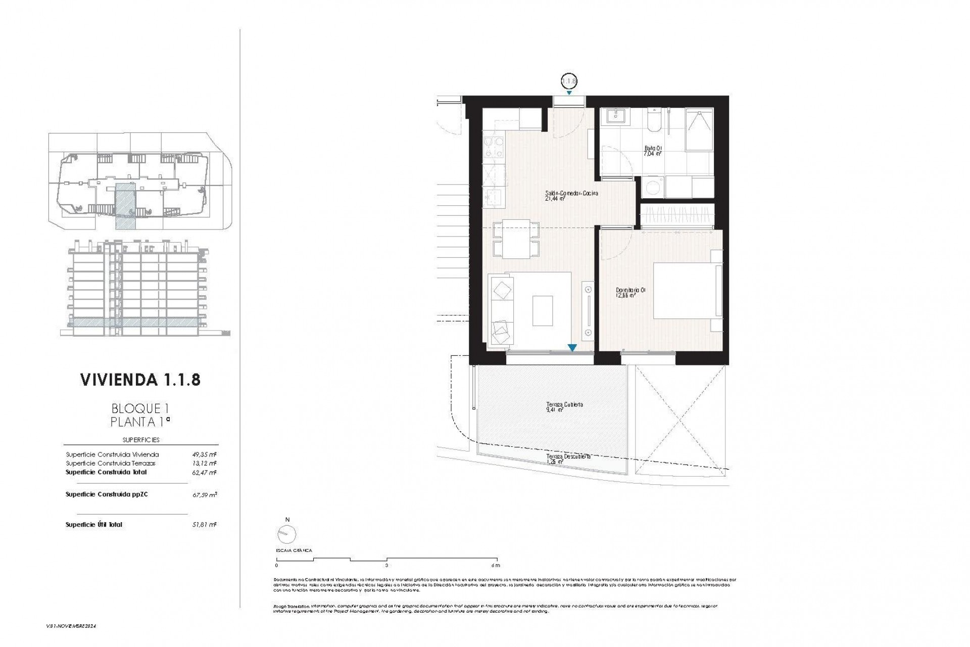
Complexe de luxe à Villajoyosa - Un paradis en bord de mer Découvrez un complexe résidentiel unique à Playa del Torres Situé à moins de 5 minutes à pied de la sereine Playa del Torres à Villajoyosa, ce nouveau complexe exclusif propose 164 appartements et penthouses modernes de 1 à 3 chambres. Conçue pour offrir un mode de vie optimal, la communauté allie luxe, détente et équipements inégalés dans un cadre méditerranéen paisible. Des équipements exceptionnels pour tous les résidents Le cœur de ce projet est le Roof Top, situé sur le toit du Block 2. Cet espace bien conçu comprend une superbe piscine avec vue panoramique, des aires de détente, une zone de barbecue, un espace polyvalent et un belvédère, parfaits pour se retrouver ou se détendre. Un salon intérieur, idéal pour les repas gastronomiques entre amis ou comme espace de coworking. Pour les amateurs d'eau, le complexe comprend Des piscines de style tropical avec accès à la plage. Une piscine chauffée, une piscine pour enfants et un jacuzzi chauffé. Les adeptes du fitness peuvent profiter : Des salles de sport intérieures et extérieures, avec un circuit de gymnastique suédoise. Un putting green et un mini-golf pour les activités de loisirs. Des logements modernes dotés d'équipements haut de gamme Chaque appartement est équipé d'une cuisine entièrement équipée avec des appareils électroménagers de haute qualité : Une cuisine entièrement équipée avec des appareils de haute qualité, notamment un réfrigérateur, un four à micro-ondes, un four, un lave-vaisselle et un lave-linge/sèche-linge intégré. Systèmes aérothermiques à haut rendement énergétique pour l'eau chaude et la climatisation. Chauffage par rayonnement dans les salles de bains. Fenêtres en PVC de haute qualité avec isolation thermique et double vitrage. Un parking privé et un espace de stockage pour plus de commodité. Le bâtiment bénéficie d'un classement énergétique A, ce qui garantit une efficacité et une durabilité maximales. Un emplacement parfait à Villajoyosa Niché à Playa del Torres, ce complexe offre une retraite paisible entourée de beauté naturelle. Les eaux cristallines et les teintes turquoise de la plage constituent un cadre idyllique pour la détente. Le complexe est idéalement situé : 2 km du charmant centre-ville de Villajoyosa. 10 km de Benidorm, avec sa vie nocturne animée et ses boutiques. 30 minutes en voiture de l'aéroport d'Alicante. Villajoyosa, connue pour ses maisons colorées et sa riche histoire, reste un authentique joyau méditerranéen. Récemment reconnue comme la « Meilleure destination secrète d'Europe 2024 » par European Best Destinations, cette ville allie tradition, beauté naturelle et tranquillité. La maison de vos rêves vous attend à Playa del Torres Découvrez le meilleur de la vie moderne dans un paradis naturel. Avec sa situation privilégiée, ses équipements luxueux et son design contemporain, ce projet est parfait pour ceux qui recherchent une maison au bord de la mer. Contactez-nous dès aujourd'hui pour planifier une visite et faire de cette superbe propriété la vôtre !