Allereerst bedankt dat je contact met ons hebt opgenomen.
We hebben uw verzoek met betrekking tot de eigenschap referentie ontvangen:GE-47502. Een van onze agenten neemt zo snel mogelijk contact met u op.
Email info@gold-estates.be
Kantoor België: Moeistraat 20G, 9830 St-Martens-Latem
Kantoor Spanje: Av. Marina Baixa 11, 03570 La Villa Joyosa, Alicante
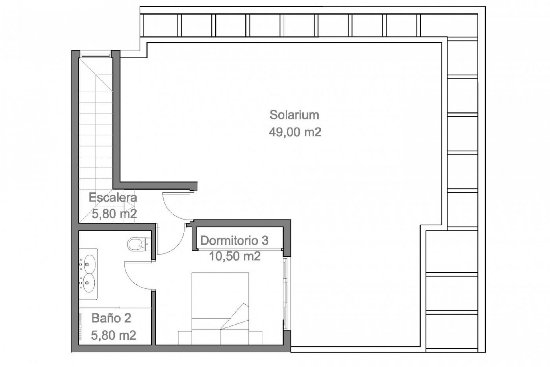
MOOIE VILLA MET UITZICHT OP DE GOLFCURSUS "LA MARQUESA"! Deze prachtige villa, gelegen op 50 meter van de golfbaan van La Marquesa, heeft niet alleen een helder en mooi uitzicht en biedt de rust van een rustige omgeving, op een paar meter van het commerciële centrum met winkels, supermarkt, bars en internationale restaurants. Slechts 5 minuten van de stad Rojales met alle voorzieningen en 15 minuten van de spectaculaire stranden met blauwe vlag van Guardamar del Segura. De luchthaven Alicante-Elche ligt op 35 minuten afstand. De villa heeft 275 m2 perceeloppervlakte, 229,10 m2 bebouwde oppervlakte, verdeeld over 3 slaapkamers en 2 badkamers. Het zwembad van 3x6 m en de terrassen in de tuin en het zwembad zorgen ervoor dat u het hele jaar door kunt genieten van de zon en het klimaat van de Costa Blanca. Daarnaast heeft de villa een solarium en een grote parkeerplaats. Wonen in een moderne villa, genieten van golf, strand, klimaat en mediterrane levensstijl!
Deze informatie is hier onderhevig aan fouten en maakt geen deel uit van een contract. De aanbieding kan zonder kennisgeving worden gewijzigd of ingetrokken. Prijzen zijn exclusief aankoopkosten.
Jouw droomleven in Spanje begint met onze handige gids! In 4 stappen maken we jou wegwijs onder de Spaanse zon.
E-Mail info@gold-estates.be
Kantoor België: Moeistraat 20G, 9830 St-Martens-Latem
Kantoor Spanje: Av. Marina Baixa 11, 03570 La Villa Joyosa, Alicante
Vind uw droomhuis door uw panden te bewaren en meldingen te ontvangen over nieuwe beschikbare panden.
Nieuwe gebruiker registrerenAllereerst bedankt dat je contact met ons hebt opgenomen.
We hebben uw verzoek met betrekking tot de eigenschap referentie ontvangen:GE-47502. Een van onze agenten neemt zo snel mogelijk contact met u op.
Allereerst bedankt dat je contact met ons hebt opgenomen.
We hebben een aanvraag voor een rapport ontvangen als u de prijs van het onroerend goed met de referentie verlaagt: GE-47502
Bekijk in de tussentijd eens een selectie van vergelijkbare woningen die voor u van belang kunnen zijn: