Allereerst bedankt dat je contact met ons hebt opgenomen.
We hebben uw verzoek met betrekking tot de eigenschap referentie ontvangen:GE-68079. Een van onze agenten neemt zo snel mogelijk contact met u op.
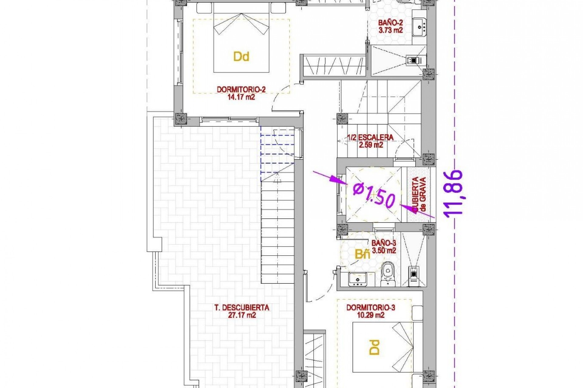
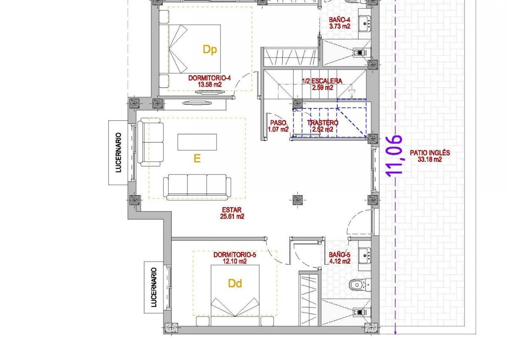
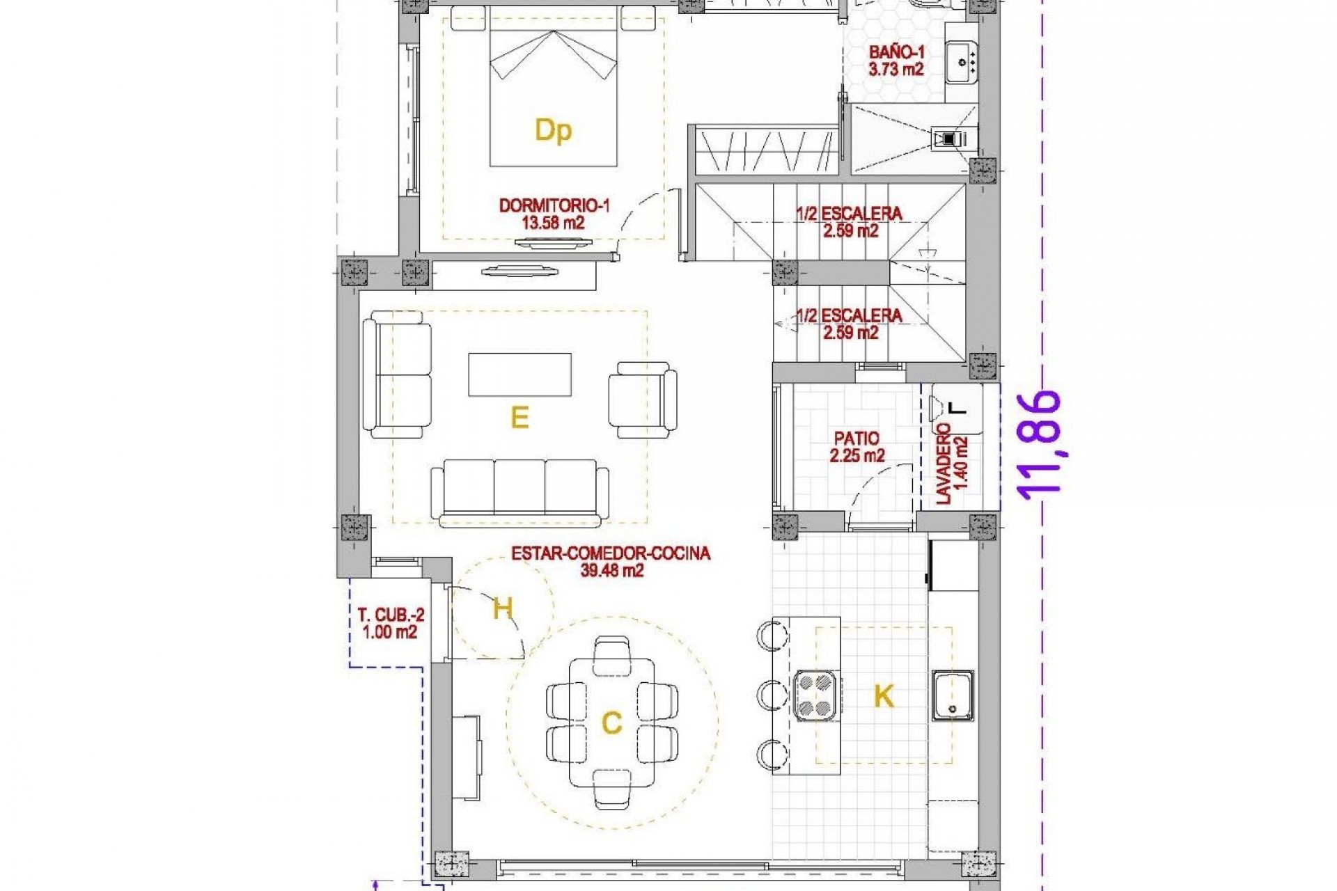
Moderne nieuwbouwwoningen met uitzicht op zee in Finestrat, Alicante Exclusief project op een toplocatie Dit exclusieve woonproject ligt in een van de meest gewilde gebieden van de Costa Blanca en biedt 18 onafhankelijke villa's met een modern en functioneel ontwerp. De villa's liggen dicht bij Finestrat (4 km) en Benidorm (5 km) en genieten van een bevoorrechte omgeving met panoramisch uitzicht op zee en direct uitzicht op de prestigieuze golfbaan Puig Campana. De internationale luchthaven van Alicante ligt op slechts 40 km afstand, waardoor reizen gemakkelijk en efficiënt is. Eigentijds ontwerp en ruime indeling Elke villa is zorgvuldig ontworpen om elegantie, comfort en functionaliteit te combineren. Met privéterreinen van 330 m² tot 460 m² zijn deze woningen verdeeld over twee verdiepingen en bieden ze open en lichte ruimtes. Sommige woningen hebben ook een kelder van 66 m² met patio, met twee extra slaapkamers, twee badkamers en een woonruimte, wat extra veelzijdigheid biedt voor gasten of vrijetijdsactiviteiten. Buitenleven en privévoorzieningen Elke woning wordt opgeleverd met een volledig aangelegde tuin, een privézwembad, een omheining en toegangspoorten voor voetgangers en voertuigen. Het dakterras biedt de perfecte ruimte om te ontspannen, van de zon te genieten en het adembenemende uitzicht op de Middellandse Zee te bewonderen. De ruime terrassen en aangelegde tuinen zijn ontworpen om optimaal te genieten van het buitenleven en het uitzonderlijke klimaat van de regio. Interieurs met hoogwaardige afwerking De begane grond heeft een open indeling met een woonkamer, eethoek en een volledig uitgeruste moderne keuken met kwartswerkblad en inbouwapparatuur. Kamerhoge ramen laten veel natuurlijk licht binnen en creëren een naadloze overgang tussen binnen en buiten. Een slaapkamer op de begane grond biedt extra flexibiliteit, terwijl de bovenverdieping plaats biedt aan nog twee slaapkamers, waaronder de master suite met inloopkast, eigen badkamer en een terras van 30 m² met uitzicht op zee. De hoogwaardige afwerking omvat witgelakte binnenbetimmering, inbouwkasten, buitenbetimmering met thermische onderbreking, gemotoriseerde rolluiken in de slaapkamers en 3 badkamers met designmeubels, hangende toiletten en glazen schermen. Levensstijl en omgeving Deze villa's bieden een bevoorrechte levensstijl dicht bij gouden stranden, winkelcentra en familieattracties zoals het themapark Terra Mítica (5 km). Voor golfliefhebbers bieden Puig Campana Golf (1 km) en Villaitana Golf (6 km) met zijn twee Nicklaus Design-banen een ervaring van wereldklasse. Uw nieuwe thuis aan de Costa Blanca Of het nu gaat om een vakantiehuis of een permanente woning, deze moderne villa's aan de Costa Blanca combineren luxe, locatie en comfort. Neem vandaag nog contact met ons op voor een bezichtiging en zet de eerste stap naar uw droomhuis in Spanje.