Allereerst bedankt dat je contact met ons hebt opgenomen.
We hebben uw verzoek met betrekking tot de eigenschap referentie ontvangen:GE-54014. Een van onze agenten neemt zo snel mogelijk contact met u op.
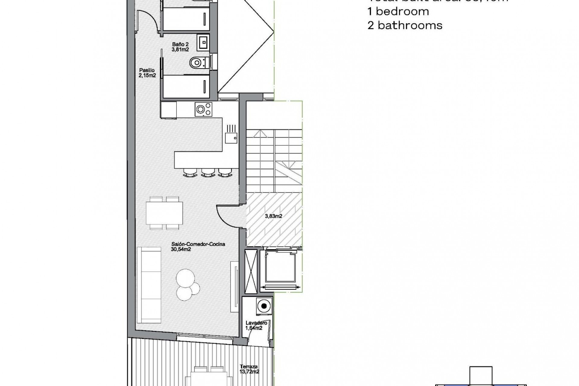
Moderne nieuwbouwappartementen in het hart van Torrevieja, op slechts 600 m van de zee Exclusief boetiekproject in het centrum van Torrevieja Ontdek een exclusief woonproject van slechts 7 moderne nieuwbouwappartementen, ideaal gelegen in het bruisende centrum van Torrevieja, Alicante. Deze stijlvolle woningen liggen op slechts 600 m van de kust en combineren perfect de voordelen van het leven aan de kust met het gemak van een stedelijke levensstijl, met gemakkelijke toegang tot winkels, restaurants en recreatiemogelijkheden. Eigentijds ontwerp en slimme indelingen Kies tussen appartementen met 1 of 2 slaapkamers, elk met 2 badkamers (waarvan één en-suite). De open indelingen zijn ontworpen om de ruimte en het natuurlijke licht te maximaliseren, wat zowel comfort als functionaliteit garandeert. Hoogwaardige afwerkingen zoals beveiligde toegangsdeuren, inbouwkasten met textielafwerking, aluminium kozijnen met thermische onderbreking en gemotoriseerde rolluiken in de woonkamer garanderen duurzaamheid en stijl. Keukens en badkamers zijn voorzien van hoogwaardige armaturen, inclusief doucheschermen en ingebouwde spiegels. Vooraf geïnstalleerde airconditioning voor comfort het hele jaar door. Exclusieve voorzieningen voor bewoners Dit moderne gebouw is ontworpen met het oog op gemak en ontspanning. Bewoners kunnen genieten van: Zonneterras op het dak met gemeenschappelijk zwembad Parkeerplaats voor fietsen en e-scooters op de begane grond Lift met toegang tot alle verdiepingen, inclusief het dak Dynamische levensstijl aan de Costa Blanca Torrevieja is een levendige kuststad die bekend staat om zijn zonnige klimaat met meer dan 300 dagen zon per jaar, culturele evenementen en mediterrane levensstijl. De stranden, jachthaven, promenades en watersportfaciliteiten maken het een ideale plek om permanent te wonen of te genieten van een vakantieverblijf. Alle essentiële voorzieningen, zoals supermarkten, cafés, scholen en gezondheidscentra, liggen op loopafstand. Uitstekende locatie en bereikbaarheid Deze bevoorrechte locatie zorgt voor een snelle toegang tot belangrijke bestemmingen: Promenade: 600 m Playa del Acequión: 1 km Jachthaven van Torrevieja: 600 m Winkelcentrum Zenia Boulevard: 8 km Golfbanen: 7-10 km Internationale luchthaven van Alicante: 45 km Uw mediterrane thuis wacht op u Of u nu op zoek bent naar een vakantiehuis, een slimme investering of een permanente woning, deze moderne nieuwbouwappartementen in Torrevieja bieden een uitstekende kans in een van de meest gewilde gebieden van de Costa Blanca. Neem vandaag nog contact met ons op om een bezichtiging te regelen en uw nieuwe woning in dit exclusieve project in het centrum van de stad te bemachtigen.