Allereerst bedankt dat je contact met ons hebt opgenomen.
We hebben uw verzoek met betrekking tot de eigenschap referentie ontvangen:CLE-55496. Een van onze agenten neemt zo snel mogelijk contact met u op.
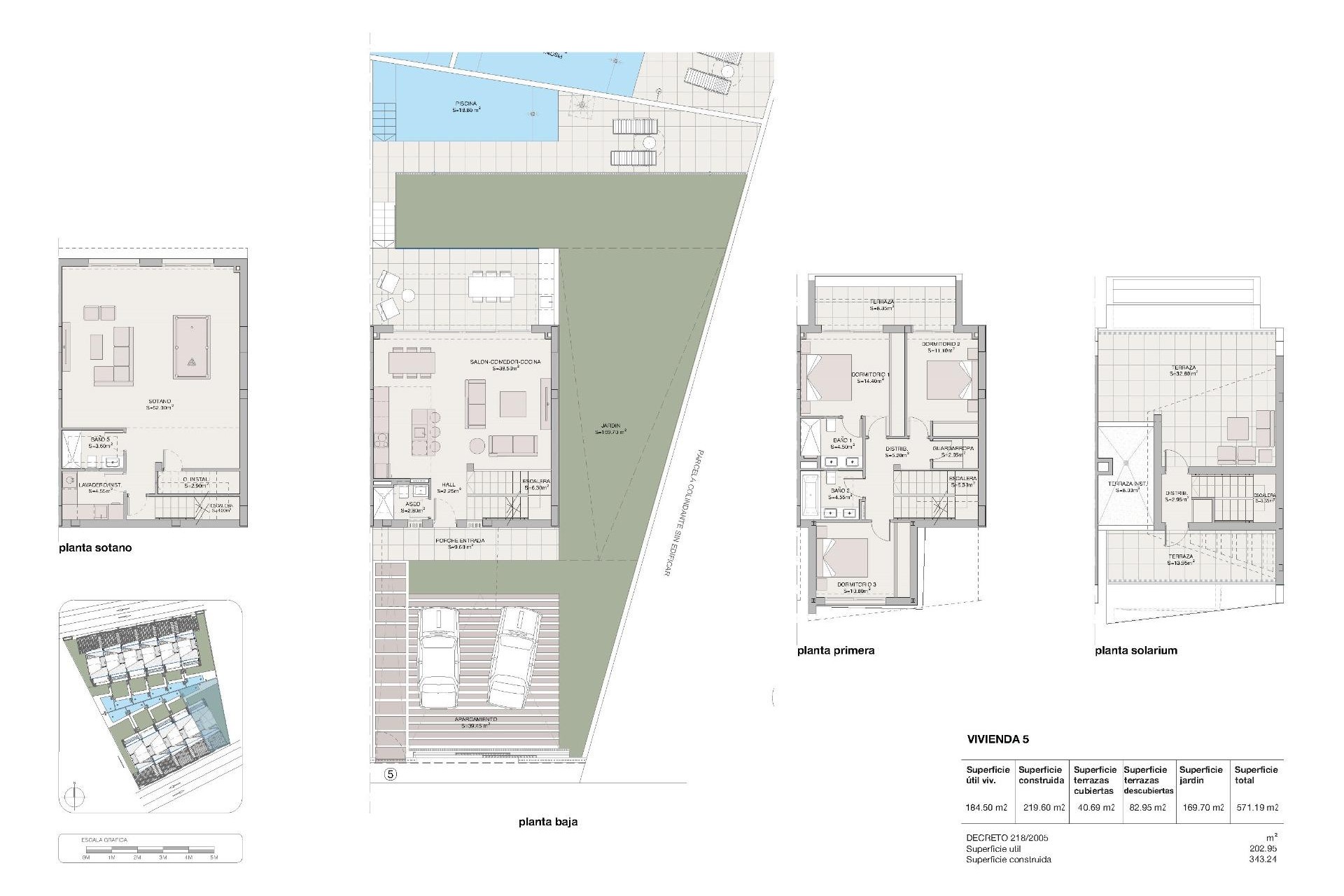
Exclusief nieuwbouwcomplex in Los Flamingos, Estepona Ontdek een unieke kans om een huis te bezitten in een van de meest prestigieuze gebieden aan de Costa del Sol. Dit nieuwbouwproject biedt 11 prachtig ontworpen herenhuizen en halfvrijstaande villa's in het hart van Los Flamingos, Estepona. Dit project combineert luxe, functionaliteit en energie-efficiëntie en is perfect voor wie op zoek is naar een verfijnde levensstijl in een exclusieve omgeving. Toplocatie aan de Costa del Sol Dit wooncomplex ligt in de bekende wijk Los Flamingos, op slechts 5 minuten van de ongerepte stranden van de Middellandse Zee. Het centrum van Estepona ligt op minder dan 10 minuten afstand, terwijl het bruisende Marbella en het exclusieve Sotogrande binnen handbereik liggen. De internationale luchthaven van Málaga ligt op ongeveer 70 km afstand, de luchthaven van Gibraltar op slechts 60 km en Puerto Banús, de luxe jachthaven, ligt op slechts 20 km rijden. Luxe huizen met uitzonderlijke kenmerken Elk huis in dit project is zorgvuldig ontworpen om te voldoen aan de hoogste normen van comfort en verfijning. Deze woningen omvatten: Drie ruime slaapkamers en vier moderne badkamers Prive-tuin, zwembad en parkeerplaats Uitgestrekte terrassen en solariums voor het buitenleven Hoogwaardige voorzieningen zoals vloerverwarming, geavanceerde domotica en energiezuinige systemen Hoogwaardige afwerking en doordacht ontwerp Aandacht voor detail kenmerkt deze huizen. Met aluminium buitenschrijnwerk met een thermische onderbreking, gepantserde toegangsdeuren en overal indirecte LED-verlichting is elk element zorgvuldig gekozen. Optionele toevoegingen, zoals een lift, verbeteren de toegankelijkheid, terwijl automatische druppelirrigatie ervoor zorgt dat de tuinen moeiteloos worden onderhouden. Lifestyle en voorzieningen Te midden van de rustige Los Flamingos golfbaan biedt deze gemeenschap een harmonieuze mix van natuurlijke schoonheid en modern gemak. Supermarkten, restaurants en essentiële voorzieningen zoals het Cancelada Medisch Centrum liggen op slechts 5 minuten afstand. Golfliefhebbers zullen de nabijheid van een van de beste golfbanen van de Costa del Sol waarderen, terwijl de nabijgelegen wandelpaden en het serene meer zorgen voor een vredig toevluchtsoord. Naadloze connectiviteit Dankzij de ligging langs de New Golden Mile hebben de bewoners snel toegang tot de snelwegen A-7 en AP-7, zodat ze vlot naar de belangrijkste bestemmingen kunnen reizen. De haven van Estepona (10 km) en Puerto Banús (20 km) bieden entertainment, winkels en restaurants, terwijl de internationale luchthaven van Malaga (70 km) je verbindt met de rest van de wereld. Je droomhuis wacht Ervaar de perfecte balans van luxe, comfort en locatie in Los Flamingos. Mis de kans niet om een van deze uitzonderlijke eigendommen te bezitten. Neem vandaag nog contact met ons op voor een bezichtiging of voor meer informatie.