Allereerst bedankt dat je contact met ons hebt opgenomen.
We hebben uw verzoek met betrekking tot de eigenschap referentie ontvangen:GE2-39262. Een van onze agenten neemt zo snel mogelijk contact met u op.
Email info@gold-estates.be
Kantoor België: Moeistraat 20G, 9830 St-Martens-Latem
Kantoor Spanje: Av. Marina Baixa 11, 03570 La Villa Joyosa, Alicante
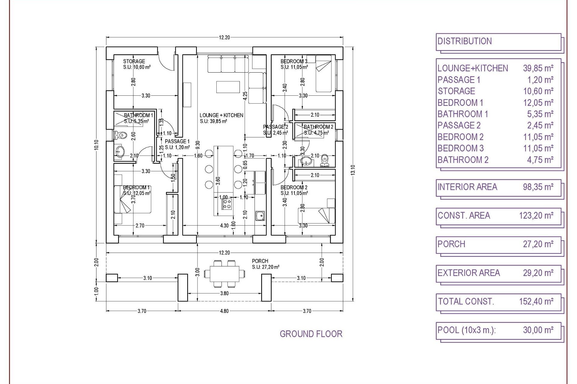
NIEUWBOUW VILLA'S IN PINOSO Nieuwbouw Onafhankelijke moderne villa's die kunnen worden gebouwd op rustieke of stedelijke percelen hebben we een ruim aanbod beschikbaar in de omgeving van Pinoso: - 3 slaapkamers, 2 badkamers - Prive zwembad - Volledige installatie van airconditioning - Volledig ingerichte keuken - Grote keuze aan kwaliteitsmaterialen - Elektriciteit en water - 4 zonnepanelen inbegrepen - AA Energie label - Kavels vanaf 10.000 m2 op verschillende locaties om uit te kiezen. - 3.000 m² omheind perceel voor eenvoudig onderhoud - Gemotoriseerde schuifpoort Op de rustieke percelen wordt ongeveer 3.000 m2 van het totale perceel omheind en de huizen worden geleverd met ongeveer 1.000 m2 grind rond het huis. Het huis heeft een privé zwembad en fotovoltaïsche zonnepanelen voor de elektriciteitsvoorziening. Er zijn verschillende rustieke percelen om uit te kiezen op verschillende locaties, elk met een andere prijs (in de prijzen gepubliceerd in deze advertentie is rekening gehouden met een perceel met een waarde van 40.000 eur, als de koper een ander perceel kiest, zal de uiteindelijke prijs dienovereenkomstig worden herberekend). De leveringstermijn is 8 maanden vanaf het verlenen van de bouwvergunning. Het perceel wordt verworven onder een zelfpromotieregeling: de koper doet betalingen voor de prijs naarmate de bouwer het werk uitvoert.
Deze informatie is hier onderhevig aan fouten en maakt geen deel uit van een contract. De aanbieding kan zonder kennisgeving worden gewijzigd of ingetrokken. Prijzen zijn exclusief aankoopkosten.
Jouw droomleven in Spanje begint met onze handige gids! In 4 stappen maken we jou wegwijs onder de Spaanse zon.
E-Mail info@gold-estates.be
Kantoor België: Moeistraat 20G, 9830 St-Martens-Latem
Kantoor Spanje: Av. Marina Baixa 11, 03570 La Villa Joyosa, Alicante
Vind uw droomhuis door uw panden te bewaren en meldingen te ontvangen over nieuwe beschikbare panden.
Nieuwe gebruiker registrerenAllereerst bedankt dat je contact met ons hebt opgenomen.
We hebben uw verzoek met betrekking tot de eigenschap referentie ontvangen:GE2-39262. Een van onze agenten neemt zo snel mogelijk contact met u op.
Allereerst bedankt dat je contact met ons hebt opgenomen.
We hebben een aanvraag voor een rapport ontvangen als u de prijs van het onroerend goed met de referentie verlaagt: GE2-39262
Bekijk in de tussentijd eens een selectie van vergelijkbare woningen die voor u van belang kunnen zijn: